Prodej - dům/vila, 166 m²
Za Statkem, Velké Chvalovice, Kolín
RezervovánoProdej - dům/vila, 166 m²
Za Statkem, Velké Chvalovice, Kolín
Prodej novostavby 4kk s garáží, 166 m2, zahrada 212 m2, Velké Chvalovice
Na kraji Velkých Chvalovic, klidné části města Pečky, vznikla nová ulice s příznačným názvem Za Statkem. Právě zde na vás čeká úplně nový rodinný dům, který spojuje komfort moderní novostavby, dostatek prostoru i výhledy do krajiny. Dispozice 4+kk a celková plocha 166 m2, vám zajistí pohodlí, o kterém jste vždy snili.
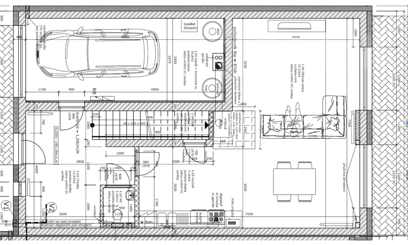
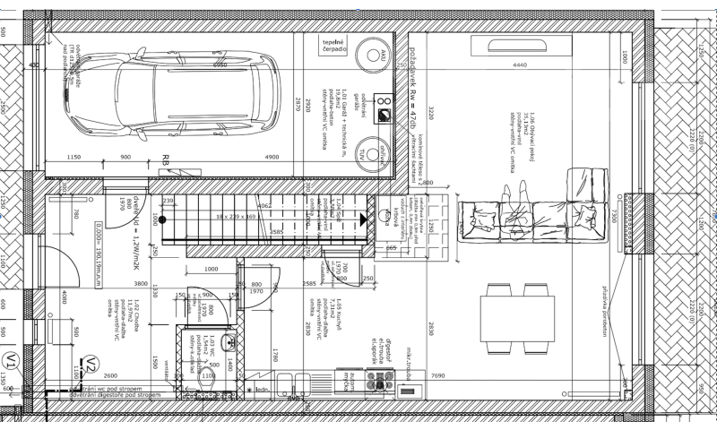
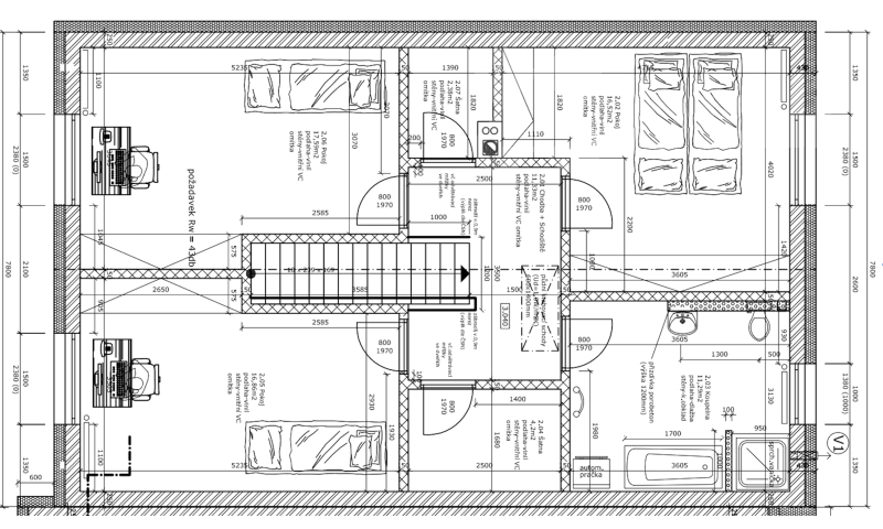
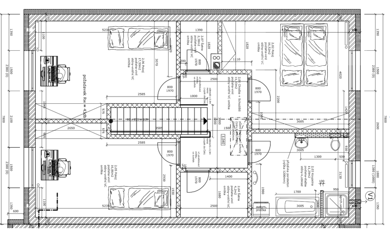
V přízemí se nachází garáž a hlavní obytná zóna - srdce domu - tedy kuchyňský kout propojený s velkorysým obývacím prostorem o výměře 42 m2. V patře následně klidová část, tedy 3 pokoje, koupelna se sprchovým koutem i vanou a dostatek úložného prostoru. Velká okna přinášejí do interiéru příjemné světlo a umožňují přímý vstup na soukromou zahradu o rozloze 212 m2. Ta je jako stvořená pro víkendová grilování, dětské hry nebo klidné večery pod širým nebem.
Dům je vybaven kvalitními materiály a prvky, které potěší oko i praktičností - vinylové podlahy, moderní interiérové dveře, plastová okna s izolačním trojsklem, designová sanita značky SAT, baterie SIKO a elegantní obklady Rako Betonico. O vytápění se stará tepelné čerpadlo typu vzduch-voda od značky Willy, což znamená nízké provozní náklady a energetickou efektivitu.
Rodinné domy v této lokalitě jsou napojeny na obecní vodovod a kanalizaci. Kromě vlastní garáže máte k dispozici i parkovací stání přímo před domem. Sedlová střecha s betonovou krytinou v antracitovém odstínu elegantně ladí s celkovým vzhledem stavby.
Velké Chvalovice těží z vynikající polohy. Dálnice D11 je vzdálená jen 7 kilometrů, takže se do Prahy dostanete autem za přibližně 23 minut. Pokud preferujete hromadnou dopravu, vlak z Peček vás do centra Prahy dopraví za půl hodiny. Navíc je zde také autobusové spojení do Kolína, Poděbrad či Českého Brodu.
Město Pečky nabízí vše, co potřebuje moderní rodina - školku, školu, ZUŠ, lékaře, obchody, kulturní centrum, knihovnu, restaurace i sportovní vyžití včetně sportovní haly a různých oddílů. V okolí najdete krásnou přírodu, cyklostezky, lesy, historické památky i přírodní koupání.
Tato novostavba je připravena na to, stát se vaším domovem. A možná i začátkem úplně nové životní etapy.
Zavolejte si o případné další dotazy a hlavně prohlídku - rád vás domem osobně provedu.
| Cena: | Rezervováno |
| Číslo zakázky: | REALITYMIX-231793 |
Podrobné informace
- Poloha objektu: řadový
- Druh objektu: cihlová
- Stav objektu: novostavba
- Počet podlaží objektu: 2
- Typ domu: patrový
- Zastavěná plocha: 98 m²
- Plocha parcely: 385 m²
- Zahrada: 212 m²
- Užitná plocha: 166 m²
- Doprava: dálnice, silnice, autobus
- Voda: Voda - dálkový vodovod
- Odpad: Kanalizace
- Ostatní rozvody: Kabelové rozvody, Ostatní rozvody
- Energetická náročnost budovy: A - Mimořádně úsporná
Právní rádce
-
Detail
V tomto článku shrneme nejdůležitější věci, které byste si měli promyslet, pokud se chystáte prodat svou nemovitost a chcete, abyste s kupujícím nemusel následně řešit vzniklé problémy.
Jako prodávající nesete rizika spojená nejen se samotným obchodem, ale i se stavem nemovitosti v době prodeje a pro minimalizaci rizik, je dobré se zamyslet nad uvedenými oblastmi.
-
Detail
Realitní makléř má své nezastupitelné místo v realitním obchodu. Realitním makléřem nemyslím nevzdělané jelito, které absolvovalo dvoudenní školení a ví, jak se nahraje inzerát na inzertní portál.
Realitním makléřem, který se Vám skutečně vyplatí, je zkušený profesionál, který je schopen Vám dobře poradit jak prodat za co nejvíc a s nejmenším rizikem a hlavně je Vás schopen obratně provést celým realitním obchodem.