Prodej - dům/vila, 165 m²
Bratříkov, Jablonec nad Nisou
1 799 999 KčProdej - dům/vila, 165 m²
Bratříkov, Jablonec nad Nisou
Prodej rodinného domu, 165 m2, k rekonstrukci, se schváleným stavebním projektem v Bratříkově
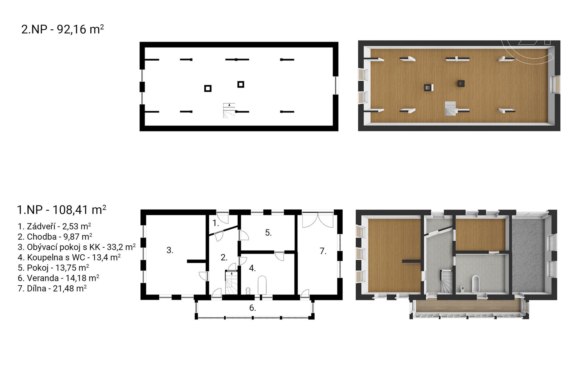
V rámci obálky domu zateplení, novou střechu, ale i přesunutí vstupu do domu, aby bylo vše pohodlné a odpovídalo moderním standardům bydlení. Přibylo parkovací stání a je počítáno s vybudování čističky odpadních vod, stejně tak i tepelného čerpadla.
Interiér je vyprojektován pro pohodlné bydlení čtyřčlenné rodiny. Dá se říci, že nezůstal kámen na kameni a mění se tak dispozice jak prvního, tak i druhého nadzemního podlaží. V projektu je kladen důraz na klidovou část domu orientovanou v druhém nadzemním podlaží a společný prostor v přízemí. K tomu slouží i propojení jídelny s kuchyňskou linkou se zamýšleným výhledem do zeleně a zbylo místo i na společenskou místnost.
Pokud nový majitel dodrží navrhovaný postup a technologie, je energetická náročnost budovy vypočítána na druhou nejlepší třídu, tedy B.
Statika objektu bez závažných vad.
Zahrada náležící k domu má přes tisíc metrů a díky svažitému profilu terénu, lze vybudovat moderní kaskádové terasy.
Noví majitelé mají možnost čerpat z dotačních programů na rekonstrukci nemovitosti a také převzít velkmi výhodný úvěr pro financování této nemovitosti.
Schválený projekt je součástí prodeje tohoto domu. Rád jej poskytnu na prohlídce tohoto domu, kde zároveň vyřešíme detaily financování a projdeme veškeré náležitosti a možnosti této nemovitosti.
Těším se na viděnou, Vladimír Řehák.
| Cena: | 1 799 999 Kč |
| Poznámka: | Cena zahrnuje i projekt na rekonstrukci rodinného domu. |
| Datum k nastěhování: | 13.08.2025 |
| Číslo zakázky: | REALITYMIX-965087 |
Podrobné informace
- Poloha objektu: samostatný
- Druh objektu: cihlová
- Stav objektu: před rekonstrukcí
- Počet podlaží objektu: 2
- Typ domu: patrový
- Zastavěná plocha: 152 m²
- Plocha parcely: 1009 m²
- Zahrada: 1009 m²
- Užitná plocha: 165 m²
- Sklep: ano
- Balkon: 14 m²
- Doprava: silnice
- Elektřina: Elektro - 230 V
- Voda: Zdroj pro celý objekt, Voda - dálkový vodovod
- Odpad: Kanalizace
- Energetická náročnost budovy: G - Mimořádně nehospodárná
Právní rádce
-
Detail
V tomto článku shrneme nejdůležitější věci, které byste si měli promyslet, pokud se chystáte prodat svou nemovitost a chcete, abyste s kupujícím nemusel následně řešit vzniklé problémy.
Jako prodávající nesete rizika spojená nejen se samotným obchodem, ale i se stavem nemovitosti v době prodeje a pro minimalizaci rizik, je dobré se zamyslet nad uvedenými oblastmi.
-
Detail
Realitní makléř má své nezastupitelné místo v realitním obchodu. Realitním makléřem nemyslím nevzdělané jelito, které absolvovalo dvoudenní školení a ví, jak se nahraje inzerát na inzertní portál.
Realitním makléřem, který se Vám skutečně vyplatí, je zkušený profesionál, který je schopen Vám dobře poradit jak prodat za co nejvíc a s nejmenším rizikem a hlavně je Vás schopen obratně provést celým realitním obchodem.