Prodej - dům/vila, 80 m²
Koterovská, Plzeň 2-Slovany, Plzeň, Plzeň-město
7 990 000 KčProdej - dům/vila, 80 m²
Koterovská, Plzeň 2-Slovany, Plzeň, Plzeň-město
Prodej rodinného domu se zahradou a garáží na Koterovské ulici, Plzeň Slovany
Podívejte se na samostatnou stránku domu, odkaz na stránku je ve videoprohlídce .
Dům stojí na rohu Koterovské a Libušínské ulice a byl postaven v roce 1926. Má jedno patro, obytné podkroví a je kompletně podsklepený. V přízemí se nachází vstupní veranda, kuchyně, koupelna, WC a 2 pokoje. V podkroví je pak jeden pokoj s terasou a půda. Obálka domu i interiér jsou v původním stavu, vhodném k rekonstrukci.
Technické informace:
Dům je kompletně zděný, podlahy jsou z hoblovaných prken, v chodbách jsou cementové dlaždice, stropy jsou trámové, schodiště je betonové, stropy nad sklepy a chodbami v přízemí jsou taktéž betonové, půdy jsou dlážděné a střecha byla v roce 1999 měněná za pálené tašky. Krov je v dobrém stavu. Původní dokumentace k domu je u realitní makléřky a bude k dispozici na prohlídce.
Sítě:
Voda je do domu přivedena z obecního vodovodu + na pozemku je studna na užitkovou vodu
Odpad je svedený do městské kanalizace
Vytápění zajišťují akumulační kamna
Ohřev vody zajišťuje elektrický bojler
Elektřina a plyn zavedeny
Výměry:
Celková plocha pozemku: 616 m2
Plocha zahrady: 382 m2
Plocha garáže: 39 m2
Plocha přízemí domu: 70 m2
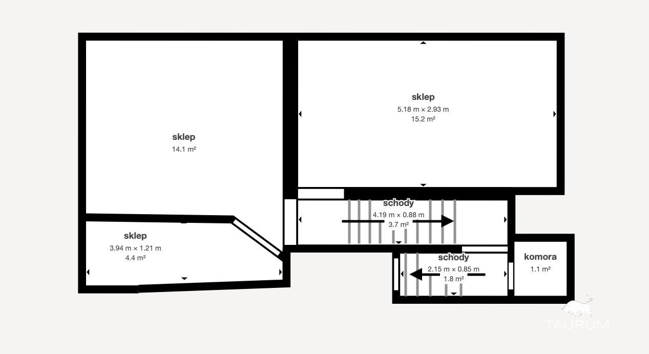
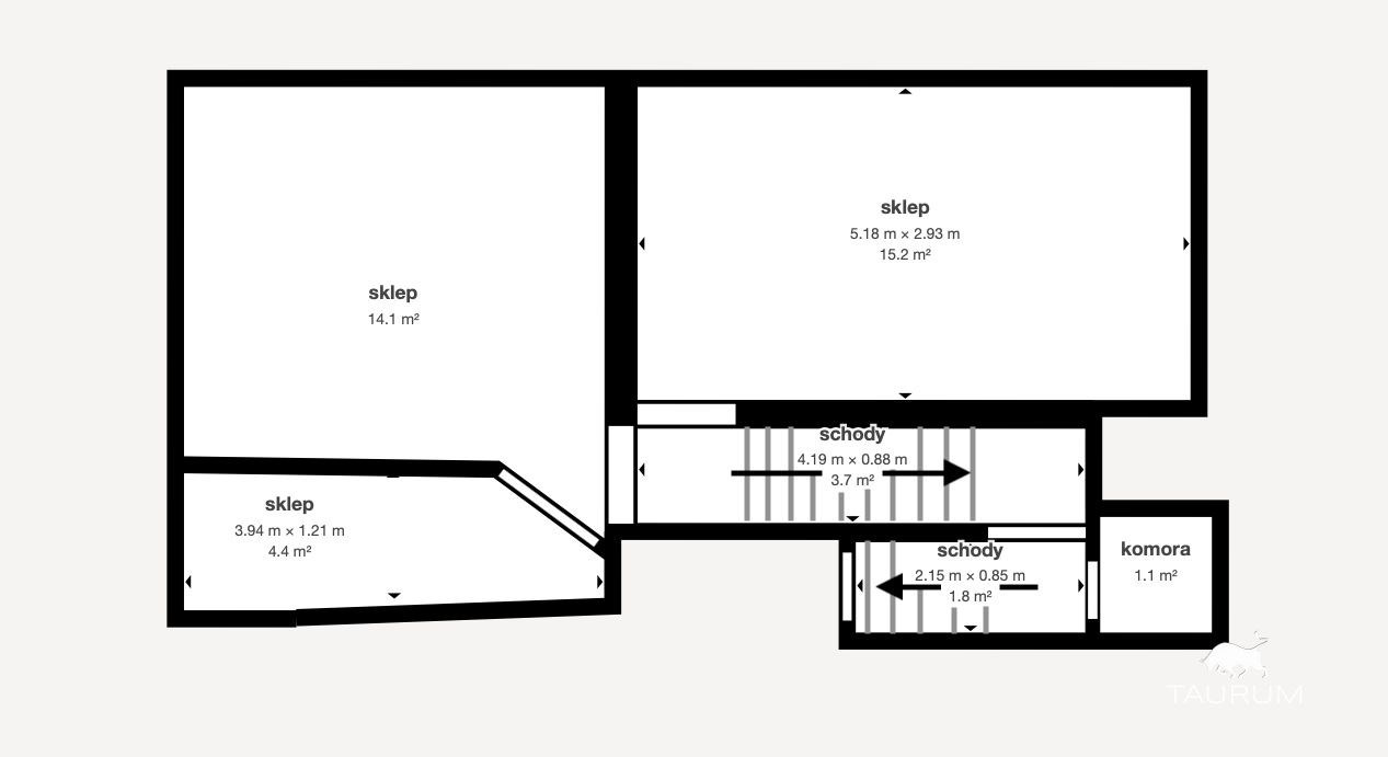
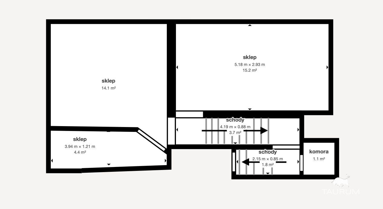
Plocha sklepa: 40 m2
Plocha podkroví: 40 m2
Zahrada okolo domu je porostlá trávou a je kompletně oplocená. Stojí na ní garáž, která byla dostavovaná v pozdějších letech o výměře 39 m2 a dále zde najdeme studnu s užitkovou vodou. Parkovat se dá bez problému na pozemku, kam lze vjet skrze vrata a nebo v Libušínské ulici.
Hledáteli dům, který si rádi zrekonstruujete podle svých představ v místě veškeré občanské vybavenosti a skvělé dostupnosti jak na dálnici, tak do města, ale také do přírody, zavolejte mi, domem Vás ráda provedu.
Pro koupi domu zajistím kompletní realitní a právní servis.
Kontaktujte mě, prosím, pro domluvení prohlídky:
Hana Procházková
TAURUM reality
Uvedené výměry jsou orientační.
PENB nemáme k dispozici, vzhledem ke stavu domu uvádíme třídu G.
| Cena: | 7 990 000 Kč |
| Datum k nastěhování: | 05.06.2025 |
| Číslo zakázky: | REALITYMIX-250073 |
Podrobné informace
- Poloha objektu: samostatný
- Druh objektu: cihlová
- Stav objektu: před rekonstrukcí
- Počet podlaží objektu: 1
- Typ domu: přízemní
- Zastavěná plocha: 62 m²
- Plocha parcely: 616 m²
- Zahrada: 382 m²
- Užitná plocha: 80 m²
- Sklep: 40 m²
- Terasa: 27 m²
- Ostatní: Garáž
- Doprava: vlak, silnice, MHD
- Elektřina: Elektro - 230 V
- Voda: Zdroj pro celý objekt, Voda - dálkový vodovod
- Plyn: Plynovod
- Odpad: Kanalizace
- Energetická náročnost budovy: G - Mimořádně nehospodárná
Právní rádce
-
Detail
V tomto článku shrneme nejdůležitější věci, které byste si měli promyslet, pokud se chystáte prodat svou nemovitost a chcete, abyste s kupujícím nemusel následně řešit vzniklé problémy.
Jako prodávající nesete rizika spojená nejen se samotným obchodem, ale i se stavem nemovitosti v době prodeje a pro minimalizaci rizik, je dobré se zamyslet nad uvedenými oblastmi.
-
Detail
Realitní makléř má své nezastupitelné místo v realitním obchodu. Realitním makléřem nemyslím nevzdělané jelito, které absolvovalo dvoudenní školení a ví, jak se nahraje inzerát na inzertní portál.
Realitním makléřem, který se Vám skutečně vyplatí, je zkušený profesionál, který je schopen Vám dobře poradit jak prodat za co nejvíc a s nejmenším rizikem a hlavně je Vás schopen obratně provést celým realitním obchodem.
Mapa
Podobné nemovitosti
Prodej - dům/vila, 45 m²
Řepná, Plzeň 6-Litice, Plzeň, Plzeň-město
6 973 000 Kč
Prodej - dům/vila, 665 m²
Mlýnská, Plzeň 9-Malesice, Plzeň, Plzeň-město
7 900 000 Kč
Prodej - dům/vila, 90 m²
náměstí Milady Horákové, Plzeň 2-Slovany, Plzeň, Plzeň-město
5 800 000 Kč
Prodej - dům/vila, 130 m²
Sadová, Plzeň 4, Plzeň, Plzeň-město
8 200 000 Kč