Prodej - dům/vila, 195 m²
Pšov, Podbořany, Louny
7 245 000 KčProdej - dům/vila, 195 m²
Pšov, Podbořany, Louny
Prodej moderního domu na klíč 4+kk, 194 m², na pozemku 1 000 m², v obci Podbořany – Pšov
Výstavba a cena:
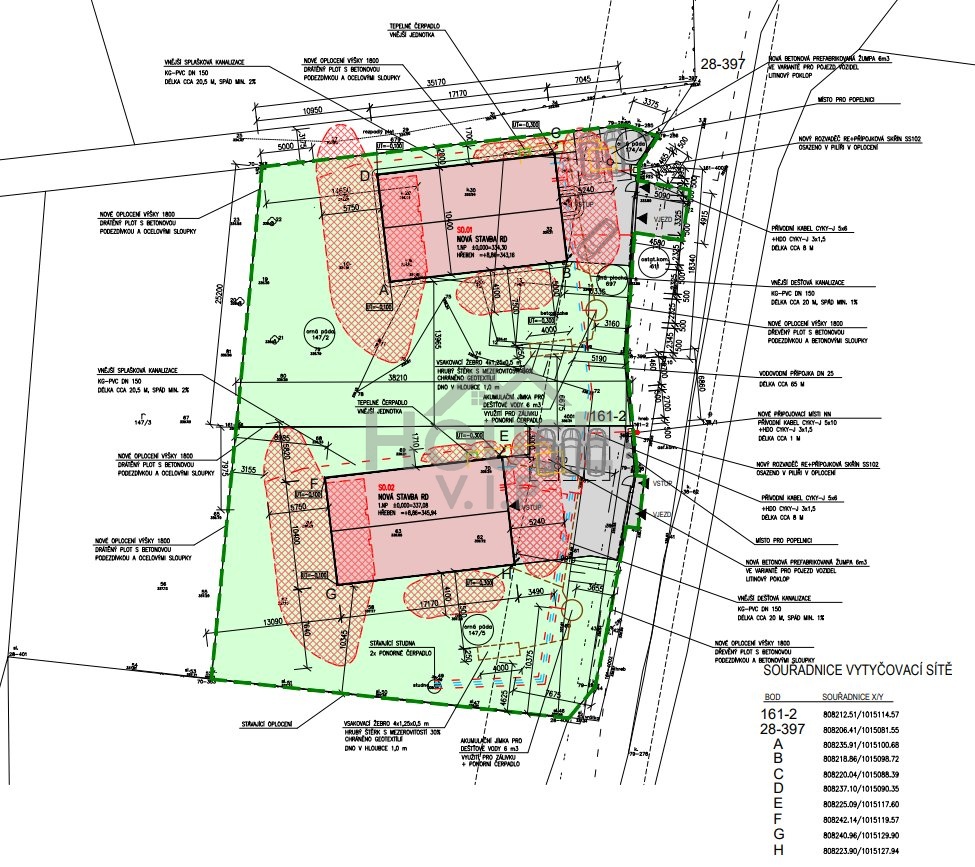
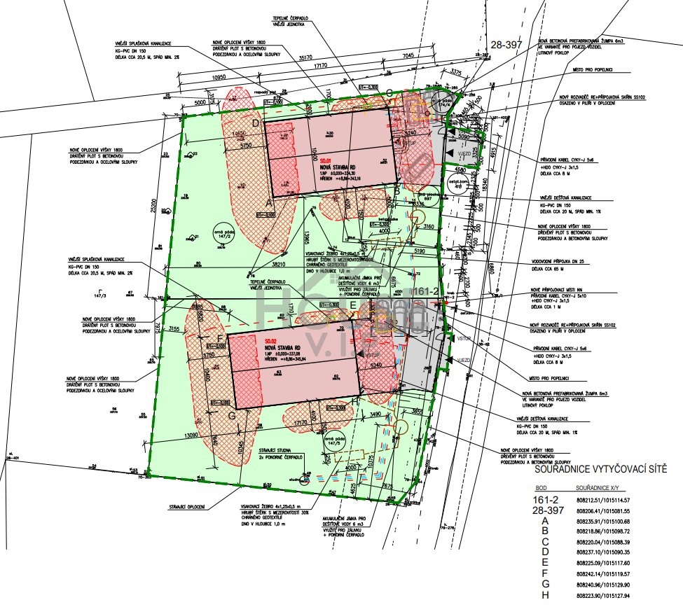
Cena zahrnuje pozemek a realizaci hrubé stavby (základy, nosné konstrukce, střecha, zateplení, dveře, schodiště). Za příplatek je možné dokončit dům přesně dle vizualizace a požadavků kupujícího. Na prodej je také sousední pozemek včetně realizace o stejné výměře 1 000 m² (viz koordinační výkres). Je také možné koupit pozemek ihned s hotovým projektem a stavebním povolením za 2.49 mln. s možností samostatné realizace.
Financování stavby je možné rozdělit na jednotlivé etapy, takže celou částku nemusíte platit najednou.
Zastavěná plocha: 178,57 m².
Podlahová plocha: 194,25 m².
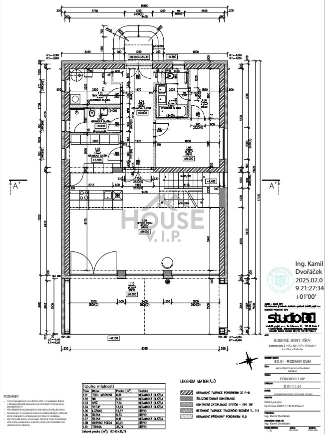
• 1. NP: 117,42 m² + terasa 35,79 m².
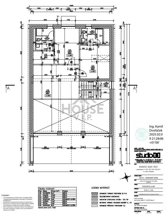
• 2. NP: 76,83 m².
Výška stavby: 8,86 m.
Konstrukce: nosné stěny z dutinových keramických tvárnic.
Strop nad 1. NP: železobetonový monolit (tl. 250 mm).
Vytápění: tepelné čerpadlo + krbová vložka.
Další technologie: fotovoltaika, klimatické zatížení řešeno v projektu.
Přípojka vody: ze stávající studny.
Kanalizace: domovní ČOV.
Dispozice 1. NP (117,42 m²):
Technická místnost (6,81 m²), WC (5,22 m²), spíž (7,54 m²), vstupní hala (13,63 m²), ložnice (12,37 m²), šatna (5,73 m²), druhá šatna (5,91 m²), obývací pokoj s kuchyňským koutem (60,21 m²) a terasa (35,79 m²).
Dispozice 2. NP (76,83 m²):
Schodiště (8,47 m²), galerie (23,82 m²), ložnice (14,92 m²), koupelna (5,65 m²), druhá ložnice (13,67 m²), šatna (4,09 m²) a koupelna (6,21 m²).
Lokalita:
Nemovitost se nachází v tiché části obce, pouhých 350 m od autobusové zastávky směr Žatec. Podbořany nabízejí plnou občanskou vybavenost, dobrou dostupnost do větších měst a krásné okolí ideální pro rodinné bydlení.
Energetická náročnost:
Budoucí PENB bude odpovídat hodnotám nízkoenergetického až pasivního domu třídy "A", což zaručuje nízké provozní náklady.
Pro více informací o rodinném domě a možnostech individuálních úprav nás kontaktujte.
| Cena: | 7 245 000 Kč |
| Poznámka: | včetně DPH, včetně provize, včetně právního servisu |
| Číslo zakázky: | REALITYMIX-00904 |
Podrobné informace
- Poloha objektu: samostatný
- Druh objektu: cihlová
- Stav objektu: projekt
- Počet podlaží objektu: 2
- Typ domu: patrový
- Zastavěná plocha: 179 m²
- Plocha parcely: 1001 m²
- Užitná plocha: 195 m²
- Odpad: ČOV pro celý objekt
- Energetická náročnost budovy: A - Mimořádně úsporná
- Ukazatel energetické náročnosti budovy: 41.7 kWh/m²
- Energetický ukazatel podle vyhlášky: č. 264/2020 Sb.
Právní rádce
-
Detail
V tomto článku shrneme nejdůležitější věci, které byste si měli promyslet, pokud se chystáte prodat svou nemovitost a chcete, abyste s kupujícím nemusel následně řešit vzniklé problémy.
Jako prodávající nesete rizika spojená nejen se samotným obchodem, ale i se stavem nemovitosti v době prodeje a pro minimalizaci rizik, je dobré se zamyslet nad uvedenými oblastmi.
-
Detail
Realitní makléř má své nezastupitelné místo v realitním obchodu. Realitním makléřem nemyslím nevzdělané jelito, které absolvovalo dvoudenní školení a ví, jak se nahraje inzerát na inzertní portál.
Realitním makléřem, který se Vám skutečně vyplatí, je zkušený profesionál, který je schopen Vám dobře poradit jak prodat za co nejvíc a s nejmenším rizikem a hlavně je Vás schopen obratně provést celým realitním obchodem.