Prodej - dům/vila, 95 m²
U Lipového dvora, Prachatice II, Prachatice
8 050 000 KčProdej - dům/vila, 95 m²
U Lipového dvora, Prachatice II, Prachatice
Prodej novostavby 4+kk, dle FENG SHUI 95 m2 ,2 parkovací stání, terasa a zahrada, Prachatice
INTERIÉR:
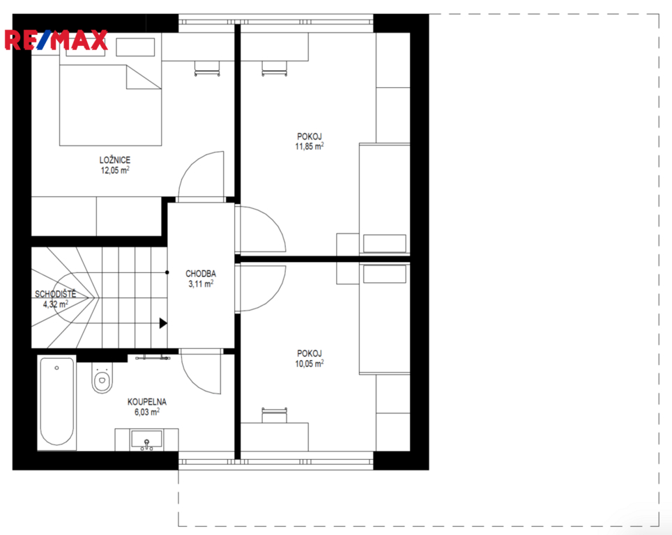
Při vstupu do domu vás okouzlí velké zrcadlo a dřevěná stěna v prostorné vstupní chodbě z níž vedou krásné dveře v zeleném dekoru na toaletu. Naproti je vstup do technické místnosti s kondenzačním kotlem a prostorem na pračku, sušičku. Prosvětlený obývací pokoj propojený s kuchyňským koutem a jídelnou nabízí vzdušný prostor pro rodinná setkání. Velká okna zajišťují dostatek denního světla a přímý vstup na zastřešenou terasu s nezaměnitelným výhledem na Prachatice. Jídelní kout je vybaven stolem z masivu, židlemi. Kuchyňská linka i ostrůvek je sladěn k celému interiéru. Dubové schodiště s kovovým zábradlím vás zavede do horního patra, které disponuje třemi neprůchozími pokoji z nichž je krásný výhled do zeleně. V patře se nachází i designová koupelna s vanou a toaletou. Skříňka i podsvětlené kulaté zrcadlo je součástí vybavení. V celém domě je použita kvalitní laminátová podlaha nebo velkoformátová dlažba, zabudované kolejnice na záclony a závěsy a designové osvětlení.
EXTERIÉR :
Vnější podoba domu přináší harmonii, která vás uchvátí svou pečlivou kombinací promyšlených detailů. Předzahrádka, zdobená okrasnými rostlinami, solitérním kamenem osvíceným soumraovým systémem, podtrhuje celkový estetický dojem. Obložená, podsvícená zeď kameny s dominantní plechovou brankou oddělující přední parkovací místo od zahrady přidává na atraktivitě. Jedno /ze dvou/ parkovacích stání je kryté a vybavené třífázovou zásuvkou. Krytá terasa má jihozápadní orientaci. Část pozemku za domem je rovná a dálepak se pozemek pozvolna svažuje. Svařovaný antracitový plot na pozemku poskytne nejen soukromí, ale i bezpečí.
TECHNOLOGIE
Tento mimořádně úsporný dům s energetickou náročností třídy A, vám umožní žít efektivně s nízkými náklady. Vytápění je zajištěno tepelným čerpadlem vzduch/voda DE DIETRICH 6kw, které je spolehlivě doplněno podlahovým topením v přízemí a radiátory v horním patře. Možnost instalace fotovoltaické elektrárny, která vám umožní vyrábět vlastní energii.
Dům je připraven k okamžitému nastěhování.
V rámci prodeje jsem vám připravena poskytnout poradenství k dotvoření interieru dle Feng Shui celého domu. Pro nové majitele mám připravený nejen Feng Shui projekt, ale i dar, který jim bude v domě dělat radost.
Nepředávám jen nemovitost, předávám domov…
| Cena: | 8 050 000 Kč |
| Poznámka: | DŮM NA KLÍČ - v ceně zahrnuté 2 parkovací stání (z toho jedno zastřešené), oplocení pozemku, osázená, osvětlená předzahrádka a terasa, jídelní kout a kuchyně bez spotřebičů, osvětlení |
| Datum k nastěhování: | 18.09.2025 |
| Číslo zakázky: | REALITYMIX-405536 |
Podrobné informace
- Poloha objektu: samostatný
- Druh objektu: dřevěná
- Stav objektu: novostavba
- Počet podlaží objektu: 2
- Typ domu: patrový
- Zastavěná plocha: 122 m²
- Plocha parcely: 311 m²
- Užitná plocha: 95 m²
- Umístění objektu: klidná část obce
- Komunikace: asfaltová
- Elektřina: Elektro - 230 V
- Voda: Voda - dálkový vodovod
- Odpad: Kanalizace
- Energetická náročnost budovy: A - Mimořádně úsporná
- Energetický ukazatel podle vyhlášky: č. 148/2007 Sb.
Právní rádce
-
Detail
V tomto článku shrneme nejdůležitější věci, které byste si měli promyslet, pokud se chystáte prodat svou nemovitost a chcete, abyste s kupujícím nemusel následně řešit vzniklé problémy.
Jako prodávající nesete rizika spojená nejen se samotným obchodem, ale i se stavem nemovitosti v době prodeje a pro minimalizaci rizik, je dobré se zamyslet nad uvedenými oblastmi.
-
Detail
Realitní makléř má své nezastupitelné místo v realitním obchodu. Realitním makléřem nemyslím nevzdělané jelito, které absolvovalo dvoudenní školení a ví, jak se nahraje inzerát na inzertní portál.
Realitním makléřem, který se Vám skutečně vyplatí, je zkušený profesionál, který je schopen Vám dobře poradit jak prodat za co nejvíc a s nejmenším rizikem a hlavně je Vás schopen obratně provést celým realitním obchodem.