Prodej bytu, 3+kk, 80 m²
Rostislavova, Praha 4, Nusle
11 500 000 KčProdej bytu, 3+kk, 80 m²
Rostislavova, Praha 4, Nusle
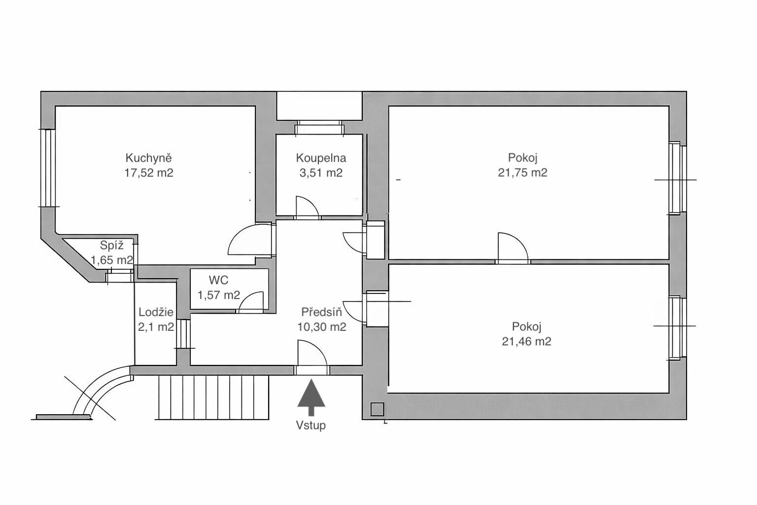
Byt 2+1, 80 m2, Praha 4, Nusle, Rostislavova ul.
Byt je před rekonstrukcí, což představuje ideální příležitost pro vytvoření bydlení přesně podle vlastních představ, případně zajímavou investici s potenciálem zhodnocení. Rekonstrukce byla částečně zahájena, nový majitel tak může plynule navázat a dokončit úpravy dle svého vkusu.
Aktuální stav:
• ložnice – nově vyštukované zdi a sádrokartonový podhled
• koupelna – připravena na nové rozvody vody, stěny bez finálních úprav
• ostatní místnosti – určeny k rekonstrukci
• plastová okna
• orientace na východ a západ zajišťující dostatek světla po celý den
• praktická dispozice se samostatnými vstupy do jednotlivých pokojů
• lodžie s okny
Dispoziční řešení nabízí jednoduchou úpravu na vzdušný a funkční 3+kk, který odpovídá současným požadavkům na moderní bydlení.
Vytápění je řešeno plynovými vafkami.
Dům je ve velmi dobrém stavu po rekonstrukci a poskytuje klidné a udržované zázemí. K bytu náleží velká sklepní komora v suterénu domu.
Lokalita Praha 4 – Nusle patří dlouhodobě mezi vyhledávané rezidenční oblasti díky skvělé kombinaci dostupnosti a občanské vybavenosti. V docházkové vzdálenosti se nachází supermarket, obchody, restaurace, kavárny i další služby pro každodenní život. Samozřejmostí je výborné dopravní spojení do centra města prostřednictvím MHD.
2 stanice autobusem na metro C Pankrác nebo 10 min. na metro I.P. Pavlova.
V okolí najdete také školy, školky a dostatek zeleně pro volnočasové aktivity a odpočinek. Parkování je možné v modrých zónách přímo v okolí domu.
Pro více informací nebo sjednání prohlídky mě neváhejte kontaktovat.
| Cena: | 11 500 000 Kč |
| Dispozice/podlahová plocha: | 3+kk/80 m² |
| Číslo zakázky: | REALITYMIX-N00276 |
Podrobné informace
- Dispozice bytu: 3+kk
- Číslo podlaží v domě: 5
- Počet podlaží objektu: 6
- Užitná plocha: 80 m²
- Celková podlahová plocha: 80 m²
- Druh objektu: cihlová
- Stav objektu: před rekonstrukcí
- Vlastnictví: osobní
- Umístění objektu: klidná část obce
- Energetická náročnost budovy: G - Mimořádně nehospodárná
- Energetický ukazatel podle vyhlášky: č. 78/2013 Sb.
Právní rádce
-
Detail
V tomto článku shrneme nejdůležitější věci, které byste si měli promyslet, pokud se chystáte prodat svou nemovitost a chcete, abyste s kupujícím nemusel následně řešit vzniklé problémy.
Jako prodávající nesete rizika spojená nejen se samotným obchodem, ale i se stavem nemovitosti v době prodeje a pro minimalizaci rizik, je dobré se zamyslet nad uvedenými oblastmi.
-
Detail
Realitní makléř má své nezastupitelné místo v realitním obchodu. Realitním makléřem nemyslím nevzdělané jelito, které absolvovalo dvoudenní školení a ví, jak se nahraje inzerát na inzertní portál.
Realitním makléřem, který se Vám skutečně vyplatí, je zkušený profesionál, který je schopen Vám dobře poradit jak prodat za co nejvíc a s nejmenším rizikem a hlavně je Vás schopen obratně provést celým realitním obchodem.