Prodej - dům/vila, 145 m²
Březová, Praha 8, Kobylisy
15 250 000 KčProdej - dům/vila, 145 m²
Březová, Praha 8, Kobylisy
Nabízíme k prodeji řadový rodinný dům o dispozici 5+2 na adrese Březová, Praha 8 – Kobylisy.
Dům je vhodný i pro dvougenerační bydlení a nabízí klidné rodinné zázemí v jedné z nejvyhledávanějších lokalit Prahy 8.
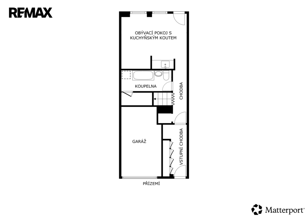
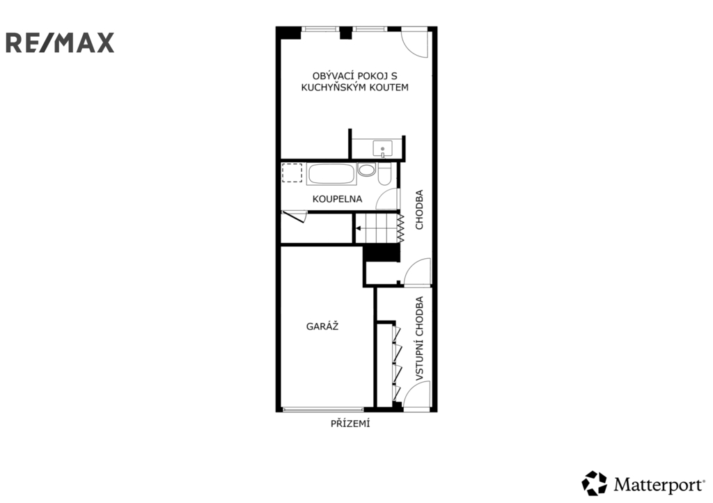
Dispozice domu:
Přízemí:
Garáž (13,1 m²), předsíň (6 m²), chodba (3,6 m²), koupelna s WC (5,2 m²), úložný prostor (3,1 m²) a ateliér s kuchyní (19,1 m²) se vstupem na zadní zahradu o velikosti 32 m²; přední část pozemku má 24 m².
1. patro:
Prostorný obývací pokoj (27,5 m²), samostatná kuchyň (10,5 m²), jídelna (10,1 m²) a schodiště do 2. patra.
2. patro:
Ložnice (15,4 m²), dva pokoje (každý 9,2 m²), chodba (9,7 m²), koupelna s vanou (2,2 m²), samostatné WC (1,4 m²) a půda (54,7 m²).Celková obytná plocha: 145 m² (včetně garáže).
Parkování je zajištěno garáží a druhým parkovacím stáním na pozemku.
Technické informace
Dům je napojen na vodu, kanalizaci, elektřinu i plyn.
Vytápění a ohřev TUV zajišťuje kondenzační plynový kotel.
Konstrukce a výstavba
Rezidenční zástavba v této části Kobylis vznikala kolem roku 1970 - 1980.
Konstrukce a výstavba:
Rezidenční zástavba vznikala v letech 1970–1980.
Typické konstrukce v lokalitě:
obvodové stěny: tvárnicové zdivo
stropy: železobetonové prefabrikované dílce
příčky: lehké (pórobeton, duté cihly)
Lokalita – Kobylisy, Praha 8
Březová ulice nabízí klidné rodinné bydlení s kompletní občanskou vybaveností v docházkové vzdálenosti – obchody, restaurace, školy, školky, služby, zeleň.
Výborná dopravní dostupnost zajišťuje pohodlné spojení po celé Praze.
• Tramvajová zastávka Sídliště Ďáblice – 5 minut chůze.
• Autobusová zastávka Ďáblický hřbitov – jen 3 minuty, autobus jede na metro C – Ládví cca 5 minut.
• Metro C – Ládví v docházkové vzdálenosti.
• Rychlé napojení autem na Libereckou a Městský okruh.
Prodávající si vyhrazuje právo vybrat kupujícího na základě jím zvolených kritérií.
| Cena: | 15 250 000 Kč |
| Číslo zakázky: | REALITYMIX-427807 |
Podrobné informace
- Poloha objektu: řadový
- Druh objektu: smíšená
- Stav objektu: dobrý
- Počet podlaží objektu: 3
- Typ domu: patrový
- Zastavěná plocha: 65 m²
- Plocha parcely: 120 m²
- Zahrada: 56 m²
- Užitná plocha: 145 m²
- Umístění objektu: klidná část obce
- Doprava: silnice, MHD
- Elektřina: Elektro - 230 V
- Telekomunikace: Internet
- Plyn: Plynovod
- Odpad: Kanalizace
- Energetická náročnost budovy: G - Mimořádně nehospodárná
- Energetický ukazatel podle vyhlášky: č. 264/2020 Sb.
Právní rádce
-
Detail
V tomto článku shrneme nejdůležitější věci, které byste si měli promyslet, pokud se chystáte prodat svou nemovitost a chcete, abyste s kupujícím nemusel následně řešit vzniklé problémy.
Jako prodávající nesete rizika spojená nejen se samotným obchodem, ale i se stavem nemovitosti v době prodeje a pro minimalizaci rizik, je dobré se zamyslet nad uvedenými oblastmi.
-
Detail
Realitní makléř má své nezastupitelné místo v realitním obchodu. Realitním makléřem nemyslím nevzdělané jelito, které absolvovalo dvoudenní školení a ví, jak se nahraje inzerát na inzertní portál.
Realitním makléřem, který se Vám skutečně vyplatí, je zkušený profesionál, který je schopen Vám dobře poradit jak prodat za co nejvíc a s nejmenším rizikem a hlavně je Vás schopen obratně provést celým realitním obchodem.