Prodej bytu, 3+kk, 53 m²
Boleslavova, Praha 4, Nusle
10 490 000 KčProdej bytu, 3+kk, 53 m²
Boleslavova, Praha 4, Nusle
Prodej bytu 3+kk (53 m2) , Praha - Nusle
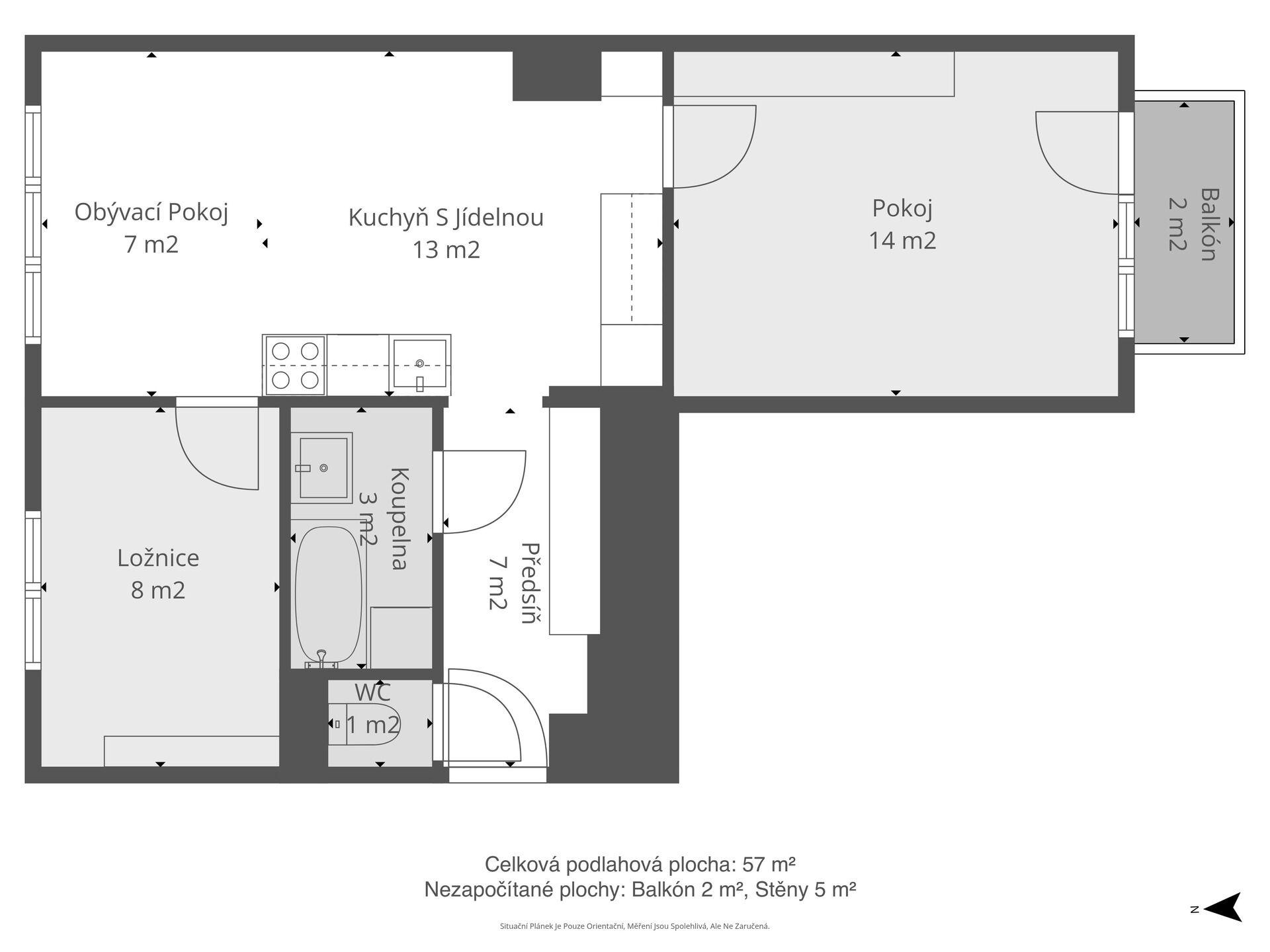
Byt o dispozici 3+kk je po kompletní rekonstrukci (2020), vhodný pro rodinu s dětmi.
- dispozice 3+kk
- zděný bytový dům
- PENB D
- 3.NP
- koupelna s vanou
- samostatné WC
- balkón
- sklep
Samotná bytová jednotka o velikosti 53 m2 se nachází ve 3. NP bytového domu. K bytu a sklepní koje v 1.PP o velikosti 1,9 m2.
Dětský pokoj je situován směrem na jih. Obývací pokoj a ložnice mají okna na sever s krásným výhledem do parku Na Fidlovačce.
Bytový dům prošel v minulých 10 ti letech postupně částečnou rekonstrukcí, je zde nová fasáda, střecha a veškeré rozvody. Topení je řešeno centrálním plynovým kotlem.
Aktuální měsíční náklady jsou elektřina : 1650,- a SVJ (vytápění, voda + společné prostory): 6924,-
Byt v Boleslavově ulici zaujme především svou výjimečnou polohou. Jen pár kroků od domu se nachází tramvajová zastávka Divadlo na Fidlovačce, která zajišťuje rychlé spojení do centra města i Vršovic. Stanice metra C – Vyšehrad je dostupná pohodlnou desetiminutovou chůzí. Přímo před domem se rozprostírá park Na Fidlovačce, ideální místo pro každodenní relax, sport i procházky. Milovníci zeleně ocení také blízký park Folimanka, zatímco náměstí Bratří Synků nabízí kompletní občanskou vybavenost a příjemnou atmosféru městského života.
| Cena: | 10 490 000 Kč |
| Dispozice/podlahová plocha: | 3+kk/53 m² |
| Číslo zakázky: | REALITYMIX-N00032 |
Podrobné informace
- Dispozice bytu: 3+kk
- Číslo podlaží v domě: 3
- Počet podlaží objektu: 7
- Užitná plocha: 55 m²
- Celková podlahová plocha: 53 m²
- Druh objektu: cihlová
- Stav objektu: velmi dobrý
- Vlastnictví: osobní
- Balkon: 2 m²
- Sklep: 1 m²
- Umístění objektu: klidná část obce
- Doprava: dálnice, silnice, MHD
- Elektřina: Elektro - 120 V, Elektro - 230 V
- Voda: Voda - dálkový vodovod
- Plyn: Plynovod
- Odpad: Kanalizace
- Energetická náročnost budovy: D - Méně úsporná
- Energetický ukazatel podle vyhlášky: č. 264/2020 Sb.
Právní rádce
-
Detail
V tomto článku shrneme nejdůležitější věci, které byste si měli promyslet, pokud se chystáte prodat svou nemovitost a chcete, abyste s kupujícím nemusel následně řešit vzniklé problémy.
Jako prodávající nesete rizika spojená nejen se samotným obchodem, ale i se stavem nemovitosti v době prodeje a pro minimalizaci rizik, je dobré se zamyslet nad uvedenými oblastmi.
-
Detail
Realitní makléř má své nezastupitelné místo v realitním obchodu. Realitním makléřem nemyslím nevzdělané jelito, které absolvovalo dvoudenní školení a ví, jak se nahraje inzerát na inzertní portál.
Realitním makléřem, který se Vám skutečně vyplatí, je zkušený profesionál, který je schopen Vám dobře poradit jak prodat za co nejvíc a s nejmenším rizikem a hlavně je Vás schopen obratně provést celým realitním obchodem.