Prodej bytu, 4+kk, 115 m²
Kounická, Praha 10, Strašnice
14 900 000 KčProdej bytu, 4+kk, 115 m²
Kounická, Praha 10, Strašnice
Prodej bytu 4+kk 115 m², Praha - Strašnice
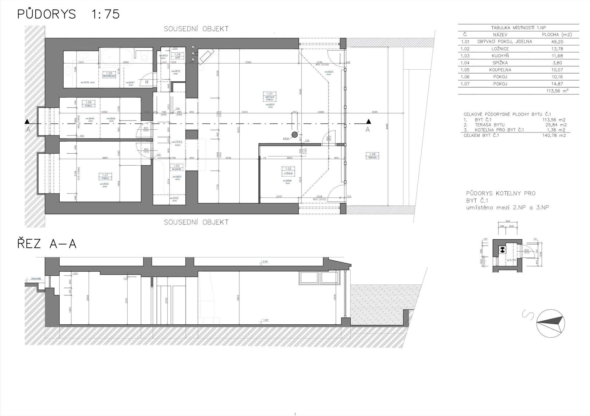
Hledáte prostorné, moderní a originální bydlení, kde budete mít vlastní kus zeleně, naprosté soukromí a město na dosah? Takový je byt 4+kk s celkovou užitnou plochou 127 m² a soukromou zahradou s terasou (179 m² navíc) v klidné části Prahy 10.
Hlavní výhody bytu:
- jižní orientace
- samostatný vstup z vnitrobloku
- parkování přímo na pozemku
- osvětlené schodiště od branky k bytu
- terasa 26 m² se soukromím díky vzrostlým stromům
- zahrada celkem 163 m²
- velkorysý obývací pokoj spojený s kuchyní a jídelnou (60+ m²)
- krb a podlahové vytápění pro maximální komfort
- kvalitní použité materiály
- voda přivedena na terasu
- příprava elektřiny pro automatickou bránu
- skvělá dostupnost MHD (tramvaj v pěší vzdálenosti, blízkost metra A)
- kompletní občanská vybavenost a parky v okolí
Prostor, který jinde nenajdete:
Dominantou bytu je velkorysý obývací pokoj spojený s jídelnou a kuchyňským koutem. Celý prostor je prosvětlen velkoformátovými okny s výhledem na zahradu s terasou, která je přístupná i dveřmi z ložnice. Kuchyně zaujme kamennými deskami a originálním provedením se zrcadly, které prostor opticky zvětšují.
Za kuchyní jsou dva další pokoje, praktická komora a koupelna. Vytápění bytu je řešeno podlahovým topením a radiátory.
Zahrada, kde zapomenete, že jste v Praze:
Oplocený pozemek nabízí celkem 179 m² (82 m² v osobní vlastnictví a 97 m² v dlouhodobém pronájmu od Hl. m.). Díky vzrostlým stromům a situováním pozemku do vnitrobloku poskytuje terasa se zahradou naprosté soukromí. Najdete zde prostor jak pro relaxaci, tak pro pěstitelské aktivity. Pro pohodlnou údržbu je na terasu zavedena voda. U brány je připravena elektřina pro instalaci automatického pohonu brány na dálkové ovládání.
Lokalita: Kounická ulice, Praha 10 – klid a dostupnost v jednom
Byt se nachází v oblíbené a klidné rezidenční části Prahy 10 – Strašnice.
Perfektní dopravní dostupnost – v blízkosti tramvaje, autobusy i metro (Skalka, Strašnická).
Občanská vybavenost – školy, školky, obchody, lékaři i sportoviště v pěší dostupnosti.
Zeleň a odpočinek – nedaleko Malešický park, Gutovka či Park Na Solidaritě.
Jedná se o lokalitu ideální pro rodiny s dětmi i pro každého, kdo hledá spojení městského komfortu s klidným bydlením uprostřed zeleně.
Ozvěte se, pokud chcete víc než jen byt – chcete domov s atmosférou.
| Cena: | 14 900 000 Kč |
| Datum k nastěhování: | 01.03.2026 |
| Dispozice/podlahová plocha: | 4+kk/115 m² |
| Číslo zakázky: | REALITYMIX-090925 |
Podrobné informace
- Dispozice bytu: 4+kk
- Číslo podlaží v domě: 1
- Počet podlaží objektu: 1
- Celková podlahová plocha: 115 m²
- Druh objektu: cihlová
- Stav objektu: dobrý
- Vlastnictví: osobní
- Terasa: 26 m²
- Umístění objektu: klidná část obce
- Doprava: silnice, MHD
- Elektřina: Elektro - 230 V
- Voda: Voda - dálkový vodovod
- Telekomunikace: Telefon
- Plyn: Plynovod
- Topení: Ústřední - plynové
- Odpad: Kanalizace
- Energetická náročnost budovy: D - Méně úsporná
- Ukazatel energetické náročnosti budovy: 123 kWh/m²
- Energetický ukazatel podle vyhlášky: č. 264/2020 Sb.
Právní rádce
-
Detail
V tomto článku shrneme nejdůležitější věci, které byste si měli promyslet, pokud se chystáte prodat svou nemovitost a chcete, abyste s kupujícím nemusel následně řešit vzniklé problémy.
Jako prodávající nesete rizika spojená nejen se samotným obchodem, ale i se stavem nemovitosti v době prodeje a pro minimalizaci rizik, je dobré se zamyslet nad uvedenými oblastmi.
-
Detail
Realitní makléř má své nezastupitelné místo v realitním obchodu. Realitním makléřem nemyslím nevzdělané jelito, které absolvovalo dvoudenní školení a ví, jak se nahraje inzerát na inzertní portál.
Realitním makléřem, který se Vám skutečně vyplatí, je zkušený profesionál, který je schopen Vám dobře poradit jak prodat za co nejvíc a s nejmenším rizikem a hlavně je Vás schopen obratně provést celým realitním obchodem.