Prodej bytu, 4+kk, 145 m²
Tolstého, Praha 10, Vršovice
20 400 000 KčProdej bytu, 4+kk, 145 m²
Tolstého, Praha 10, Vršovice
Prodej bytu 4+kk, 145m2, P10 - Vršovice, ul.Tolstého, osobní vlastnictví, mezonet
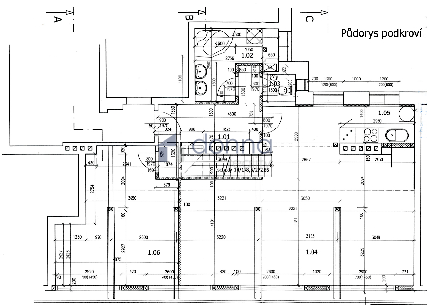
Tento dvouúrovňový byt je umístěný ve 4. patře cihlového domu bez výtahu a nabízí zajímavé bydlení v klidném udržovaném domě pouze se šestnácti bytovými jednotkami.
Spodní patro tvoří vstupní chodba s šatní skříní, světlá členitá ložnice, koupelna s vanou a dvěma umyvadly a samostatná toaleta. Hlavní obytnou plochou je velký otevřený prostor propojující obývací pokoj s jídelní částí, prakticky navržen je i oddělený kuchyňský kout s moderní kuchyňskou linkou a spotřebiči nabízející dostatek místa pro kulinářské umění. Z této části také vedou schody do horního patra.
Horní patro nabízí 2 samostatné pokoje se střešními okny dodávající dostatek přirozeného osvětlení.
Dispozice bytu nabízí praktické rozdělení jednotlivých zón a příjemnou míru soukromí. Zajímavost mu dodává samotný podkrovní prostor s dřevěnými trámy, členitost a dobře vyřešené osvětlení. Celoroční pohodlí - topení a ohřev vody zajišťuje vlastní elektrokotel s radiátory.
Osobní vlastnictví (SVJ).
Měsíční náklady: 2 800 Kč včetně fondu oprav + zálohy na elektřinu.
Bonus: příjem z pronájmu společných prostor.
Vršovice patří mezi dlouhodobě velmi vyhledávanou lokalitu nabízející kombinaci městského života a zeleně. Samozřejmostí je veškerá občanská vybavenost - obchody, restaurace, školy a dalších služby, což činí život v této lokalitě velmi pohodlným. Skvělá dostupnost městské dopravy (MHD) zajišťuje rychlé spojení s centrem města.
V případě zájmu o prohlídku nás kontaktujte.
| Cena: | 20 400 000 Kč |
| Poznámka: | Včetně právního servisu. |
| Dispozice/podlahová plocha: | 4+kk/145 m² |
| Číslo zakázky: | REALITYMIX-11333 |
Podrobné informace
- Dispozice bytu: 4+kk
- Číslo podlaží v domě: 5
- Počet podlaží objektu: 5
- Užitná plocha: 145 m²
- Celková podlahová plocha: 145 m²
- Druh objektu: cihlová
- Stav objektu: velmi dobrý
- Vlastnictví: osobní
- Umístění objektu: klidná část obce
- Doprava: MHD
- Odpad: Kanalizace
- Energetická náročnost budovy: G - Mimořádně nehospodárná
- Energetický ukazatel podle vyhlášky: č. 264/2020 Sb.
Právní rádce
-
Detail
V tomto článku shrneme nejdůležitější věci, které byste si měli promyslet, pokud se chystáte prodat svou nemovitost a chcete, abyste s kupujícím nemusel následně řešit vzniklé problémy.
Jako prodávající nesete rizika spojená nejen se samotným obchodem, ale i se stavem nemovitosti v době prodeje a pro minimalizaci rizik, je dobré se zamyslet nad uvedenými oblastmi.
-
Detail
Realitní makléř má své nezastupitelné místo v realitním obchodu. Realitním makléřem nemyslím nevzdělané jelito, které absolvovalo dvoudenní školení a ví, jak se nahraje inzerát na inzertní portál.
Realitním makléřem, který se Vám skutečně vyplatí, je zkušený profesionál, který je schopen Vám dobře poradit jak prodat za co nejvíc a s nejmenším rizikem a hlavně je Vás schopen obratně provést celým realitním obchodem.