Prodej - dům/vila, 235 m²
Branická, Praha 4, Krč
22 950 000 KčProdej - dům/vila, 235 m²
Branická, Praha 4, Krč
Prodej domu 7+kk, 235m2, zahrada, Praha 4 Krč
Jedná se o čtyř podlažní rodinný dům, kolaudovaný v roce 1992. V přízemí domu se nachází prostorná vstupní hala, v zadní části je sklep a technické zázemí, koupelna s prádelnou a plynovým kotlem, dále samostatný pokoj, plocha 25,3m2 (hostinská místnost s vlastním vstupem, sprchou, toaletou a vlastní terasou), tato jednotka může sloužit i k nezávislému pronájmu.
Ve 2 NP. se nachází prostorný a světlý obývací pokoj s jídelním koutem, kuchyní, která je vybavenou kuchyňskou linkou, výstup na balkon, terasu 12m2 a zahradu, která má plochu 121m2, dále jedna samostatná ložnice, koupelna se sprchou a wc.
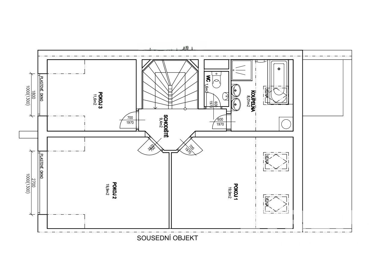
Ve 3 NP, jsou tři samostatné ložnice a koupelna s vanou a sprchou, v podkroví je poslední větší ložnice 28,3m2. Dům má plastová okna, žaluzie, na podlahách koberce. Parkování je na ulici před domem.
Obrovskou výhodou je dispozice domu, která nabízí bydlení početné rodině, také lokalita, vybavenost obce, školy, školky, perfektní dopravní dostupnost, plánovaná linka metra D bude cca 8min. pěšky od domu. Prohlídka možná po dohodě s makléřem.
| Cena: | 22 950 000 Kč |
| Datum k nastěhování: | 01.03.2026 |
| Číslo zakázky: | REALITYMIX-972073 |
Podrobné informace
- Poloha objektu: řadový
- Druh objektu: cihlová
- Stav objektu: po rekonstrukci
- Počet podlaží objektu: 3
- Typ domu: patrový
- Zastavěná plocha: 128 m²
- Plocha parcely: 249 m²
- Zahrada: 121 m²
- Užitná plocha: 235 m²
- Sklep: 5 m²
- Balkon: 5 m²
- Terasa: 12 m²
- Doprava: MHD
- Elektřina: Elektro - 230 V
- Voda: Zdroj pro celý objekt, Voda - dálkový vodovod
- Telekomunikace: Telefon, Internet
- Plyn: Plynovod
- Odpad: Kanalizace
- Energetická náročnost budovy: D - Nevyhovující
- Popis vybavení: .
Právní rádce
-
Detail
V tomto článku shrneme nejdůležitější věci, které byste si měli promyslet, pokud se chystáte prodat svou nemovitost a chcete, abyste s kupujícím nemusel následně řešit vzniklé problémy.
Jako prodávající nesete rizika spojená nejen se samotným obchodem, ale i se stavem nemovitosti v době prodeje a pro minimalizaci rizik, je dobré se zamyslet nad uvedenými oblastmi.
-
Detail
Realitní makléř má své nezastupitelné místo v realitním obchodu. Realitním makléřem nemyslím nevzdělané jelito, které absolvovalo dvoudenní školení a ví, jak se nahraje inzerát na inzertní portál.
Realitním makléřem, který se Vám skutečně vyplatí, je zkušený profesionál, který je schopen Vám dobře poradit jak prodat za co nejvíc a s nejmenším rizikem a hlavně je Vás schopen obratně provést celým realitním obchodem.