Prodej - dům/vila, 210 m²
Češovská, Praha 20, Horní Počernice
18 800 000 KčProdej - dům/vila, 210 m²
Češovská, Praha 20, Horní Počernice
Prodej RD 6+2/G 210m² s pozemkem 370m²
Cihlový dům o dispozici 6+2 s garáží nabízí komfortní rodinné bydlení s celkovou užitnou plochou 210 m². Zastavěná plocha činí 97 m² a k domu náleží udržovaný pozemek o výměře 370 m².
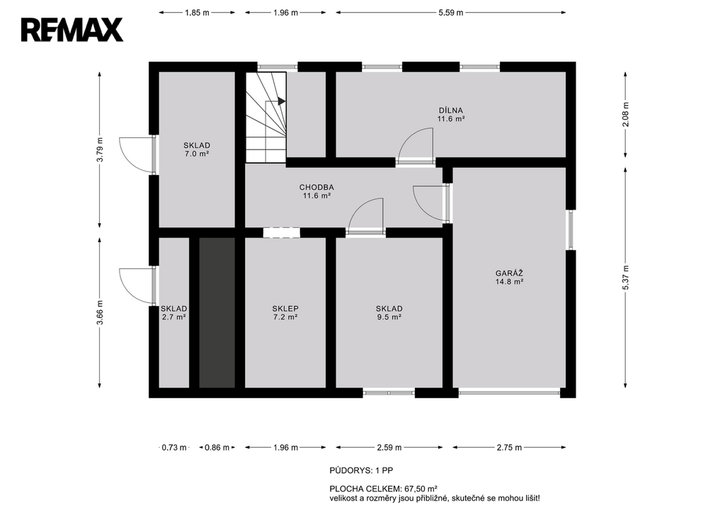
Dům je dvoupodlažní, plně podsklepený a disponuje také prostornou půdou, která nabízí další potenciál využití. V suterénu se nachází sklepní prostory o ploše 52 m², vhodné jako technické zázemí, sklad či dílna, a dále garáž. Před garáží je k dispozici další parkovací stání.
Vytápění je řešeno radiátory napojenými na elektrokotel, k dispozici je rovněž plynový kotel. Ohřev teplé vody zajišťuje elektrický bojler. Na střeše je instalována fotovoltaická elektrárna, která významně snižuje provozní náklady domácnosti.
Dům je napojen na veškeré inženýrské sítě – vodovod, kanalizaci, plyn a elektřinu (230 V). Samozřejmostí je internetové připojení a telekomunikační služby.
Lokalita nabízí výbornou dopravní dostupnost – v blízkosti se nachází vlakové spojení, zastávky MHD, rychlé napojení na dálnici i hlavní silniční tahy. Centrum Prahy je tak pohodlně dostupné autem i veřejnou dopravou.
Nemovitost představuje ideální volbu pro vícečlennou rodinu i zajímavou investiční příležitost.
Financování hypotečním úvěrem je samozřejmostí a s jeho vyřízením vám rádi bezplatně pomůžeme. PENB je aktuálně ve zpracování, proto je nemovitost dočasně zařazena do třídy G. Pro více informací nebo sjednání prohlídky zavolejte makléři nabídky.
| Cena: | 18 800 000 Kč |
| Poznámka: | Včetně provize RK, právního a hypotečního servisu |
| Datum k nastěhování: | 01.03.2026 |
| Číslo zakázky: | REALITYMIX-431883 |
Podrobné informace
- Poloha objektu: samostatný
- Druh objektu: cihlová
- Stav objektu: velmi dobrý
- Počet podlaží objektu: 3
- Typ domu: přízemní
- Zastavěná plocha: 97 m²
- Plocha parcely: 370 m²
- Užitná plocha: 210 m²
- Sklep: 52 m²
- Umístění objektu: klidná část obce
- Doprava: vlak, dálnice, silnice, MHD, autobus
- Komunikace: asfaltová
- Elektřina: Elektro - 230 V
- Voda: Voda - dálkový vodovod
- Telekomunikace: Telefon, Internet
- Plyn: Plynovod
- Odpad: Kanalizace
- Energetická náročnost budovy: G - Mimořádně nehospodárná
- Energetický ukazatel podle vyhlášky: č. 264/2020 Sb.
Právní rádce
-
Detail
V tomto článku shrneme nejdůležitější věci, které byste si měli promyslet, pokud se chystáte prodat svou nemovitost a chcete, abyste s kupujícím nemusel následně řešit vzniklé problémy.
Jako prodávající nesete rizika spojená nejen se samotným obchodem, ale i se stavem nemovitosti v době prodeje a pro minimalizaci rizik, je dobré se zamyslet nad uvedenými oblastmi.
-
Detail
Realitní makléř má své nezastupitelné místo v realitním obchodu. Realitním makléřem nemyslím nevzdělané jelito, které absolvovalo dvoudenní školení a ví, jak se nahraje inzerát na inzertní portál.
Realitním makléřem, který se Vám skutečně vyplatí, je zkušený profesionál, který je schopen Vám dobře poradit jak prodat za co nejvíc a s nejmenším rizikem a hlavně je Vás schopen obratně provést celým realitním obchodem.
Mapa
Podobné nemovitosti
Prodej - dům/vila, 156 m²
Sekeřická, Praha 20, Horní Počernice
18 800 000 Kč
Prodej - dům/vila, 328 m²
Markupova, Praha 20, Horní Počernice
31 900 000 Kč
Prodej - dům/vila, 327 m²
Na Myšině, Praha 20, Horní Počernice
32 900 000 Kč
Prodej - dům/vila, 156 m²
Sekeřická, Praha 20, Horní Počernice
18 800 000 Kč