Prodej - dům/vila, 400 m²
Armádní, Praha-Suchdol, Suchdol
28 880 000 KčProdej - dům/vila, 400 m²
Armádní, Praha-Suchdol, Suchdol
Prodej RD, 8+1, pozemek 769 m2, sklep, garáž, bazén, Praha 6
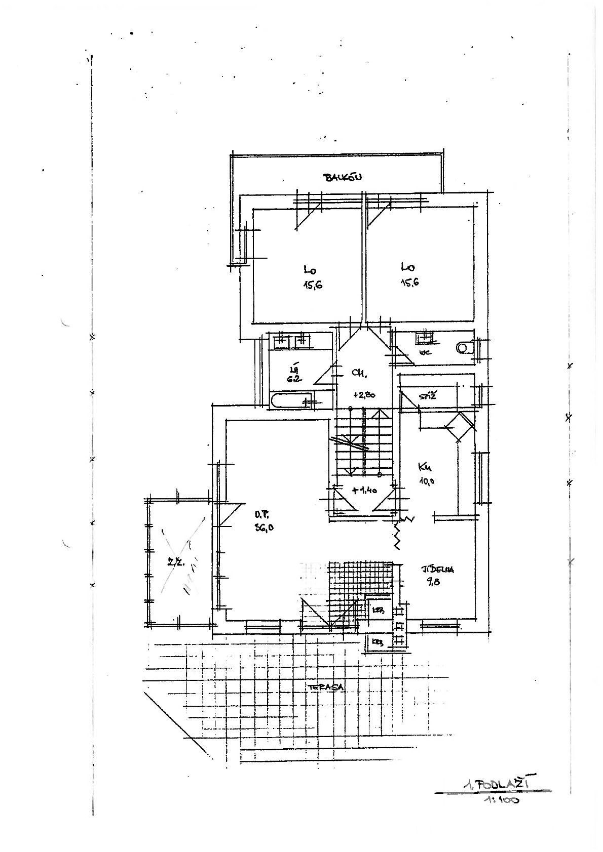
Rodinný dům v klidné části Prahy 6 Suchdola, energeticky úsporný s dispozicí 8+1 se dvěma balkony, terasou, zatepleným obytným podkrovím (nyní využívaný jako tělocvična) a velkorysými suterénními prostory. Najdete tu samostatnou dílnu, technické zázemí, kotelnu, samostatně vytápěnou místnost vhodnou např. pro kancelář i praktický sklípek na zeleninu.
Užitná plocha vč. příslušenství (garáž, sklepy, atd.) 400 m2.
Čistá obytná plocha 196,05 m2, (plocha bez balkonů, chodeb, podest, schodišť, suterénu, dvojgaráže, terasy). Dále 2 balkony 17,5 m2, terasa 27,5 m2. Ochranné pásmo za pozemkem (40 m na každou stranu viz foto).
Vytápění zajišťuje plynový kondenzační kotel Geminox THRs s ovládáním na dálku (nový z r. 2022) se zásobníkem na TUV o objemu 400 l a jako rezerva starší bojler.
Odtah spalin zajišťuje trojkomín pro kondenzační kotel a vnitřní a venkovní krb.
Nová bazénová technologie včetně bazénové fólie (z r. 2024). Bazén se zastřešením je vytápěn prostřednictvím tepelného čerpadla.
Dále nová instalace zahradního zavlažování s retenční nádrží na dešťovku o objemu 30 m3. Dům je napojen na obecní sítě a PCO.
Parkování v přízemí mimo sociálního zázemí a šatny najdete přímý vstup do dvojgaráže. Další 2 parkovací místa nabízí boční dřevěná pergola s pevnou zadní stěnou.
Vzrostlá zeleň v zahradě zajišťuje dostatek soukromí, milou atmosféru dotváří venkovní krb, maximum komfortu potom vyhřívaný bazén se zastřešením.
Suchdol je svébytnou rezidenční čtvrtí Prahy 6 s ucelenou občanskou vybaveností. Bydlení zde je klidnou oázou mimo ruch města s hned za brankou a spoustou příležitostí k aktivnímu odpočinku.
Pro více informací jsem vám k dispozici na kontaktech uvedených níže.
| Cena: | 28 880 000 Kč |
| Poznámka: | Vč. provize, právních služeb, poplatků |
| Datum k nastěhování: | 21.12.2025 |
| Číslo zakázky: | REALITYMIX-925563 |
Podrobné informace
- Poloha objektu: samostatný
- Druh objektu: cihlová
- Stav objektu: velmi dobrý
- Počet podlaží objektu: 3
- Typ domu: patrový
- Zastavěná plocha: 158 m²
- Plocha parcely: 769 m²
- Zahrada: 611 m²
- Užitná plocha: 400 m²
- Sklep: 53 m²
- Balkon: 18 m²
- Terasa: 28 m²
- Ostatní: Garáž
- Doprava: silnice, MHD
- Elektřina: Elektro - 230 V
- Voda: Zdroj pro celý objekt, Voda - dálkový vodovod
- Telekomunikace: Internet
- Plyn: Plynovod
- Odpad: Kanalizace
- Energetická náročnost budovy: E - Nehospodárná
- Popis vybavení: .
Právní rádce
-
Detail
V tomto článku shrneme nejdůležitější věci, které byste si měli promyslet, pokud se chystáte prodat svou nemovitost a chcete, abyste s kupujícím nemusel následně řešit vzniklé problémy.
Jako prodávající nesete rizika spojená nejen se samotným obchodem, ale i se stavem nemovitosti v době prodeje a pro minimalizaci rizik, je dobré se zamyslet nad uvedenými oblastmi.
-
Detail
Realitní makléř má své nezastupitelné místo v realitním obchodu. Realitním makléřem nemyslím nevzdělané jelito, které absolvovalo dvoudenní školení a ví, jak se nahraje inzerát na inzertní portál.
Realitním makléřem, který se Vám skutečně vyplatí, je zkušený profesionál, který je schopen Vám dobře poradit jak prodat za co nejvíc a s nejmenším rizikem a hlavně je Vás schopen obratně provést celým realitním obchodem.