Prodej - dům/vila, 208 m²
Přední Výtoň, Český Krumlov
9 850 000 KčProdej - dům/vila, 208 m²
Přední Výtoň, Český Krumlov
Přední Výtoň - prostorný rodinný dům s udržovanou zahradou
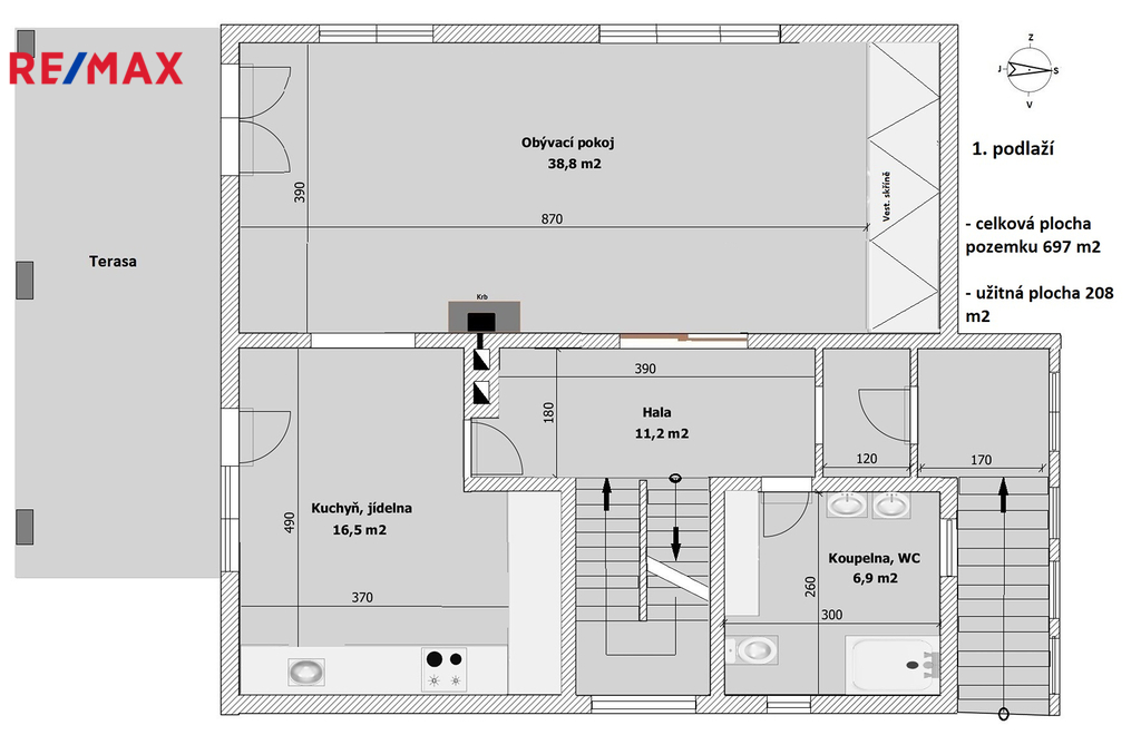
Součástí pozemku o celkové výměře 697 m2 je kompletně podsklepený, dvoupodlažní dům o zastavěné ploše 108 m2, který disponuje užitnou plochou cca 208 m2. Kolaudován byl v r. 1995, ale v průběhu let byl velmi pečlivě udržován a také modernizován: první nadzemní podlaží je po celkové rekonstrukci, v části výměna oken, přístavba pergoly aj.
Obytná část disponuje dvěma bytovými jednotkami a je členěna ve dvou podlažích. V 1. nadzemním podlaží se nachází vstupní veranda, předsíň, chodba, obývací pokoj prostorem na spaní je propojený s jídelním a kuchyňským a koutem a je z něj přímý vstup na venkovní, zastřešenou terasu. Dále je zde koupelna s velkým sprchovým koutem a WC, vytápěná elektrickými podlahovými rozvody.
Z chodby je přístup do druhého podlaží, kde jsou dva pokoje, koupelna se sprchovým koutem a s WC, šatna a samostatná kuchyně. V chodbě je výlez na půdu, kde by byla možnost vybudování podkroví o vel. cca 60 m2.
V technickém přízemí domu je bývalá garáž, sloužící jako pracovna, další tři místnosti, z nichž v jedné je příprava na prádelnu a kotelna.
Dům se prodává vybavený vestavěnými skříněmi v koupelně, předsíni a obývacím pokoji, prostornou zánovní kuchyňskou linkou se spotřebiči v 1. NP a dalším dle domluvy. Dispozici domu a jednotlivých podlaží najdete na přiloženém orientačním půdorysu.
Součástí je garáž s průchodem na zahradu, zahradní domek a kůlny na uskladnění dřeva a dalšího příslušenství. Dále částečně prosklená terasa s pergolou. Oplocená zahrada je osázená množstvím okrasných dřevin, díky nimž je na celém pozemku příjemné soukromí. Parkování je možné v garáži nebo na vydlážděné ploše před ní.
Ohřev vody je řešený elektrickým bojlerem, vytápění domu je kombinací plynu (zásobník na propan na zahradě) a lokálního topení pomocí krbové vložky s rozvodem teplého vzduchu i do 2. NP. Dalším vybavením domu je centrální vysavač.
Nemovitost doporučuji klientům, kteří hledají prostorný dům v krásné lokalitě obklopené přírodou, v blízkosti vodní nádrže, a přitom v části obce, kde není nadměrný pohyb turistů. Dům je vhodný jak k trvalému bydlení, tak je ho možné využívat ke krátkodobému pronájmu. V obci je základní občanská vybavenost, komplexní pak v Lipně n. Vltavou nebo Loučovicích. Prodávající si vyhrazuje právo vybrat kupujícího na základě jím zvolených kritérií.
| Cena: | 9 850 000 Kč |
| Číslo zakázky: | REALITYMIX-414296 |
Podrobné informace
- Poloha objektu: samostatný
- Druh objektu: cihlová
- Stav objektu: velmi dobrý
- Počet podlaží objektu: 2
- Typ domu: patrový
- Zastavěná plocha: 108 m²
- Plocha parcely: 697 m²
- Užitná plocha: 208 m²
- Sklep: 70 m²
- Umístění objektu: klidná část obce
- Komunikace: asfaltová
- Voda: Voda - dálkový vodovod
- Plyn: Individuální
- Odpad: Kanalizace
- Energetická náročnost budovy: E - Nehospodárná
- Ukazatel energetické náročnosti budovy: 181 kWh/m²
- Energetický ukazatel podle vyhlášky: č. 264/2020 Sb.
Právní rádce
-
Detail
V tomto článku shrneme nejdůležitější věci, které byste si měli promyslet, pokud se chystáte prodat svou nemovitost a chcete, abyste s kupujícím nemusel následně řešit vzniklé problémy.
Jako prodávající nesete rizika spojená nejen se samotným obchodem, ale i se stavem nemovitosti v době prodeje a pro minimalizaci rizik, je dobré se zamyslet nad uvedenými oblastmi.
-
Detail
Realitní makléř má své nezastupitelné místo v realitním obchodu. Realitním makléřem nemyslím nevzdělané jelito, které absolvovalo dvoudenní školení a ví, jak se nahraje inzerát na inzertní portál.
Realitním makléřem, který se Vám skutečně vyplatí, je zkušený profesionál, který je schopen Vám dobře poradit jak prodat za co nejvíc a s nejmenším rizikem a hlavně je Vás schopen obratně provést celým realitním obchodem.