Prodej bytu, 2+1, 48 m²
Výmyslov, Přerov VIII-Henčlov, Přerov
2 250 000 KčProdej bytu, 2+1, 48 m²
Výmyslov, Přerov VIII-Henčlov, Přerov
Prodej bytu 2+1, Výmyslov - Henčlov
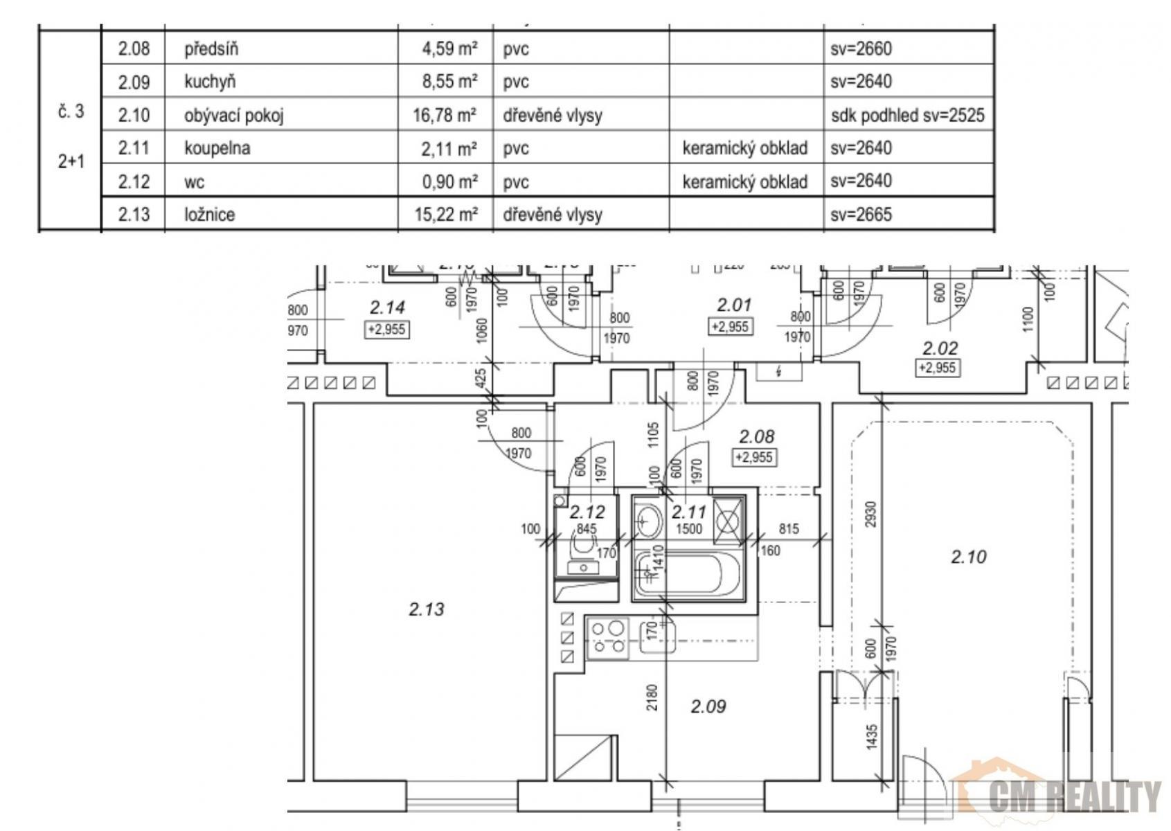
Byt je světlý, s orientací na jihozápad, s příjemným výhledem do okolní zeleně. Nemovitost je určena ke kompletní rekonstrukci. Ideální pro mladý pár nebo jako investice na pronájem. Součástí je nová kuchyňská linka a interiérové dveře. Původní dřevěná okna, potřeba dodělat podlahy.
V bytě jsou připravené funkční komínové vývody ve všech místnostech sousední byty je využívají pro instalaci krbových kamen na tuhá paliva, ze kterých vedou rozvody teplé vody do radiátorů. Alternativně lze vytápění řešit elektrokotlem, instalace do stupaček. Budova je napojena na veřejný vodovod a jednotnou kanalizační síť. Ohřev vody zajišťuje elektrický bojler.
K bytu náleží dvě sklepní kóje o výměře 1,5m2 a 2,8 m2, v domě je k dispozici také společná kolárna. Střecha i statika budovy jsou v pořádku, nečekají vás žádné nečekané investice.
Parkování je umožněno na pozemku přímo před domem. Měsíční náklady do fondu oprav činí 1 727 Kč.
Obec Výmyslov je součástí městské části Henčlov ve statutárním městě Přerov. Nabízí ideální kombinaci venkovského klidu a městské infrastruktury. Do centra Přerova se autem dostanete za pouhých 5 minut.
| Cena: | 2 250 000 Kč |
| Dispozice/podlahová plocha: | 2+1/48 m² |
| Číslo zakázky: | REALITYMIX-1163 |
Podrobné informace
- Dispozice bytu: 2+1
- Číslo podlaží v domě: 2
- Počet podlaží objektu: 3
- Užitná plocha: 48 m²
- Celková podlahová plocha: 48 m²
- Druh objektu: cihlová
- Stav objektu: před rekonstrukcí
- Vlastnictví: osobní
- Umístění objektu: klidná část obce
- Topení: Lokální - tuhá paliva
- Energetická náročnost budovy: G - Mimořádně nehospodárná
Právní rádce
-
Detail
V tomto článku shrneme nejdůležitější věci, které byste si měli promyslet, pokud se chystáte prodat svou nemovitost a chcete, abyste s kupujícím nemusel následně řešit vzniklé problémy.
Jako prodávající nesete rizika spojená nejen se samotným obchodem, ale i se stavem nemovitosti v době prodeje a pro minimalizaci rizik, je dobré se zamyslet nad uvedenými oblastmi.
-
Detail
Realitní makléř má své nezastupitelné místo v realitním obchodu. Realitním makléřem nemyslím nevzdělané jelito, které absolvovalo dvoudenní školení a ví, jak se nahraje inzerát na inzertní portál.
Realitním makléřem, který se Vám skutečně vyplatí, je zkušený profesionál, který je schopen Vám dobře poradit jak prodat za co nejvíc a s nejmenším rizikem a hlavně je Vás schopen obratně provést celým realitním obchodem.
Prodáváte nemovitost a potřebujete zjistit její reálnou hodnotu?
Zjistit reálnou cenuVývoj průměrné ceny za m2 v lokalitě Olomoucký kraj
Prodáváte nemovitost a potřebujete zjistit její reálnou hodnotu?
Zjistit reálnou cenuMapa
Podobné nemovitosti
Prodej bytu, 6+1, 154 m²
Hvězdní, Lipník nad Bečvou I-Město, Přerov
1 350 000 Kč
Prodej bytu, 1+1, 54 m²
nábř. Protifašistických bojovníků, Přerov I-Město, Přerov
3 089 000 Kč
Prodej bytu, 2+kk, 52 m²
Na Výsluní, Lipník nad Bečvou I-Město, Přerov
4 543 790 Kč
Prodej bytu, 3+kk, 82 m²
Na Výsluní, Lipník nad Bečvou I-Město, Přerov
6 574 944 Kč