Prodej - dům/vila, 218 m²
Olešky, Praha-východ
19 900 000 KčProdej - dům/vila, 218 m²
Olešky, Praha-východ
Novostavba pasivního domu, 5+kk, garáž, 218m2, pozemek 1003m2, Olešky, Praha - Východ
Klid. Technologie, které slouží – neobtěžují. Domy, které dýchají – stejně jako vy.
✔️ 218 m² promyšleného prostoru pro život, tvoření i odpočinek.
✔️ 1 003 m² půdy – země, která vám dá kořeny i svobodu.
Domy jsou navrženy v energetickém standardu (PENB A) – úsporné, zdravé a dlouhodobě udržitelné.
Každý detail zde podporuje principy minimalismu, zdraví a ekologie:
✔️ Rekuperace Zehnder pro čerstvý vzduch a zdravý spánek
✔️ Fotovoltaika Solax s bateriemi a wallboxem pro vlastní energii
✔️ Vytápění a ohřev vody Tepelné čerpadlo Stiebel Eltron
✔️ Chlazení tepelným čerpadlem Stiebel Eltron
✔️ Předokenní žaluzie pro komfort i úsporu
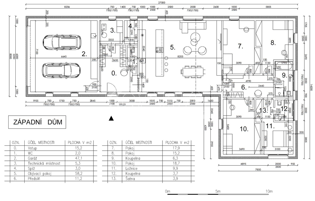
Dispozice, která nabízí prostor pro vaši kreativitu
A také praktická jistota, že vše potřebné máte k dispozici:
✔️ Vodovod i vlastní vrtaná studna – voda, která proudí i patří vám
✔️ Veřejná kanalizace – čistota a jednoduchost bez starostí
✔️ Plyn v pilíři – energie pro další možnosti
✔️ Optický internet – spojení se světem, i když žijete v klidu
Tohle není jen dům.
Je to prostor v rovnováze – technologie a ticho, čistota a teplo domova.
Cena domu je uvedena vč. DPH.
Poslední dům v nabídce.
Těšíme se na prohlídku
Jaroslav Beránek
| Cena: | 19 900 000 Kč |
| Poznámka: | Cena domu je uvedena vč. DPH a provize RK. |
| Datum k nastěhování: | 01.01.2026 |
| Číslo zakázky: | REALITYMIX-18191 |
Podrobné informace
- Poloha objektu: samostatný
- Druh objektu: cihlová
- Stav objektu: novostavba
- Počet podlaží objektu: 1
- Typ domu: přízemní
- Zastavěná plocha: 268 m²
- Plocha parcely: 1003 m²
- Zahrada: 735 m²
- Užitná plocha: 218 m²
- Ostatní: Bezbarierový přístup
- Umístění objektu: klidná část obce
- Doprava: dálnice, silnice, autobus
- Komunikace: asfaltová
- Elektřina: Elektro - 230 V, Elektro - 400 V
- Voda: Voda - dálkový vodovod
- Telekomunikace: Internet
- Plyn: Plynovod
- Odpad: Kanalizace
- Ostatní rozvody: Kabelové rozvody
- Energetická náročnost budovy: A - Mimořádně úsporná
- Ukazatel energetické náročnosti budovy: 24.3 kWh/m²
- Energetický ukazatel podle vyhlášky: č. 264/2020 Sb.
Právní rádce
-
Detail
V tomto článku shrneme nejdůležitější věci, které byste si měli promyslet, pokud se chystáte prodat svou nemovitost a chcete, abyste s kupujícím nemusel následně řešit vzniklé problémy.
Jako prodávající nesete rizika spojená nejen se samotným obchodem, ale i se stavem nemovitosti v době prodeje a pro minimalizaci rizik, je dobré se zamyslet nad uvedenými oblastmi.
-
Detail
Realitní makléř má své nezastupitelné místo v realitním obchodu. Realitním makléřem nemyslím nevzdělané jelito, které absolvovalo dvoudenní školení a ví, jak se nahraje inzerát na inzertní portál.
Realitním makléřem, který se Vám skutečně vyplatí, je zkušený profesionál, který je schopen Vám dobře poradit jak prodat za co nejvíc a s nejmenším rizikem a hlavně je Vás schopen obratně provést celým realitním obchodem.
Mapa
Podobné nemovitosti
Prodej - dům/vila, 230 m²
Vestecká, Stará Boleslav, Praha-východ
17 900 000 Kč
Prodej - dům/vila, 160 m²
Ondřejovská, Struhařov, Praha-východ
15 490 000 Kč
Prodej - dům/vila, 200 m²
Haškova, Radošovice, Praha-východ
14 900 000 Kč
Prodej - dům/vila, 579 m²
Českobrodská, Kostelec nad Černými lesy, Praha-východ
15 000 000 Kč