Hospodářské noviny
Hledat Přihlásit seMůj účet Předplatné
Přihlásit seMůj účet Předplatné
  • Home
  • Byznys
  • Zprávy
  • Názory
  • Tech
  • Reality
  • Investice
  • Podcasty
  • Hry
  • PročNe
  • Archiv
  • Další
  • Jak nastartovat sever
  • Speciály HN
  • Víkend
  • Magazín Stavba
  • Knihy HN
  • Eventy
  • Green Deal
  • Inovátoři roku
  • Top ženy
  • Nej banka / Nej pojišťovna
  • Předplatné
  • Redakce
  • Inzerce
  • Kontakty
  • Newslettery
  • Ekonom
  • Logistika
  • Právní rádce
  • Hry
  • Economia
  • BeNative
  • Nastavení účtu
  • Moje předplatné
  • Odhlásit se

Reality

  • Reality
  • Vyhledávání nemovitostí
  • Top realitní fondy
  • Magazín Stavba
Prodej - dům/vila, 185 m²

Prodej - dům/vila, 185 m²

Radějovice, Praha-východ

12 950 000 Kč
  • RealityMIX
  • Domy a vily
  • Prodej
  • Středočeský kraj
  • Praha-východ
0 z 5 (0 hodnocení)

Prodej - dům/vila, 185 m²

Radějovice, Praha-východ

12 950 000 Kč
E
Nehospodárná
Výpis
Předchozí inzerát Další inzerát
1750938100-gcbpjvepmj-img-9277
1750938099-hfdrqrtxym-img-9162
1750938099-hqmzctrwbd-img-9163

Prodej domu 185 m², pozemek 1.742 m²

Nabízíme k prodeji výjimečnou, atypickou nemovitost na lukrativním pozemku se vzrostlou zahradou
A velkorysým bazénem.
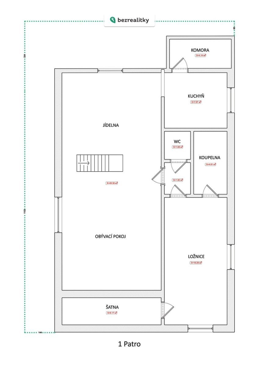
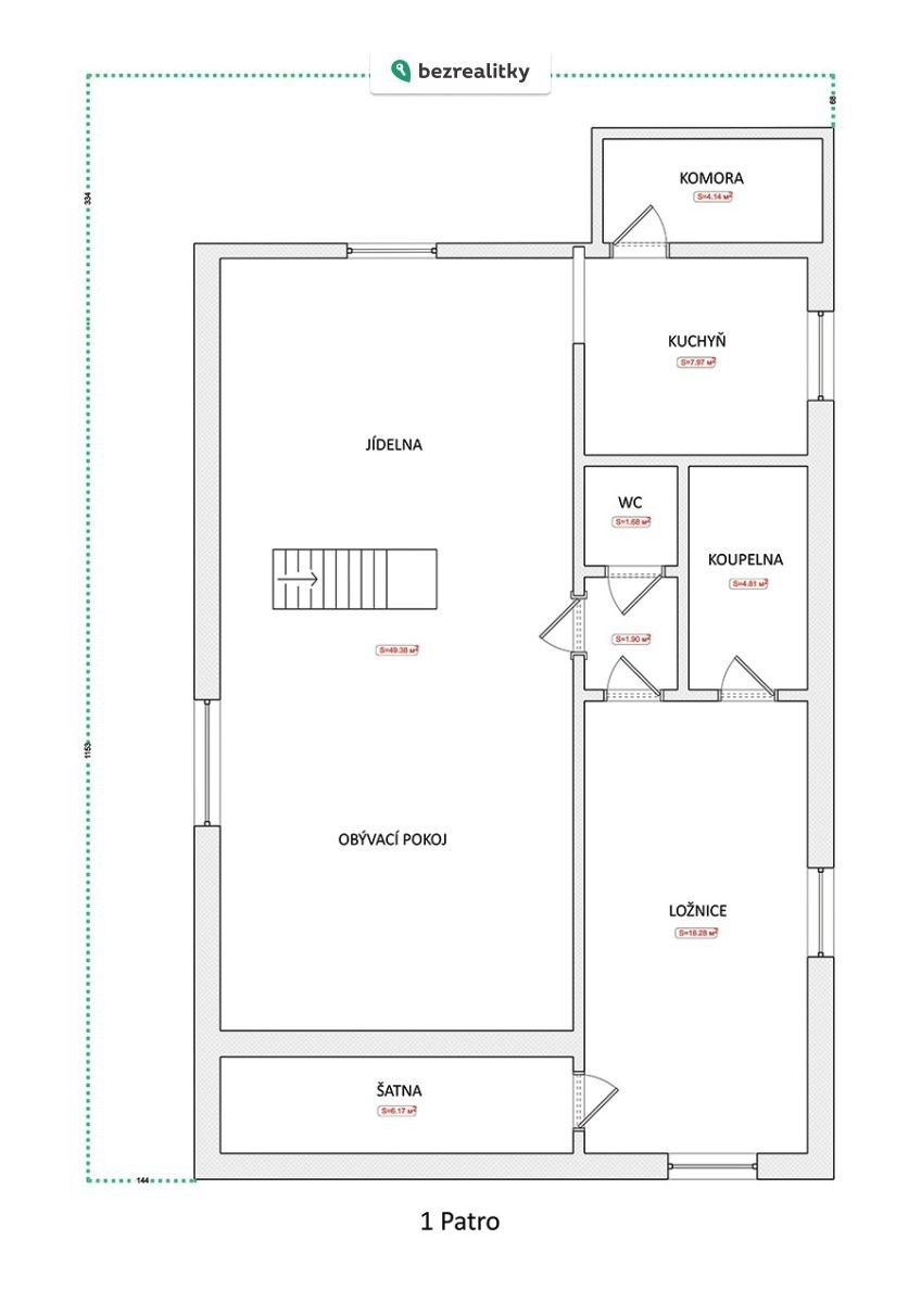
Dispozice domu jsou:
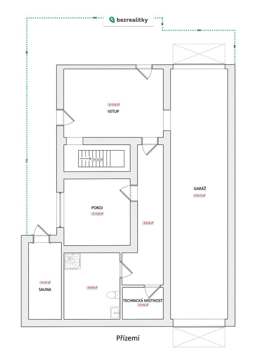
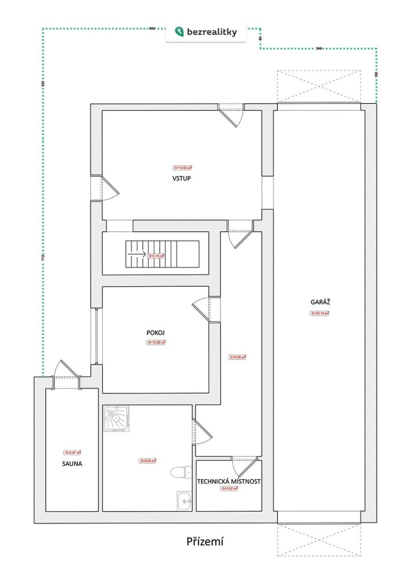
• Přízemí - 90 m2
• Vstupní hala
• Schodiště do 1.patra
• Pokoj
• Chodba
• Koupelna, WC, solárium
• Sauna
• Technická místnost
• Garáž
• 1. Patro - 95 m2
• Obývací pokoj a jídelna
• ložnice
• šatna
• chodba
• WC samostatné
• Koupelna + WC
• Kuchyň
• Komora

U bazénu je venkovní dlážděná terasa s ohništěm.
V patře je kolem poloviny domu, která vede nad zahradou, prostorný, průchozí balkon.
Kromě garáže o velikosti 33 m2 lze na vjezdu do pozemku zaparkovat 3 auta.
Autobusová zastávka je 1 minutu chůze od domu.
Požadovaná cena je 12.950.000 Kč.

RK nevolejte. Tato nemovitost je určena výhradně přímým zájemcům o koupi. Na inzerát můžete také reagovat přímo na webu Bezrealitky: https://www.bezrealitky.cz/nemovitosti-byty-domy/918684-nabidka-prodej-domu-radejovice
Cena: 12 950 000 Kč  
Číslo zakázky: REALITYMIX-918684

Podrobné informace

  • Poloha objektu: samostatný
  • Druh objektu: cihlová
  • Stav objektu: dobrý
  • Počet podlaží objektu: 1
  • Typ domu: přízemní
  • Zastavěná plocha: 185 m²
  • Plocha parcely: 1742 m²
  • Užitná plocha: 185 m²
  • Balkon: 15 m²
  • Terasa: 20 m²
  • Ostatní: Garáž, Parkoviště
  • Energetická náročnost budovy: E - Nehospodárná

Sdílej na:

Facebook     Twitter

Tisk nabídky (pdf)

  • (A4)
  • (A4)
  • (A4)
  • (A4)
  • (A5)

Poslat odkaz:

Právní rádce

Právní rádce
  • V tomto článku shrneme nejdůležitější věci, které byste si měli promyslet, pokud se chystáte prodat svou nemovitost a chcete, abyste s kupujícím nemusel následně řešit vzniklé problémy.

    Jako prodávající nesete rizika spojená nejen se samotným obchodem, ale i se stavem nemovitosti v době prodeje a pro minimalizaci rizik, je dobré se zamyslet nad uvedenými oblastmi.

    Detail
  • Realitní makléř má své nezastupitelné místo v realitním obchodu. Realitním makléřem nemyslím nevzdělané jelito, které absolvovalo dvoudenní školení a ví, jak se nahraje inzerát na inzertní portál.

    Realitním makléřem, který se Vám skutečně vyplatí, je zkušený profesionál, který je schopen Vám dobře poradit jak prodat za co nejvíc a s nejmenším rizikem a hlavně je Vás schopen obratně provést celým realitním obchodem.

    Detail
  • Detail
Chci vědět víc
Právní rádce

Mapa

* Umístění na mapě je na základě GPS informací dodaných realitní kanceláří.
* Pozice na mapě je pouze orientační.

Souhlas se zpracováním osobních údajů

Uživatel serveru Reality.hn.cz (dále jen „Server“) dostupného na internetové adrese (URL) https://realitymix.hn.cz, který provozuje společnost DALTEN media s.r.o., se sídlem Na Harfě 916/9a, Praha 9, 190 00, IČO: 271 35 306 (dále jen „Správce“) jako provozovateli tohoto Serveru uděluje svůj výslovný souhlas v souladu s ustanovením § 5 zákona č. 101/2000 Sb. O ochraně osobních údajů a o změně některých zákonů, v platném znění (dále jen „zákon o ochraně osobních údajů“), se zpracováním uživatelem poskytnutých osobních údajů a dalších dat.

Uživatel poskytuje Správci osobní údaje v rozsahu: jméno, příjmení, e-mailová adresa, telefonický kontakt a další data, a to z důvodu projeveného zájmu o nemovitost, kde prostřednictvím služby Serveru Správce osloví Uživatel inzerenta uvedeného v detailu nemovitosti - Bezrealitky s.r.o. (IČ 08063168) se zájmem o jeho služby.

Uživatel tyto osobní údaje poskytuje dobrovolně a bere na vědomí, že součástí služeb Správce, které Správce Uživateli poskytuje, je vyhledání všech Uživateli vyhovujících (dle parametrů - cena, typ nemovitosti, lokalita atd.) nemovitostí. Správce za tímto účelem provozuje aplikace Hlídací pes a newsletter. Tyto služby je možné z každého zaslaného emailu odhlásit. Souhlas se zpracováním osobních údajů Uživatel poskytuje Správci na dobu neurčitou s tím, že svůj udělený souhlas může Uživatel kdykoliv na drese správce info@realitymix.cz odvolat. Správce garantuje Uživateli i další práva uvedené v ustanovení §11 a §21 zákoba č. 101/200 Sb. Ve znění pozdějších předpisů. Více informací o zpracování údajů získáte zde (realitymix.cz/zasady-ochrany-osobnich-udaju)

Podobné nemovitosti

Prodej - dům/vila, 105 m² obrázek

Prodej - dům/vila, 105 m²

Praha-východ

10 790 000 Kč
Prodej - dům/vila, 183 m² obrázek

Prodej - dům/vila, 183 m²

Výletní, Brandýs nad Labem, Praha-východ

11 500 000 Kč
Prodej - dům/vila, 275 m² obrázek

Prodej - dům/vila, 275 m²

Chomutovice, Popovičky, Praha-východ

9 950 000 Kč
Prodej - dům/vila, 224 m² obrázek

Prodej - dům/vila, 224 m²

Štiřínská, Želivec, Praha-východ

11 000 000 Kč

Napsat zprávu prodejci

Prodej - dům/vila, 185 m²

Prodej - dům/vila, 185 m²

Radějovice, Praha-východ

12 950 000 Kč

Hospodářské noviny

© 1996-2026 Economia, a.s.

Hospodářské noviny (print)   ISSN 0862-9587
Hospodářské noviny (online) ISSN 2787-950X

Certifikováno
jti
Sledujte nás
Stáhněte si aplikaci HN
  • Kontakty
  • Tiráž redakce HN
  • Economia
  • Kariéra v HN
  • Ceník inzerce
  • Ochrana osobních údajů
  • Prohlášení o cookies
  • Nastavení soukromí
  • Všeobecné smluvní podmínky
  • Koupit / darovat předplatné
  • Eventy
  • Newslettery
  • RSS kanály
Autorská práva vykonává vydavatel. Bez písemného svolení vydavatele je zakázáno jakékoli užití částí nebo celku díla, zejména rozmnožování a šíření jakýmkoli způsobem, mechanickým nebo elektronickým, v českém nebo jiném jazyce. Bez souhlasu vydavatele je zakázáno též rozmnožování obsahu pro účely automatizované analýzy textů nebo dat podle ustanovení § 39c autorského zákona.