Prodej - dům/vila, 213 m²
Radim, Kolín
5 320 000 KčProdej - dům/vila, 213 m²
Radim, Kolín
Rodinný dům v centru obce
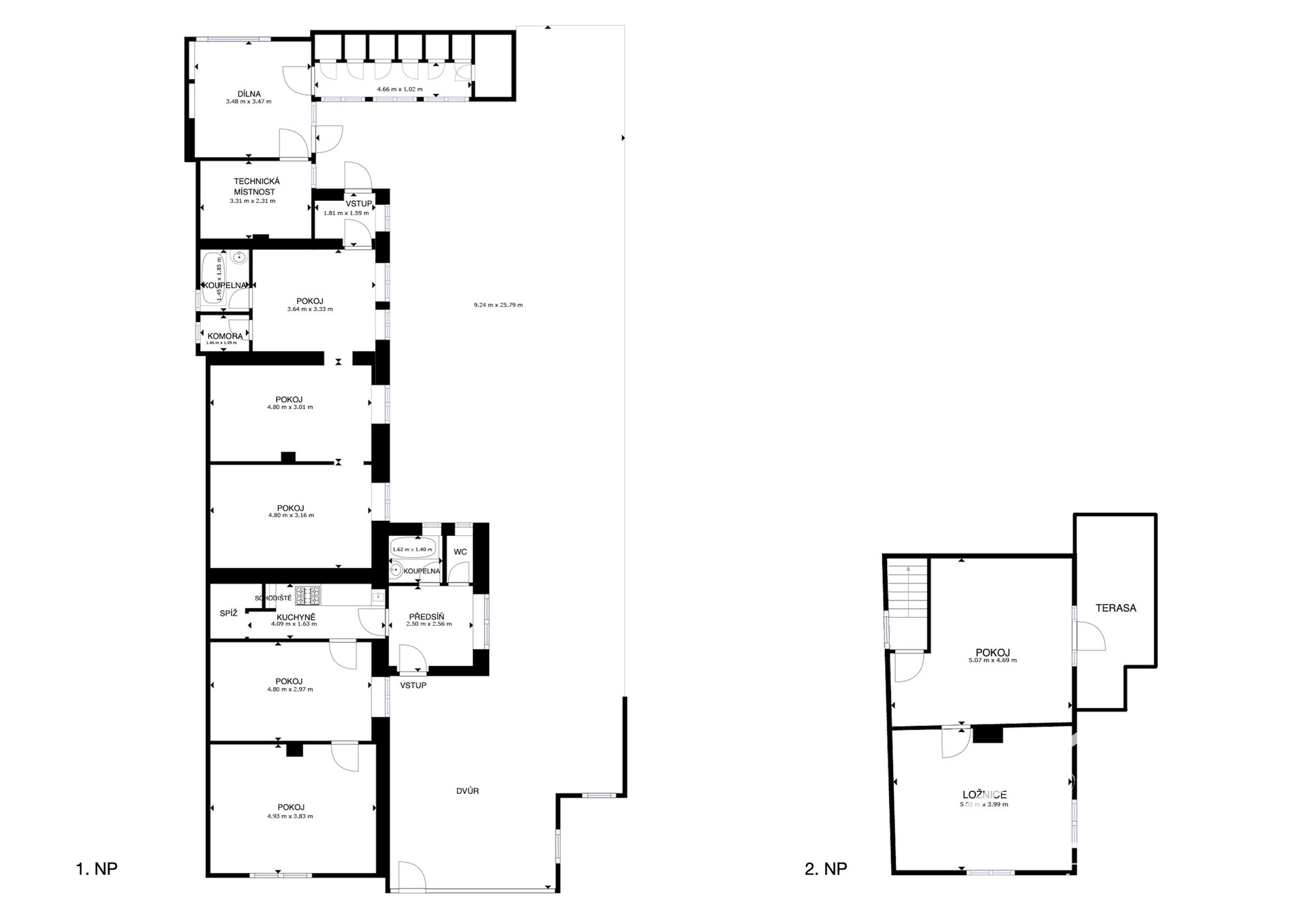
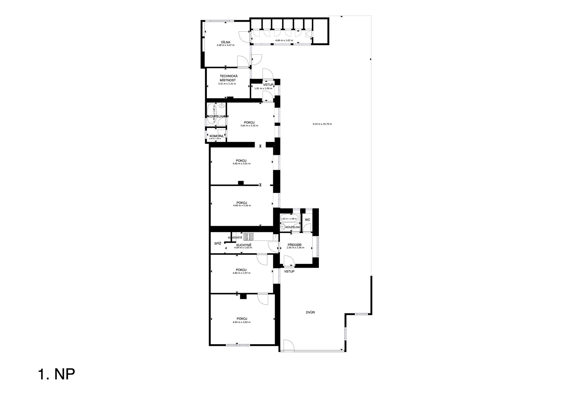
První stavbou je dům s č.p. postavený v roce 1971. Do domu vstoupíte verandou, ve které naleznete sociální zařízení. V chodbičce v přízemí je umístěna kuchyňská linka se dřezem, spíž a schody do 1.NP. Vlevo od kuchyňské linky jsou pak dva průchozí pokoje. V 1.NP naleznete dva další pokoje a vstup na balkon.
Na tento dům navazuje původní rodinný dům o dispozici 2+1, který je určen buď ke kompletní rekonstrukci, nebo demolici. Na pozemku se dále nachází vedlejší stavby - garáž, kotelna a dílny.
Veškeré stavby jsou určeny k rekonstrukci. Dům je napojen na plyn, obecní vodu, vytápění plynovým kotlem.
Největší devizou je však pozemek samotný. Umístěn je v klidné části obce, přesto v centru.
V obci naleznete základní občanskou vybavenost - dva obchody, poštu, MŠ a ZŠ do 5. třídy, ordinaci obvodního lékaře a box Zásilkovny.
Doporučuji prohlídku.
Majitel si vyhrazuje právo vybrat zájemce na základě jím zvolených kritérií.
Financování koupě této nemovitosti Vám ráda pomůžu zajistit.
| Cena: | 5 320 000 Kč |
| Číslo zakázky: | REALITYMIX-00184 |
Podrobné informace
- Poloha objektu: samostatný
- Druh objektu: smíšená
- Stav objektu: před rekonstrukcí
- Počet podlaží objektu: 2
- Typ domu: patrový
- Zastavěná plocha: 213 m²
- Plocha parcely: 958 m²
- Zahrada: 700 m²
- Dílna: 77 m²
- Užitná plocha: 213 m²
- Sklep: 4 m²
- Balkon: 15 m²
- Ostatní: Garáž, Parkoviště
- Umístění objektu: klidná část obce
- Doprava: vlak, dálnice, silnice, MHD, autobus
- Komunikace: asfaltová
- Elektřina: Elektro - 230 V
- Voda: Voda - dálkový vodovod
- Plyn: Plynovod
- Topení: Lokální - tuhá paliva, Ústřední - plynové
- Energetická náročnost budovy: G - Mimořádně nehospodárná
Právní rádce
-
Detail
V tomto článku shrneme nejdůležitější věci, které byste si měli promyslet, pokud se chystáte prodat svou nemovitost a chcete, abyste s kupujícím nemusel následně řešit vzniklé problémy.
Jako prodávající nesete rizika spojená nejen se samotným obchodem, ale i se stavem nemovitosti v době prodeje a pro minimalizaci rizik, je dobré se zamyslet nad uvedenými oblastmi.
-
Detail
Realitní makléř má své nezastupitelné místo v realitním obchodu. Realitním makléřem nemyslím nevzdělané jelito, které absolvovalo dvoudenní školení a ví, jak se nahraje inzerát na inzertní portál.
Realitním makléřem, který se Vám skutečně vyplatí, je zkušený profesionál, který je schopen Vám dobře poradit jak prodat za co nejvíc a s nejmenším rizikem a hlavně je Vás schopen obratně provést celým realitním obchodem.