Prodej - dům/vila, 175 m²
Syrovická, Rajhrad, Brno-venkov
13 990 000 KčProdej - dům/vila, 175 m²
Syrovická, Rajhrad, Brno-venkov
Prodej rodinného domu 5+kk s pozemkem (283 m²), ul. Syrovická, Rajhrad (2)
Rodinný dům o podlahové ploše 175 m² je ve fázi výstavby a je jeden ze čtyř nízkoenergetických rodinných domů na ulici Syrovická, v Rajhradě.
Energetické náročnost domu je klasifikována do třídy A - mimořádně úsporné.
VÝSTAVBA ZAHÁJENA 9/2025
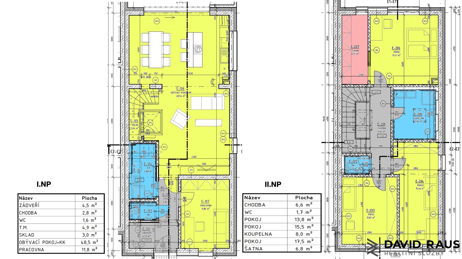
Dispozice domu:
1.NP
Vstupní dveře vedou do zádveří ( 4,5 m²), vedoucí do chodby (2,8 m²) s přístupem na samostatné WC ( 1,6 m²), do technické místnosti ( 4,9 m²), pracovny (11,8m²), skladu (3,0 m²)a otevřeného obývacího pokoje s kuchyňským koutem ( 48,5 m²). Ústředním prvkem propojující jednotlivá patra domu je schodiště z obývacího pokoje.
2.NP
Do druhého patra domu vystoupáme po schodišti na chodbu ( 6,6 m²), kde se nachází tři samostatné pokoje, které mohou sloužit jako samostatné dva dětské pokoje ( 13,8m², 15,5m²) a ložnice (17,5m²) ze které vedou dveře do šatny (6,8m²). K dispozici na patře je prostorná koupelna ( 8,0 m²) a samostatné WC ( 1,7m²).
Základní informace :
- výstavba RD na klíč (5+kk )
- podlahová plocha domu 175 m²
- užitná plocha domu 147 m²
- výměra pozemku 283 m²
- fotovoltaická elektrárna
- podlahové teplovodní topení
- tepelné čerpadlo
- zastřešené parkovací stání
- perfektní občanská vybavenost a dostupnost do města Brna
- atraktivní lokalita pro bydlení
- stavba zahájena 9/2025
Veškerý právní servis zajištěn. Nabízím možnost financování. Pro více informací kontaktujte makléře.
| Cena: | 13 990 000 Kč |
| Poznámka: | včetně provize RK |
| Číslo zakázky: | REALITYMIX-00325 |
Podrobné informace
- Poloha objektu: řadový
- Druh objektu: cihlová
- Stav objektu: ve výstavbě (hrubá stavba)
- Počet podlaží objektu: 1
- Typ domu: patrový
- Zastavěná plocha: 175 m²
- Plocha parcely: 283 m²
- Užitná plocha: 175 m²
- Doprava: vlak, dálnice, silnice, autobus
- Komunikace: asfaltová
- Elektřina: Elektro - 230 V
- Voda: Voda - dálkový vodovod
- Odpad: Kanalizace
- Energetická náročnost budovy: A - Mimořádně úsporná
- Ukazatel energetické náročnosti budovy: 51.5 kWh/m²
- Energetický ukazatel podle vyhlášky: č. 264/2020 Sb.
Právní rádce
-
Detail
V tomto článku shrneme nejdůležitější věci, které byste si měli promyslet, pokud se chystáte prodat svou nemovitost a chcete, abyste s kupujícím nemusel následně řešit vzniklé problémy.
Jako prodávající nesete rizika spojená nejen se samotným obchodem, ale i se stavem nemovitosti v době prodeje a pro minimalizaci rizik, je dobré se zamyslet nad uvedenými oblastmi.
-
Detail
Realitní makléř má své nezastupitelné místo v realitním obchodu. Realitním makléřem nemyslím nevzdělané jelito, které absolvovalo dvoudenní školení a ví, jak se nahraje inzerát na inzertní portál.
Realitním makléřem, který se Vám skutečně vyplatí, je zkušený profesionál, který je schopen Vám dobře poradit jak prodat za co nejvíc a s nejmenším rizikem a hlavně je Vás schopen obratně provést celým realitním obchodem.