Prodej - dům/vila, 91 m²
Roudné, České Budějovice
11 500 000 KčProdej - dům/vila, 91 m²
Roudné, České Budějovice
Moderní rodinný dům 4+kk s pozemkem 537 m2- Zlaté Roudné - volný dům č.63 k předání v 12/2026
Zákazník nyní může sám volit konečnou podobu svého domu výběrem dle vlastního přání (podlahových krytin, vnitřních dveří, obkladů, dlažeb a sanity koupelny), standardy předložíme zájemci.
“REZIDENCE ZLATÉ ROUDNÉ“ se nachází v obci Roudné v nadmořské výšce 393 m.n.m asi 3 km jižně od Českých Budějovic. Roudné bylo založeno při levém břehu Malše, navazuje na městskou část Rožnov. Vybavenost obce Roudné: mateřská škola, hřiště, restaurace, knihovna, kulturní sál, víceúčelový sál, požární zbrojnice, sběrný dvůr, v obci fungují spolky – SDH Roudné, MS Malše Roudné a sportovní kluby: TJ Malše Roudné – fotbalový klub, Vladykův Dvůr – jezdecký klub.
Navazujeme na již několikátý úspěšně realizovaný a velmi žádaný projekt investora, který je jednička ve svém oboru.
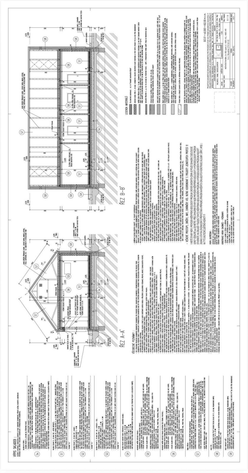
Obytná plocha domu je 90,05m2. Zastavěná plocha domu 112,50m2 + parkovací stání pro 2 auta cca 36m2+ terasa o výměře 12m2.
Dispozice: samostatné WC(2,2m2), tech.místnost(2,4m2), koupelna s WC(7,95m2), obývací pokoj s kuch.koutem (29,45m2), chodba (12,24m2), 3 ložnice (12m2, 10m2, 10m2), šatna (3,8m2)+úložný prostor na půdě (možnost obytné podkroví).
Vybavenost domu: Zpevněná plocha – terasa ze zámkové dlažby Best Beleza, vchod a parking ze zámkové dlažby Best Klasik, plot – podhrabový obrubník + 3D drátěné poplastované pletivo (180–200cm), systémová branka cca 1m + 3m brána dvoukřídlá, příprava na venkovní žaluzie (kastlíky), příprava na krbová kamna a klimatizaci, konstrukce Porotherm 240–300 obvod, vnitřní 200, příčky 150, zateplovací systém 180/200mm polystyren, plastová okna a dveře – izolační trojsklo, barva bílá, veškeré vnitřní rozvody – elektřina, plyn, voda, topení, plynový kotel BAXI se zásobníkem vody, v celém domě podlahové vytápění, podlahy vinyl a dlažba, dveře s obložkami, koupelna se sprchovým koutem, vanou, umyvadlem a toaletou, příprava na fotovoltaiku.
V ceně není: kuch.linka, svítidla, žaluzie, klimatizace, komín, nábytek, pergola, finální úprava zahrady.
Pozemky jsou přístupné po obecní komunikaci, výstavba domů probíhá na zasíťovaném a zkolaudovaném ZTV–plyn, elektřina, vodovod, kanalizace, Starnet – optický kabel.
Velký zřetel je kladen na energetickou úspornost domu, aby jeho budoucí majitel měl co nejnižší náklady na provoz domu (PENB–B).
Hypoteční servis zdarma (naši hypoteční poradci řeší úvěry u všech bankovních domů za nejlepších podmínek na trhu). Navazujeme na již několikátý úspěšně realizovaný a velmi žádaný projekt investora, který je jednička ve svém oboru.
Již 15 let bydlíme v domě, který stavěl tento developer, tak můžeme z vlastní zkušenosti vřele doporučit. Těšíme se na vás při prohlídce v Roudném. Buďte další spokojený soused.
| Cena: | 11 500 000 Kč |
| Číslo zakázky: | REALITYMIX-CB251122 |
Podrobné informace
- Poloha objektu: samostatný
- Druh objektu: cihlová
- Stav objektu: novostavba
- Počet podlaží objektu: 1
- Typ domu: přízemní
- Zastavěná plocha: 113 m²
- Plocha parcely: 537 m²
- Zahrada: 400 m²
- Užitná plocha: 91 m²
- Terasa: 12 m²
- Umístění objektu: okraj obce
- Energetická náročnost budovy: G - Mimořádně nehospodárná
- Energetický ukazatel podle vyhlášky: č. 264/2020 Sb.
Právní rádce
-
Detail
V tomto článku shrneme nejdůležitější věci, které byste si měli promyslet, pokud se chystáte prodat svou nemovitost a chcete, abyste s kupujícím nemusel následně řešit vzniklé problémy.
Jako prodávající nesete rizika spojená nejen se samotným obchodem, ale i se stavem nemovitosti v době prodeje a pro minimalizaci rizik, je dobré se zamyslet nad uvedenými oblastmi.
-
Detail
Realitní makléř má své nezastupitelné místo v realitním obchodu. Realitním makléřem nemyslím nevzdělané jelito, které absolvovalo dvoudenní školení a ví, jak se nahraje inzerát na inzertní portál.
Realitním makléřem, který se Vám skutečně vyplatí, je zkušený profesionál, který je schopen Vám dobře poradit jak prodat za co nejvíc a s nejmenším rizikem a hlavně je Vás schopen obratně provést celým realitním obchodem.