Prodej - dům/vila, 137 m²
prap. Fr. Vrzala, Senice na Hané, Olomouc
9 490 000 KčProdej - dům/vila, 137 m²
prap. Fr. Vrzala, Senice na Hané, Olomouc
Exkluzivní desigový dům novostavba v obci Senice na Hané u Olomouce, 137 m2, pozemek 587 m2
Jedná se o čtyřpokojový třípodlažní dům s otevřeným obývacím prostorem nad kuchyní a výhledem do zahrady v úsporné třídě B, dokončený a zkolaudovaný v roce 2023. Projekt domu byl zpracován architekty z ateliéru Tři.čtrnáct. Dům byl vybrán a publikován v uznávané architektonické knize 66 domů, která představuje to nejlepší ze současné architektury.
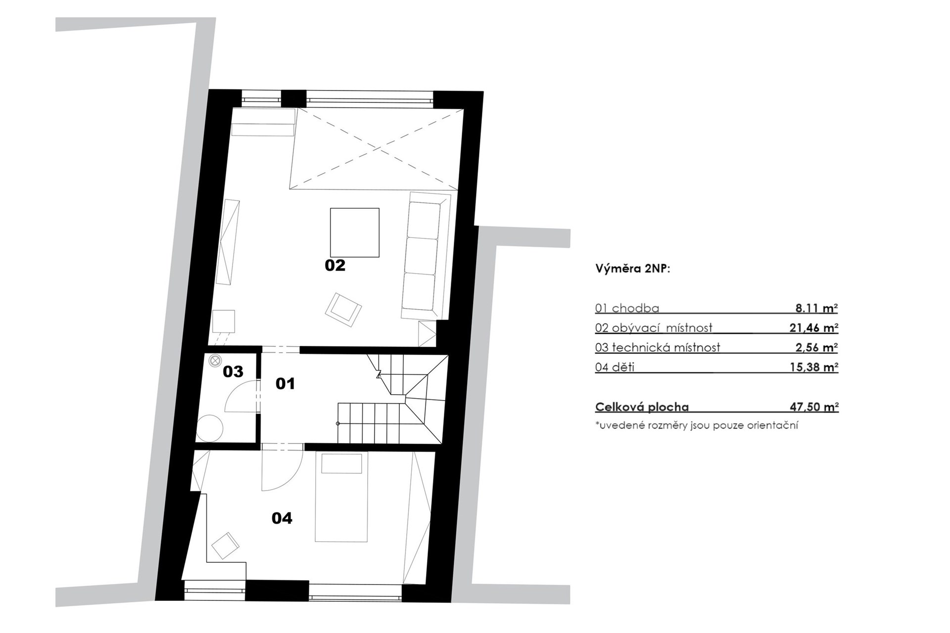
Při vstupu z ulice najdete exteriérovou chodbu, vedoucí na zahradu a zároveň i do domu. Dispozice zahrnuje vstupní zádveří s šatními skříněmi, prosklenou kuchyni s otevřeným stropem, jídelnou a vstupem na terasu, dále koupelnu se sprchovým koutem a komoru s úložným prostorem.
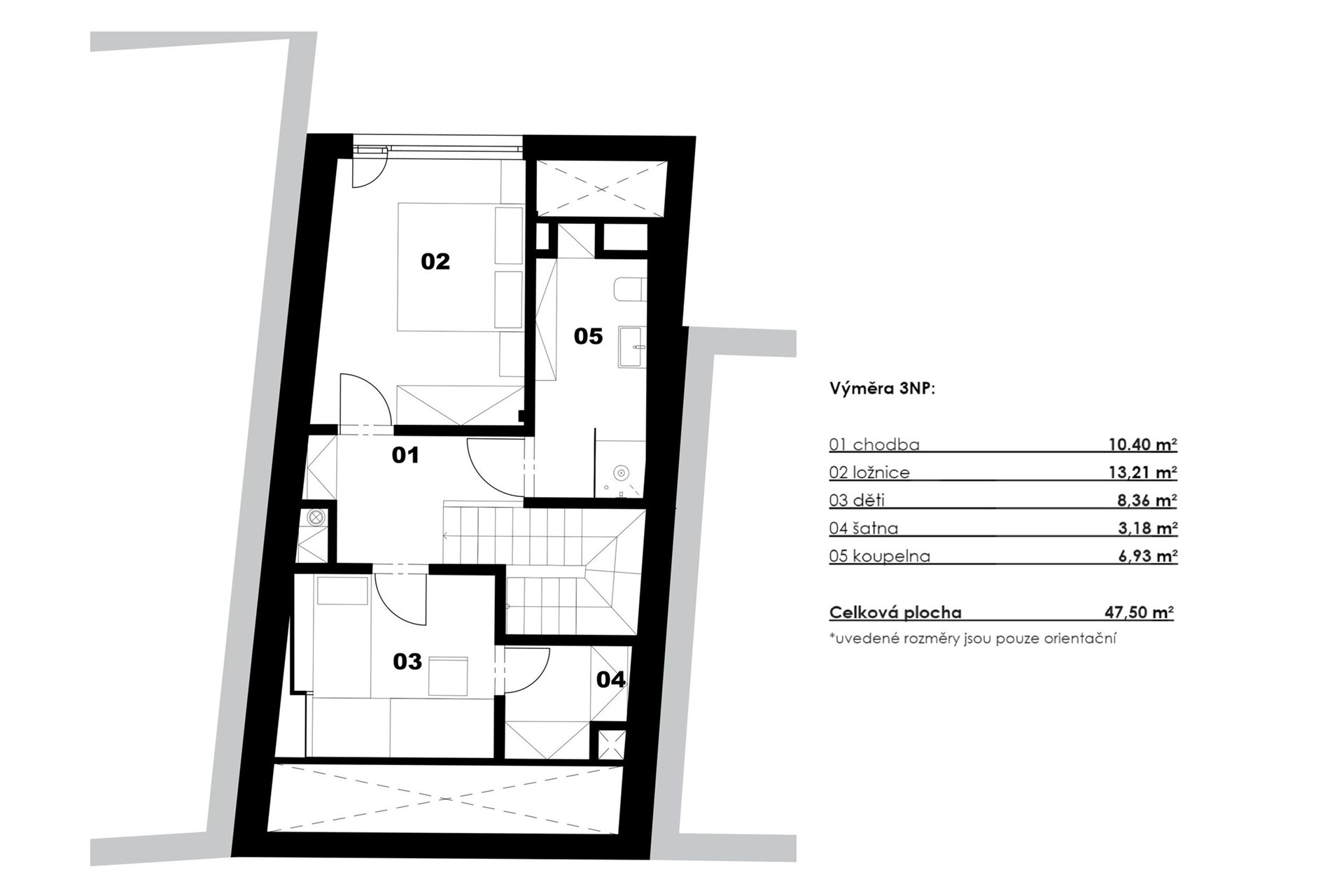
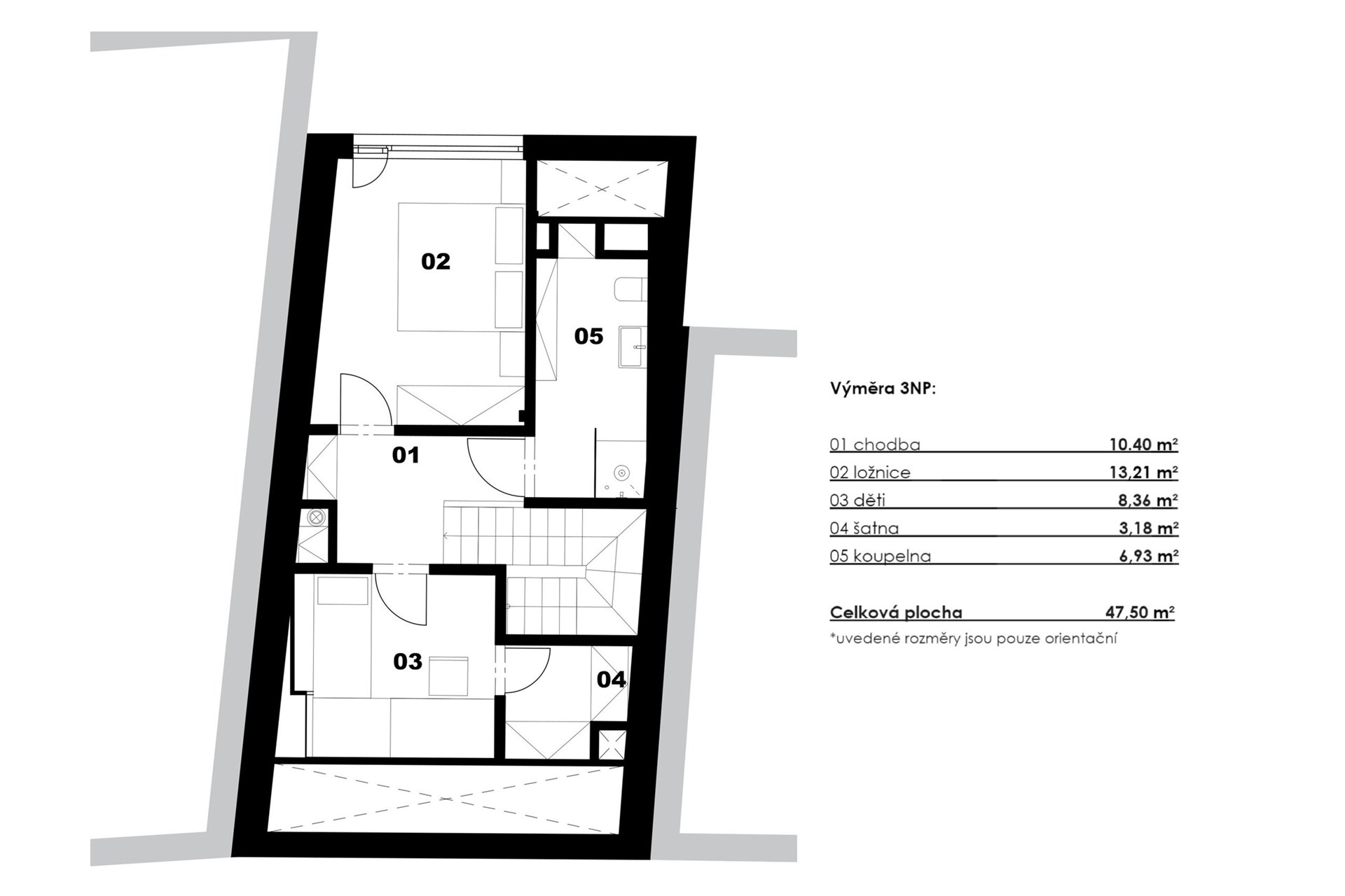
Schodiště vás zavede do druhého nadzemního patra s otevřeným obývacím prostorem, technickou místností a dětským pokojem s vestavěnou skříní. V podkroví, tedy 3. patře tohoto domu naleznete druhý dětský pokoj s velkým střešním ateliérem a šatnou, ložnici s rozsáhlou vestavnou skříní a druhou koupelnu.
Pro úsporu energie je dům vybaven tepelným čerpadlem, sloužícím k vytápění a ohřevu vody, a také systémem rekuperace pro efektivní výměnu vzduchu. Dům je navíc ale také v obývacím pokoji vybaven designovými krbovými kamny zn. Jotul.
Interiérové prvky nesou razantní podpis kvality, včetně masivních prvků z jasanu, bezzárubňových dveří s křídly z masivního dřeva v laku a kuchyňské linky taktéž v laku. Vybavení kuchyně zahrnuje spotřebiče od značky Siemens, desku z umělého kamene a podlahy z polyuretanu. Koupelna disponuje prvky od špičkových výrobců.
Dům je vybaven izolací z PUR pěny, protihlukovými předstěnami a příčkami (systém Rigips). Střecha je osazena velkoformátovými střešními ateliéry z hliníku, včetně odrazové úpravy, motorů pro pohodlné otevírání a screen rolety na jižní straně, zajišťující optimální komfort a efektivitu.
Exteriér domu zaujme terasou z kvalitního sibiřského modřínu, plotem s prémiovou lazurou, zahradním domkem a přípravou pro přístřešek na auto. K domu je navíc zpracovaný i projekt od zahradního architekta. Díky využívání nízkoenerg. štítku a inovativních technologií dochází k výraznému snížení měsíčních životních nákladů. Tato kombinace umožňuje udržet měsíční výdaje pod hranicí 3000 Kč. Dům bude ideální volbou pro ty, kteří hledají spojení moderního bydlení s klidem okolní krajiny, nese v sobě harmonickou kombinaci moderní architektury, energ. efektivity a nadstandardního vybavení.
Tato nemovitost se nachází v obci s veškerou občanskou vybaveností, včetně školy, školky, obchodu, sportoviště i pošty. Dostupnost na dálnici a do Olomouce je na dosah. Na tuto nadstandardně vybavenou nemovitost je možné využít financování za nejvýhodnějších podmínek se snižováním úrokové sazby.
Pokud jste tedy vždy snili o domově, který spojuje nejmodernější technologie se špičkovými materiály a luxusem, máme pro vás jedinečnou příležitost!
| Cena: | 9 490 000 Kč |
| Poznámka: | Uvedená cena je bez vybavení, které je nutno dokoupit zvlášť. |
| Datum k nastěhování: | 27.01.2026 |
| Číslo zakázky: | REALITYMIX-971879 |
Podrobné informace
- Poloha objektu: řadový
- Druh objektu: dřevěná
- Stav objektu: novostavba
- Počet podlaží objektu: 3
- Typ domu: patrový
- Zastavěná plocha: 81 m²
- Plocha parcely: 587 m²
- Zahrada: 506 m²
- Užitná plocha: 137 m²
- Terasa: ano
- Doprava: vlak, dálnice, silnice
- Elektřina: Elektro - 230 V
- Voda: Zdroj pro celý objekt, Voda - dálkový vodovod
- Odpad: Kanalizace
- Energetická náročnost budovy: B - Velmi úsporná
- Energetický ukazatel podle vyhlášky: č. 264/2020 Sb.
- Popis vybavení: .
Právní rádce
-
Detail
V tomto článku shrneme nejdůležitější věci, které byste si měli promyslet, pokud se chystáte prodat svou nemovitost a chcete, abyste s kupujícím nemusel následně řešit vzniklé problémy.
Jako prodávající nesete rizika spojená nejen se samotným obchodem, ale i se stavem nemovitosti v době prodeje a pro minimalizaci rizik, je dobré se zamyslet nad uvedenými oblastmi.
-
Detail
Realitní makléř má své nezastupitelné místo v realitním obchodu. Realitním makléřem nemyslím nevzdělané jelito, které absolvovalo dvoudenní školení a ví, jak se nahraje inzerát na inzertní portál.
Realitním makléřem, který se Vám skutečně vyplatí, je zkušený profesionál, který je schopen Vám dobře poradit jak prodat za co nejvíc a s nejmenším rizikem a hlavně je Vás schopen obratně provést celým realitním obchodem.