Prodej - dům/vila, 225 m²
Žitná, Sibřina, Praha-východ
24 800 000 KčProdej - dům/vila, 225 m²
Žitná, Sibřina, Praha-východ
Rodinný dům 5+kk s dvojgaráží, terasou a bazénem – Sibřina u Prahy
Hlavní přednosti:
• Dispozice a velký prostor – dům poskytne dostatek místa vám i celé rodině. Místnosti jsou světlé a s příjemně vysokými stropy. Obývací pokoj navazuje na zastřešenou terasu, kde můžete trávit celé léto.
• Zahrada jako oáza klidu – pečlivě udržovaná zeleň, kamenné ohniště, bazén s krytím a terasy. Oplocení a vzrostlá zeleň vytváří naprosté soukromí. Část zahrady je upravená v japonském stylu, kde se můžete ztratit před zraky rodiny a relaxovat.
• Zázemí – Dvojgaráž, technická místnost a spižírna, k tomu další objekt sloužící jako dílna na zahradě.
• Novostavba bez nutnosti investic – Dům byl dokončen před pár lety, je ve výborném technickém stavu a připravený k okamžitému bydlení. Můžete se tak nastěhovat a nestresovat se dalšími investicemi.
Dispozice:
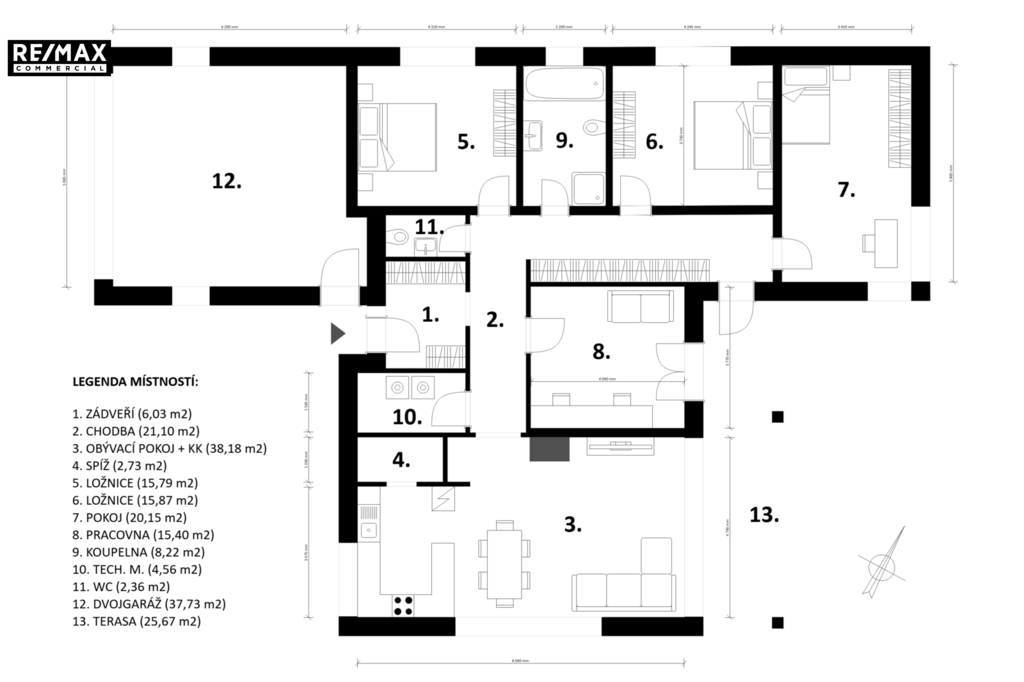
Předsíň navazuje na chodbu, ze které je přístup do všech obytných místností.
Dominantou je prostorný obývací pokoj s kuchyňským koutem a vstupem na krytou terasu orientovanou na severovýchod. Dále se v domě nachází tři ložnice, pracovna (také se vstupem na terasu), koupelna s vanou a sprchovým koutem, samostatné WC, technická místnost a spižírna. Garáž pro dvě auta je součástí domu. Součástí pozemku je také samostatný objekt (dílna) se dvěma místnostmi (po 11 m²).
Technické parametry:
Dům je postaven v moderním standardu s důrazem na kvalitu provedení, úsporu energií a dlouhou životnost konstrukcí. Nosné stěny jsou z cihel Porotherm o tl. 30 cm, zateplené 20 cm polystyrenu. Střešní krytinu tvoří betonová taška. Okna jsou plastová s trojskly s předokenními žaluziemi.
Vytápění domu je řešeno podlahovým topením v kombinaci s krbem v obývacím pokoji. V každé místnosti je termostat pro individuální nastavení teploty. Garáž je vytápěná pomocí radiátorů, takže ji lze využívat i v zimě. Zdrojem tepla je plynový kondenzační kotel.
Dům je napojen na všechny inženýrské sítě – tlakovou kanalizaci, obecní vodovod a plyn. Kamerový zabezpečovací systém zvyšuje pocit jistoty a ochrany majetku.
Na zahradě se nachází bazén o rozměrech 8 × 4 metry a hloubce 1,4 metru. Je vybaven posuvným krytím, protiproudem, tepelným čerpadlem a technologií slané vody.
Lokalita:
Sibřina leží na východním okraji Prahy, v oblíbené rezidenční lokalitě s výborným napojením na hlavní město. Na metro Depo Hostivař nebo Háje dojedete autem za 15 až 20 minut. V okolí je mateřská i základní škola, potraviny, restaurace, sportoviště a cyklostezky. Lokalita tak kombinuje klid venkova a blízkost metropole.
Závěr:
Další informace Vám makléř rád sdělí po telefonu, formou podrobné prezentace nebo při osobní prohlídce.
| Cena: | 24 800 000 Kč |
| Poznámka: | Exkluzivní nabídka včetně právního servisu a služeb. |
| Datum k nastěhování: | 01.01.2026 |
| Číslo zakázky: | REALITYMIX-426468 |
Podrobné informace
- Poloha objektu: samostatný
- Druh objektu: cihlová
- Stav objektu: novostavba
- Počet podlaží objektu: 1
- Typ domu: přízemní
- Zastavěná plocha: 265 m²
- Plocha parcely: 1195 m²
- Zahrada: 930 m²
- Užitná plocha: 225 m²
- Umístění objektu: klidná část obce
- Doprava: silnice, autobus
- Komunikace: asfaltová
- Voda: Voda - dálkový vodovod
- Plyn: Plynovod
- Odpad: Kanalizace
- Energetická náročnost budovy: C - Úsporná
- Ukazatel energetické náročnosti budovy: 91.1 kWh/m²
- Energetický ukazatel podle vyhlášky: č. 264/2020 Sb.
Právní rádce
-
Detail
V tomto článku shrneme nejdůležitější věci, které byste si měli promyslet, pokud se chystáte prodat svou nemovitost a chcete, abyste s kupujícím nemusel následně řešit vzniklé problémy.
Jako prodávající nesete rizika spojená nejen se samotným obchodem, ale i se stavem nemovitosti v době prodeje a pro minimalizaci rizik, je dobré se zamyslet nad uvedenými oblastmi.
-
Detail
Realitní makléř má své nezastupitelné místo v realitním obchodu. Realitním makléřem nemyslím nevzdělané jelito, které absolvovalo dvoudenní školení a ví, jak se nahraje inzerát na inzertní portál.
Realitním makléřem, který se Vám skutečně vyplatí, je zkušený profesionál, který je schopen Vám dobře poradit jak prodat za co nejvíc a s nejmenším rizikem a hlavně je Vás schopen obratně provést celým realitním obchodem.