Prodej - dům/vila, 147 m²
Skrýchov, Jindřichův Hradec
3 990 000 KčProdej - dům/vila, 147 m²
Skrýchov, Jindřichův Hradec
Prodej rodinného domu 147 m², Studená - Skrýchov
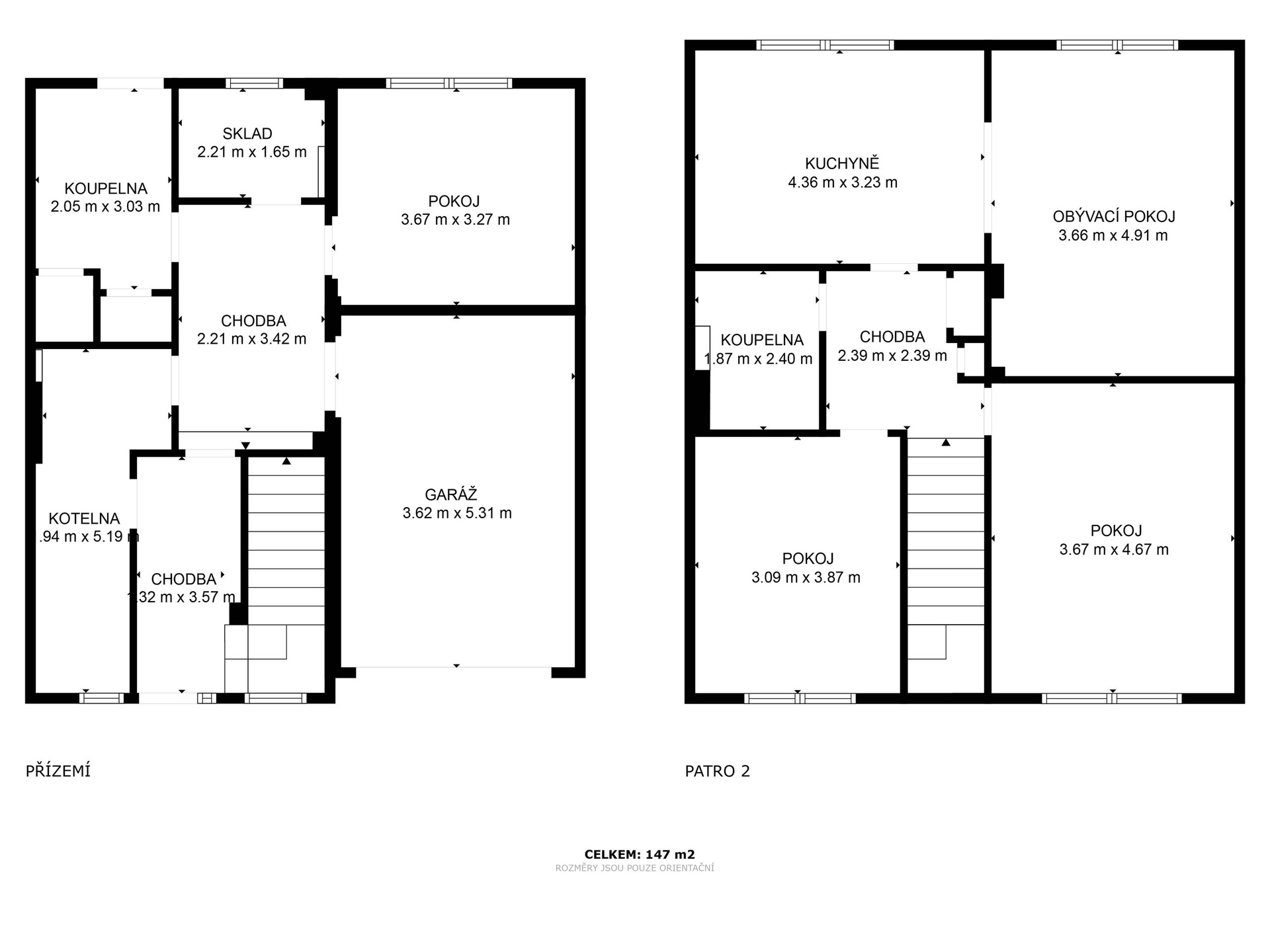
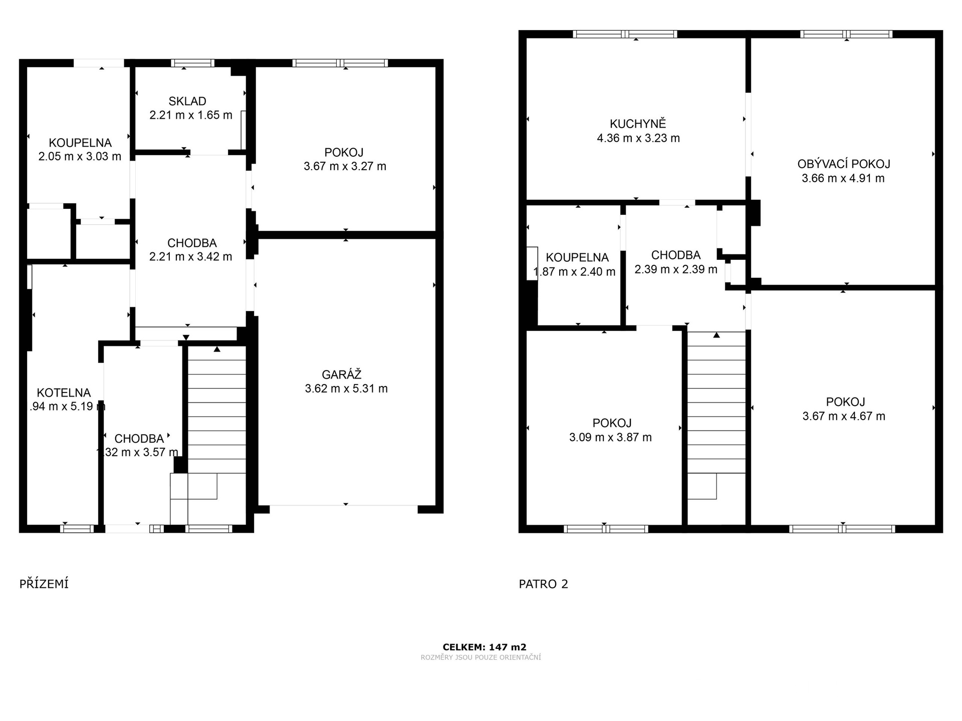
Dům má dispozici 4kk a na dvou podlažích nabízí užitnou plochu 147 m².
V přízemí se nachází chodba, praktická garáž, pokoj s výhledem do zahrady, technické zázemí a příprava na další sociální zařízení.
V patře potom najdete 2 neprůchozí pokoje, koupelnu s WC a obývací pokoj s kuchyní.
Před domem se nachází vícero parkovacích míst. Za domem je praktická rovinatá zahrada přístupná autem.
Dům prošel před nedávnem zdařilou rekonstrukcí. Proběhla výměna oken a dveří, nová střecha a zateplení, rekonstrukce podlahy, nové rozvody elektřiny, vody, topení a odpadů. Vytápění je řešeno kotlem na tuhá paliva splňujícím emisní normu.
Momentálně je potřeba instalovat kuchyňskou linku a položit podlahovou krytinu v pokojích.
Poté je dům rovnou obyvatelný. V případě potřeby jsme schopni zajistit realizaci.
Výhodou je, že si kupující může zvolit design a materiály podle svých preferencí.
Výhledově by se hodilo dodělat spodní sociální zařízení a dveře se zárubněmi, případně se nabízí úprava na samostatnou bytovou jednotku 1kk. Poté věříme, že na dlouhou dobu na domě nebude nic k řešení a čeká vás už jen pohodlné bydlení.
Co se týče lokality, tak ta se nese ve venkovském duchu. Jste v bezprostřední blízkosti přírody, kde najdete velké množství turistických a cykloturistických tras.
Veškerou občanskou vybavenost najdete 2 kilometry od domu v obci Studená, kam se pohodlně dostanete i autobusem.
Z větších měst máte na dosah (15 minut autem) Telč a Dačice.
Pokud vás dům zaujal, neváhejte se nám ozvat pro více informací či domluvení prohlídky.
Těšíme se na vás.
| Cena: | 3 990 000 Kč |
| Číslo zakázky: | REALITYMIX-01886 |
Podrobné informace
- Poloha objektu: řadový
- Druh objektu: cihlová
- Stav objektu: po rekonstrukci
- Počet podlaží objektu: 2
- Typ domu: patrový
- Zastavěná plocha: 147 m²
- Plocha parcely: 511 m²
- Užitná plocha: 147 m²
- Ostatní: Garáž, Parkoviště
- Umístění objektu: klidná část obce
- Doprava: silnice, autobus
- Komunikace: asfaltová
- Elektřina: Elektro - 230 V, Elektro - 400 V
- Voda: Voda - dálkový vodovod
- Topení: Ústřední - tuhá paliva
- Odpad: Kanalizace
- Energetická náročnost budovy: G - Mimořádně nehospodárná
Právní rádce
-
Detail
V tomto článku shrneme nejdůležitější věci, které byste si měli promyslet, pokud se chystáte prodat svou nemovitost a chcete, abyste s kupujícím nemusel následně řešit vzniklé problémy.
Jako prodávající nesete rizika spojená nejen se samotným obchodem, ale i se stavem nemovitosti v době prodeje a pro minimalizaci rizik, je dobré se zamyslet nad uvedenými oblastmi.
-
Detail
Realitní makléř má své nezastupitelné místo v realitním obchodu. Realitním makléřem nemyslím nevzdělané jelito, které absolvovalo dvoudenní školení a ví, jak se nahraje inzerát na inzertní portál.
Realitním makléřem, který se Vám skutečně vyplatí, je zkušený profesionál, který je schopen Vám dobře poradit jak prodat za co nejvíc a s nejmenším rizikem a hlavně je Vás schopen obratně provést celým realitním obchodem.