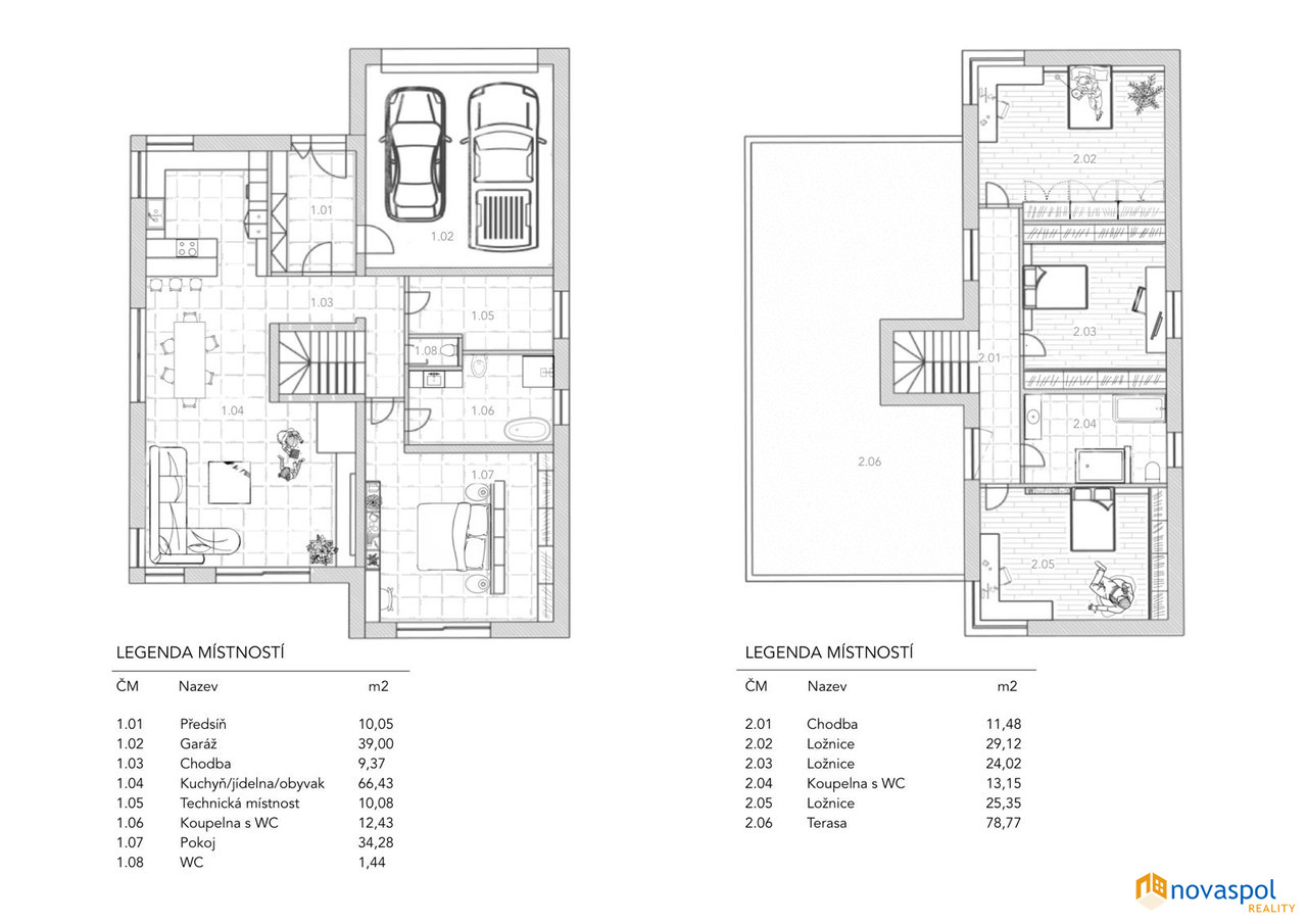
Prodej - dům/vila, 247 m²
Na Okruhu, Hlubočinka, Sulice, Praha-východ
24 000 000 KčProdej - dům/vila, 247 m²
Na Okruhu, Hlubočinka, Sulice, Praha-východ
Prodej novostavby RD 286 m2 + 79 m2 terasa, pozemek 1173 m2, Sulice-Hlubočinka, okres Praha východ.
| Cena: | 24 000 000 Kč |
| Poznámka: | cena včetně odměny RK a právního servisu |
| Datum k nastěhování: | 01.01.2026 |
| Číslo zakázky: | REALITYMIX-3111 |
Podrobné informace
- Poloha objektu: samostatný
- Druh objektu: cihlová
- Stav objektu: novostavba
- Počet podlaží objektu: 2
- Typ domu: patrový
- Zastavěná plocha: 183 m²
- Plocha parcely: 286 m²
- Zahrada: 990 m²
- Užitná plocha: 247 m²
- Umístění objektu: okraj obce
- Topení: Jiné
- Energetická náročnost budovy: A - Mimořádně úsporná
Právní rádce
-
Detail
V tomto článku shrneme nejdůležitější věci, které byste si měli promyslet, pokud se chystáte prodat svou nemovitost a chcete, abyste s kupujícím nemusel následně řešit vzniklé problémy.
Jako prodávající nesete rizika spojená nejen se samotným obchodem, ale i se stavem nemovitosti v době prodeje a pro minimalizaci rizik, je dobré se zamyslet nad uvedenými oblastmi.
-
Detail
Realitní makléř má své nezastupitelné místo v realitním obchodu. Realitním makléřem nemyslím nevzdělané jelito, které absolvovalo dvoudenní školení a ví, jak se nahraje inzerát na inzertní portál.
Realitním makléřem, který se Vám skutečně vyplatí, je zkušený profesionál, který je schopen Vám dobře poradit jak prodat za co nejvíc a s nejmenším rizikem a hlavně je Vás schopen obratně provést celým realitním obchodem.