Prodej - dům/vila, 146 m²
Svatá, Beroun
11 990 000 KčProdej - dům/vila, 146 m²
Svatá, Beroun
Dřevostavba ve Svaté
Nabízíme k prodeji rodinný dům v obci Svatá, v klidné slepé ulici, s vlastním příjezdem a parkováním na pozemku. Dům byl kolaudován v roce 2014 a nabízí komfortní rodinné bydlení v kombinaci s klidem venkova a dobrou dostupností do Prahy.
Nemovitost stojí na pozemku o velikosti 703 m², podlahová plocha domu činí přibližně 146 m². Díky umístění ve slepé ulici zde není tranzitní doprava, což zajišťuje soukromí, klid a bezpečné prostředí pro děti.
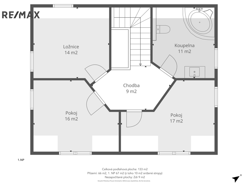
Dispozice a interiér
Dům je dispozičně řešen jako dvoupodlažní.
V přízemí se nachází vstupní zádveří s prostorem pro uložení bot a oblečení, koupelna, technické zázemí a velká komora vhodná například pro skladování potravin nebo zavařenin. Hlavní část přízemí tvoří prostorný otevřený obytný prostor s kuchyní, jídelnou a obývacím pokojem. Dominantou obývací části jsou kachlová kamna na dřevo, která slouží jako plnohodnotný zdroj tepla a zároveň vytváří velmi příjemnou atmosféru.
V horním patře se nachází čtyři samostatné pokoje a druhá koupelna. Patro je řešeno jako klidová část domu, vhodná pro ložnice, dětské pokoje nebo pracovnu.
Technické informace
Vytápění domu je zajištěno elektrickým kotlem, v přízemí je podlahové topení, v horním patře radiátory. Dům je napojen na vodu a elektřinu. Odpad je řešen domácí čističkou odpadních vod, přičemž na pozemku je připravena možnost budoucího napojení na obecní kanalizaci. Plyn v obci není.
Zahrada a exteriér
Zahrada je prakticky řešená a nabízí dostatek prostoru pro relaxaci i rodinné aktivity. Velkým benefitem je pergola s venkovním ohništěm, která rozšiřuje obytný prostor domu zejména v letních měsících. Parkování je zajištěno přímo na pozemku pro dvě auta, příjezdová cesta patří k domu.
Lokalita
Obec Svatá nabízí základní občanskou vybavenost včetně mateřské školky, místní knihovny, která pořádá řadu akcí a kurzů pro děti i dospělé, a sportovní vyžití jako fotbal, karate nebo badminton. Majitelé oceňují velmi dobré sousedské vztahy a komunitní charakter obce.
Dojezdová vzdálenost na Prahu – Zličín je přibližně 30 minut autem, což z domu činí ideální kombinaci klidného bydlení a dostupnosti města.
| Cena: | 11 990 000 Kč |
| Číslo zakázky: | REALITYMIX-430745 |
Podrobné informace
- Poloha objektu: samostatný
- Druh objektu: dřevěná
- Stav objektu: velmi dobrý
- Počet podlaží objektu: 2
- Typ domu: patrový
- Zastavěná plocha: 80 m²
- Plocha parcely: 783 m²
- Zahrada: 703 m²
- Užitná plocha: 146 m²
- Umístění objektu: klidná část obce
- Elektřina: Elektro - 230 V, Elektro - 400 V
- Voda: Voda - dálkový vodovod
- Odpad: ČOV pro celý objekt
- Energetická náročnost budovy: C - Vyhovující
- Ukazatel energetické náročnosti budovy: 110 kWh/m²
- Energetický ukazatel podle vyhlášky: č. 148/2007 Sb.
Právní rádce
-
Detail
V tomto článku shrneme nejdůležitější věci, které byste si měli promyslet, pokud se chystáte prodat svou nemovitost a chcete, abyste s kupujícím nemusel následně řešit vzniklé problémy.
Jako prodávající nesete rizika spojená nejen se samotným obchodem, ale i se stavem nemovitosti v době prodeje a pro minimalizaci rizik, je dobré se zamyslet nad uvedenými oblastmi.
-
Detail
Realitní makléř má své nezastupitelné místo v realitním obchodu. Realitním makléřem nemyslím nevzdělané jelito, které absolvovalo dvoudenní školení a ví, jak se nahraje inzerát na inzertní portál.
Realitním makléřem, který se Vám skutečně vyplatí, je zkušený profesionál, který je schopen Vám dobře poradit jak prodat za co nejvíc a s nejmenším rizikem a hlavně je Vás schopen obratně provést celým realitním obchodem.