Prodej bytu, 3+1, 64 m²
Krušnohorská, Trnovany, Teplice
3 300 000 KčProdej bytu, 3+1, 64 m²
Krušnohorská, Trnovany, Teplice
3 300 000 Kč
G
Mimořádně nehospodárná
Prodej bytu 3+1 64 m², Teplice - Trnovany
S radostí Vám představujeme nádherný, elegantní byt 3+1 v žádané lokalitě Teplic, na ulici Krušnohorská.
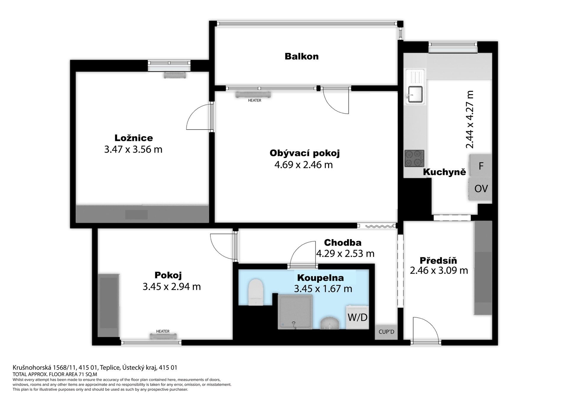
Tento prostorný a světlý byt o rozloze 64 m² je skutečným klenotem, který spojuje komfort moderního bydlení s útulnou atmosférou domova.
Byt se nachází v pátém patře zatepleného domu s výtahem, což zaručuje pohodlí a snadný přístup. Nedávno a s velkou péčí prošel kompletní rekonstrukcí, při které byly vyměněny zdi i podlahy, a v kuchyni se nachází nová kuchyňská linka, která disponuje dostatkem úložného prostoru a moderními spotřebiči.
Zděná koupelna s prostorným sprchovým koutem spolehlivě splní všechny Vaše požadavky na komfort a relaxaci.
Byt je řešen chytrým a praktickým způsobem: prostorná vstupní chodba s vestavěnými skříněmi vás uvítá při vstupu domů, odtud se pohodlně dostanete do kuchyně, obývacího pokoje a dětského pokoje.
Ložnice je situována za obývákem, poskytující klid a soukromí.
Obývací pokoj je ideálním místem pro odpočinek i setkání s rodinou či přáteli, ze kterého je vstup na prostorný balkon s úchvatným výhledem do krajiny – místo, kde si můžete vychutnat čerstvý vzduch a krásné západy slunce.
Dům je velmi klidný, udržovaný a sousedé si ho pečlivě hlídají – ideální prostředí pro spokojené bydlení. Parkování je možné přímo před vchodem, což přispívá k pohodlí každodenního života.
Tento byt je jako jemná melodie – harmonické spojení praktického prostoru, moderního komfortu a klidného prostředí. Přijďte si ho osobně prohlédnout a představte si svoje nové, útulné hnízdo na Krušnohorské.
Na vaší osobní prohlídce Vás ráda uvítá makléřka zakázky.
Tento prostorný a světlý byt o rozloze 64 m² je skutečným klenotem, který spojuje komfort moderního bydlení s útulnou atmosférou domova.
Byt se nachází v pátém patře zatepleného domu s výtahem, což zaručuje pohodlí a snadný přístup. Nedávno a s velkou péčí prošel kompletní rekonstrukcí, při které byly vyměněny zdi i podlahy, a v kuchyni se nachází nová kuchyňská linka, která disponuje dostatkem úložného prostoru a moderními spotřebiči.
Zděná koupelna s prostorným sprchovým koutem spolehlivě splní všechny Vaše požadavky na komfort a relaxaci.
Byt je řešen chytrým a praktickým způsobem: prostorná vstupní chodba s vestavěnými skříněmi vás uvítá při vstupu domů, odtud se pohodlně dostanete do kuchyně, obývacího pokoje a dětského pokoje.
Ložnice je situována za obývákem, poskytující klid a soukromí.
Obývací pokoj je ideálním místem pro odpočinek i setkání s rodinou či přáteli, ze kterého je vstup na prostorný balkon s úchvatným výhledem do krajiny – místo, kde si můžete vychutnat čerstvý vzduch a krásné západy slunce.
Dům je velmi klidný, udržovaný a sousedé si ho pečlivě hlídají – ideální prostředí pro spokojené bydlení. Parkování je možné přímo před vchodem, což přispívá k pohodlí každodenního života.
Tento byt je jako jemná melodie – harmonické spojení praktického prostoru, moderního komfortu a klidného prostředí. Přijďte si ho osobně prohlédnout a představte si svoje nové, útulné hnízdo na Krušnohorské.
Na vaší osobní prohlídce Vás ráda uvítá makléřka zakázky.
| Cena: | 3 300 000 Kč |
| Poznámka: | přepis na družstvu platí kupující, včetně provize, včetně právního servisu |
| Dispozice/podlahová plocha: | 3+1/64 m² |
| Číslo zakázky: | REALITYMIX-00170 |
Podrobné informace
- Dispozice bytu: 3+1
- Číslo podlaží v domě: 5
- Počet podlaží objektu: 8
- Celková podlahová plocha: 64 m²
- Druh objektu: panelová
- Stav objektu: velmi dobrý
- Vlastnictví: družstevní
- Vybaveno: ano
- Umístění objektu: klidná část obce
- Doprava: vlak, dálnice, silnice, MHD, autobus
- Elektřina: Elektro - 230 V
- Voda: Voda - dálkový vodovod
- Telekomunikace: Internet
- Plyn: Plynovod
- Topení: Ústřední - dálkové
- Odpad: Kanalizace
- Ostatní rozvody: Kabelové rozvody
- Energetická náročnost budovy: G - Mimořádně nehospodárná
Právní rádce
-
Detail
V tomto článku shrneme nejdůležitější věci, které byste si měli promyslet, pokud se chystáte prodat svou nemovitost a chcete, abyste s kupujícím nemusel následně řešit vzniklé problémy.
Jako prodávající nesete rizika spojená nejen se samotným obchodem, ale i se stavem nemovitosti v době prodeje a pro minimalizaci rizik, je dobré se zamyslet nad uvedenými oblastmi.
Prodáváte nemovitost a potřebujete zjistit její reálnou hodnotu?
Zjistit reálnou cenuVývoj průměrné ceny za m2 v lokalitě Ústecký kraj
Ceny uvedené v grafu, jsou průměrnými cenami ze sledované lokality a nezohledňují stav, stáří ani vybavení nemovitosti.
Prodáváte nemovitost a potřebujete zjistit její reálnou hodnotu?
Zjistit reálnou cenuMapa
* Umístění na mapě je na základě GPS informací dodaných realitní kanceláří.
* Pozice na mapě je pouze orientační.
Podobné nemovitosti
Prodej bytu, 3+1, 67 m²
Masarykova, Bohosudov, Teplice
2 990 000 Kč
Prodej bytu, 3+1, 66 m²
Sídliště Za Chlumem, Teplické Předměstí, Teplice
2 550 000 Kč
Prodej bytu, 3+1, 62 m²
Metelkovo náměstí, Trnovany, Teplice
3 000 000 Kč
Prodej bytu, 3+1, 74 m²
Sídliště U Nového nádraží, Teplické Předměstí, Bílina, Teplice
2 990 000 Kč