Prodej - dům/vila, 177 m²
Jarní, Mělník
7 580 000 KčProdej - dům/vila, 177 m²
Jarní, Mělník
Prodej pozemku s rozestavěnou stavbou (budova pro administrativu) a zahradním domkem, Kozly u Tišic
Tišice mají základní, ale velmi kvalitní občanskou vybavenost. Přímo v obci funguje MŠ, ZŠ, zdravotní středisko a lékárna. Dále zde najdete poštu, obchody s potravinami, zeleniny místních farmářů, masnu, cukrárnu, restaurace a služby. Pro volný čas je k dispozici sportovní hřiště i dětská hřiště. Okolí obce je bohaté na přírodní krásy a nabízí ideální podmínky pro volnočasové aktivity. V blízkosti se nachází řeka Labe a cyklostezka, okolní louky a lesy vybízejí k procházkám, jízdě na kole, běhu či rybaření. Lokalita je vhodná nejen pro trvalé bydlení, ale i pro komerční a rekreační využití.
Nemovitost se nachází v klidné části centru obce, s okolní zástavbou rodinných domů. Součástí prodeje nemovitosti je:
- pozemek o celkové výměře 495 m2
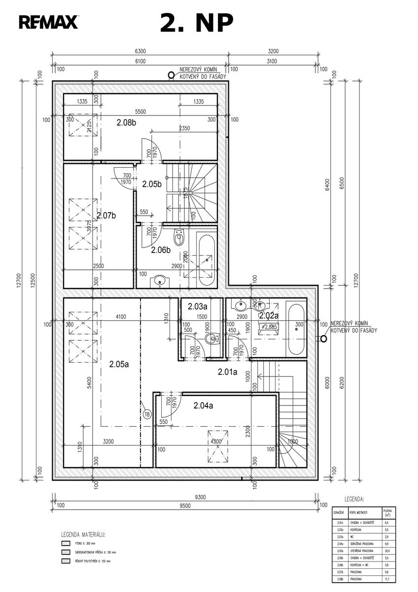
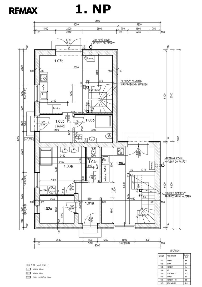
- rozestavěná stavba "budova pro administrativu" s užitnou plochou 156,8 m2 (1. NP 78,4 m2, 2. NP)
- stavba zahradní domek s užitnou plochou 20 m2
- inženýrské sítě na pozemku a zavedeny do budovy: elektřina s osazením hodin, obecní vodovod, podtlaková kanalizace
Dle územního plánu Tišice se jedná o pozemek pro využití výstavby "BI" - bydlení individuální. Přístupová cesta aktuálně ve vlastnictví prodávajícího, možnost zajištění věcného břemene chůze a jízdy.
Charakteristika hlavní budovy: Jedná se o zděnou dvoupodlažní budovu bez podsklepení. Budova postavena z Ytong 30 cm + 15 cm zateplení bílý polystyren, dále nataženo do lepidla. Střešní krytina Mediterran - terran Zenit, vchodové dveře, okna a balkónové dveře zn. Veka. Vytápění a ohřev vody plánované elektřinou. Energetický průkaz budovy není k dispozici.
Pro více informací a sjednání termínu prohlídky neváhejte kontaktovat makléřku nemovitosti. Prodávající si vyhrazuje právo vybrat kupujícího na základě jím zvolených kritérií.
| Cena: | 7 580 000 Kč |
| Číslo zakázky: | REALITYMIX-424555 |
Podrobné informace
- Poloha objektu: samostatný
- Druh objektu: cihlová
- Stav objektu: ve výstavbě (hrubá stavba)
- Počet podlaží objektu: 2
- Typ domu: patrový
- Zastavěná plocha: 124 m²
- Plocha parcely: 495 m²
- Zahrada: 495 m²
- Užitná plocha: 177 m²
- Umístění objektu: klidná část obce
- Komunikace: dlážděná
- Elektřina: Elektro - 400 V
- Voda: Zdroj pro celý objekt
- Odpad: Kanalizace
- Energetický ukazatel podle vyhlášky: č. 264/2020 Sb.
Právní rádce
-
Detail
V tomto článku shrneme nejdůležitější věci, které byste si měli promyslet, pokud se chystáte prodat svou nemovitost a chcete, abyste s kupujícím nemusel následně řešit vzniklé problémy.
Jako prodávající nesete rizika spojená nejen se samotným obchodem, ale i se stavem nemovitosti v době prodeje a pro minimalizaci rizik, je dobré se zamyslet nad uvedenými oblastmi.
-
Detail
Realitní makléř má své nezastupitelné místo v realitním obchodu. Realitním makléřem nemyslím nevzdělané jelito, které absolvovalo dvoudenní školení a ví, jak se nahraje inzerát na inzertní portál.
Realitním makléřem, který se Vám skutečně vyplatí, je zkušený profesionál, který je schopen Vám dobře poradit jak prodat za co nejvíc a s nejmenším rizikem a hlavně je Vás schopen obratně provést celým realitním obchodem.