Prodej - dům/vila, 154 m²
Pod vinohrady, Troubsko, Brno-venkov
13 690 000 KčProdej - dům/vila, 154 m²
Pod vinohrady, Troubsko, Brno-venkov
Prodej RD 5+kk 154m2 Troubsko, pozemek 950m2
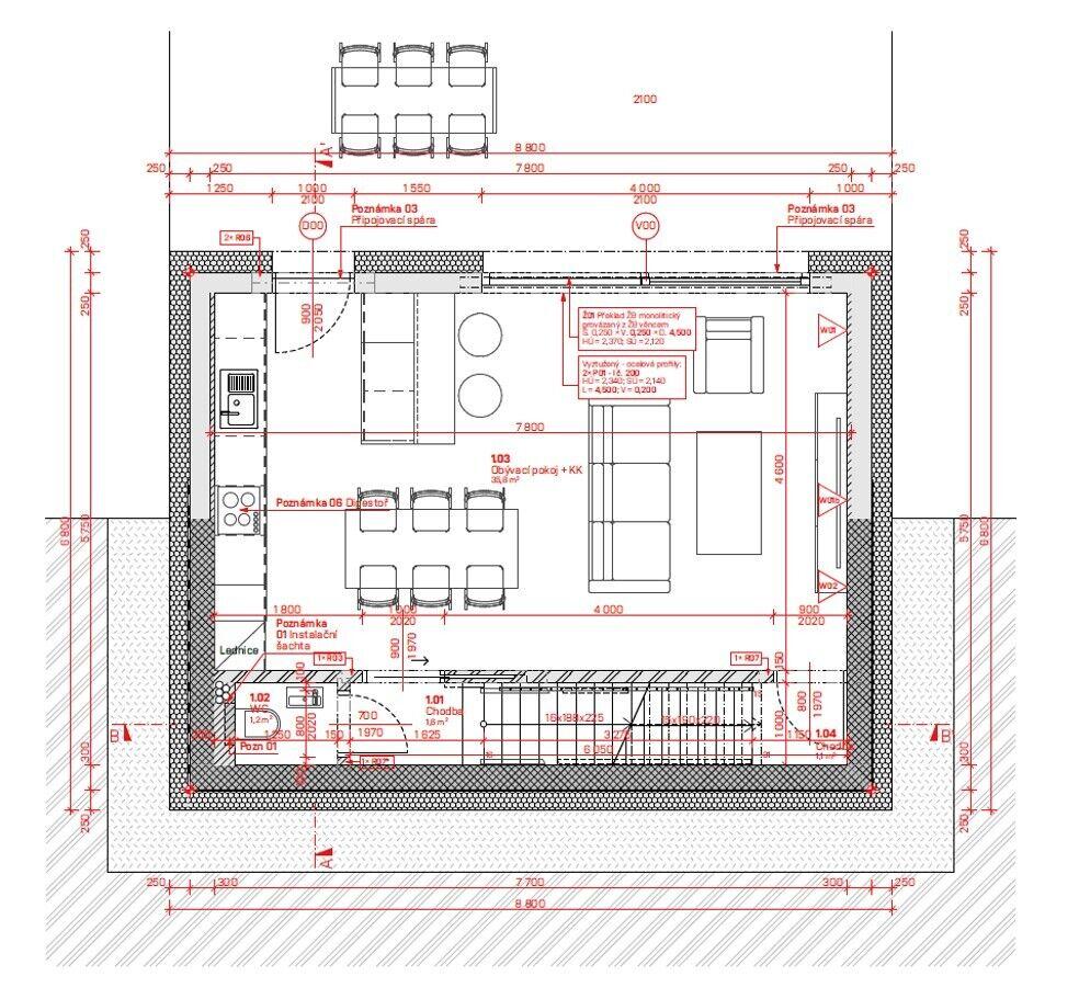
Předmětem této nabídky je prodej RD 5+kk s podlahovou plochou 154,2m2, se dvěma parkovacími místy před domem na pozemku, vyznačeném na situačním plánu červeně. Na zastavěné ploše 60m2 vznikne stavba o čtyřech podlažích.
V podzemním podlaží - technická místnost 3,3m2 - elektrokotel + zásobník TUV, prádelna 10,7m2, šatna 8,1m2, sklad 7,2m2, koupelna 1,8m2, chodba se schodištěm 6,4m2.
V přízemí - WC 1,2m, chodba 1,6m2 se schodištěm, obývací pokoj 35,8m2 s kuchyňským koutem a výstupem na terasu a zahradu
2.NP - hlavní vstup - zádveří 5,8m2, místnost 8,4m2,(pracovna, může být i velká šatna s propojením do ložnice, ložnice 13,5m2, koupelna 3,4m2, chodba 8m2 se schodištěm.
3.NP - pokoje 15,2 a 12,7m2, koupelna 5,6m2, chodba 5,7m2 se schodištěm.
Zahájení stavby 3/2026 dokončení domu do konce tohoto roku.
Vzhledem k počáteční fázi stavby, jsou nyní možné klientské změny, případné úpravy dispozic, výběr materiálů / povrchů...
V případě více zájemců, si prodávající vyhrazuje možnost, prodat nejvyšší nabídce.
Pro další informace volejte makléře na tel. 605 931 999 nebo napište vaše dotazy na e-mail holub@bravoreality.cz
| Cena: | 13 690 000 Kč |
| Poznámka: | vč. DPH, vč. právního servisu. |
| Datum k nastěhování: | 01.12.2026 |
| Číslo zakázky: | REALITYMIX-N00544 |
Podrobné informace
- Poloha objektu: samostatný
- Druh objektu: cihlová
- Stav objektu: ve výstavbě (hrubá stavba)
- Počet podlaží objektu: 4
- Typ domu: patrový
- Zastavěná plocha: 60 m²
- Plocha parcely: 950 m²
- Užitná plocha: 154 m²
- Umístění objektu: klidná část obce
- Doprava: dálnice, silnice, MHD, autobus
- Elektřina: Elektro - 230 V
- Topení: Ústřední - elektrické
- Energetická náročnost budovy: B - Velmi úsporná
- Energetický ukazatel podle vyhlášky: č. 264/2020 Sb.
Právní rádce
-
Detail
V tomto článku shrneme nejdůležitější věci, které byste si měli promyslet, pokud se chystáte prodat svou nemovitost a chcete, abyste s kupujícím nemusel následně řešit vzniklé problémy.
Jako prodávající nesete rizika spojená nejen se samotným obchodem, ale i se stavem nemovitosti v době prodeje a pro minimalizaci rizik, je dobré se zamyslet nad uvedenými oblastmi.
-
Detail
Realitní makléř má své nezastupitelné místo v realitním obchodu. Realitním makléřem nemyslím nevzdělané jelito, které absolvovalo dvoudenní školení a ví, jak se nahraje inzerát na inzertní portál.
Realitním makléřem, který se Vám skutečně vyplatí, je zkušený profesionál, který je schopen Vám dobře poradit jak prodat za co nejvíc a s nejmenším rizikem a hlavně je Vás schopen obratně provést celým realitním obchodem.