Prodej - dům/vila, 257 m²
Nad Poříčskou, Dolní Předměstí, Trutnov
3 299 000 KčProdej - dům/vila, 257 m²
Nad Poříčskou, Dolní Předměstí, Trutnov
Pozemek s projektem rodinného domu - Trutnov, Na Dvoračkách
Projekt vznikal s mimořádnou péčí – architekt ho tvořil pro sebe a svou rodinu.
Při práci pozoroval pozemek v různých obdobích roku, aby dům co nejlépe využil světlo, výhledy i přirozené soukromí.
Výsledkem je harmonický a nadčasový návrh, který citlivě zapadá do okolní krajiny a nabízí pocit klidu, rovnováhy a propojení s přírodou.
Dům na vizualizacích představuje schválený projekt, který lze okamžitě začít realizovat – nabídka se však týká samotného pozemku. Nový majitel může využít stávající dokumentaci nebo návrh upravit dle vlastních představ.
Pozemek má rozlohu 953m2 a nachází se v klidné zástavbě novějších rodinných domů na okraji lesa.
Místo působí velmi poklidně a soukromě s příjemným propojením s okolní přírodou.
Terén je mírně svažitý, což umožňuje zajímavé architektonické řešení domu.
Pozemek je napojený na elektřinu, městský vodovod je veden hned u hranice pozemku.
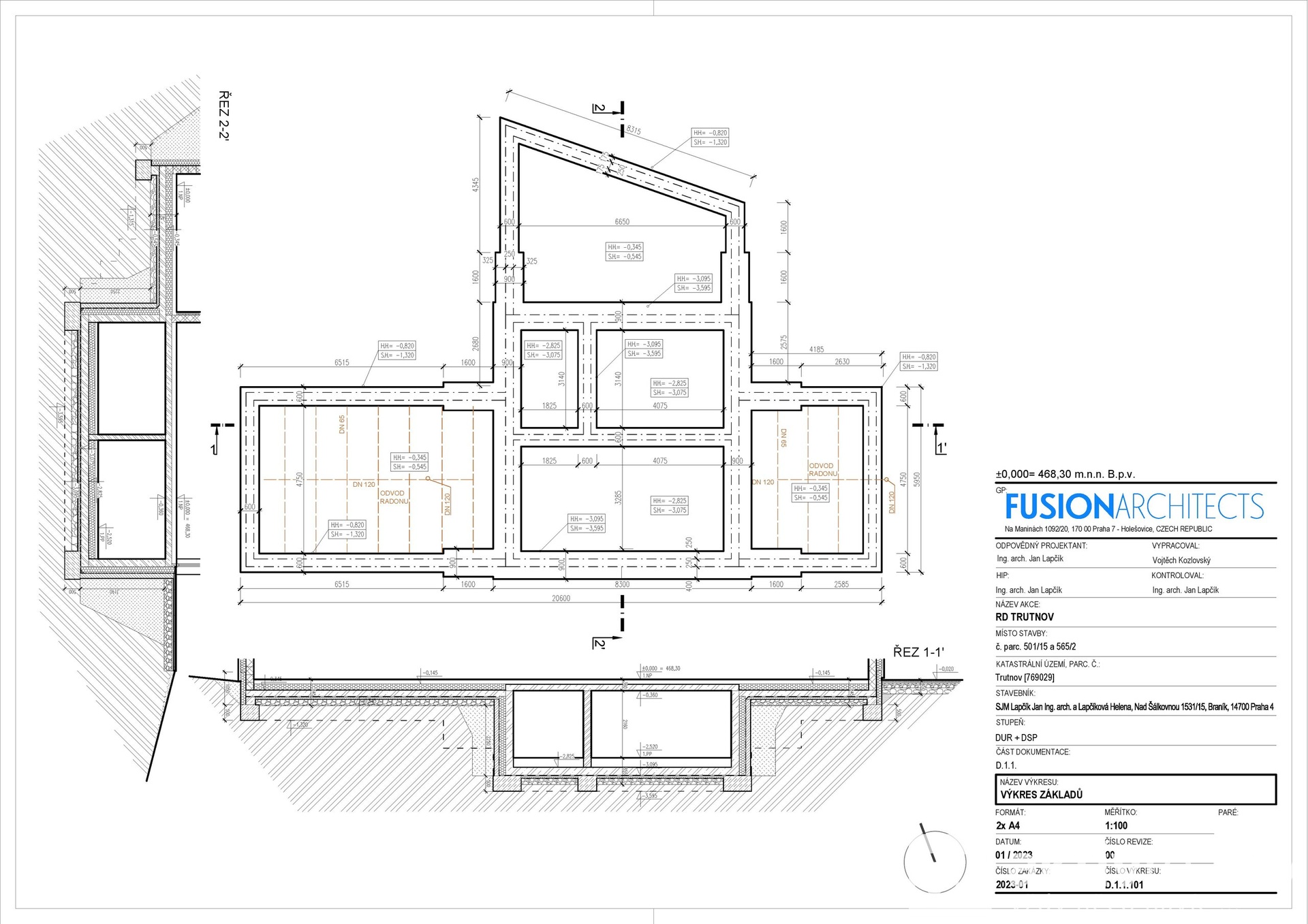
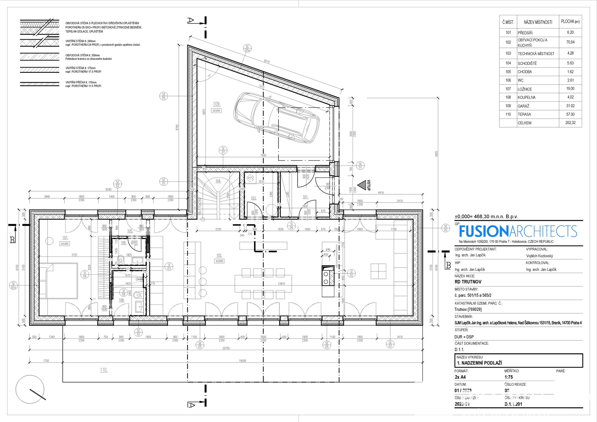
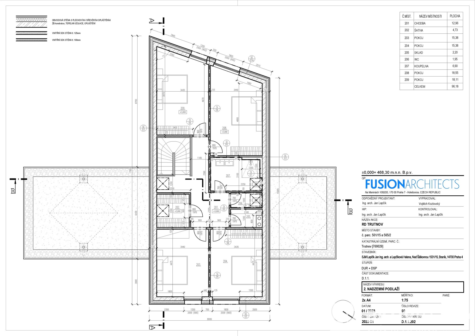
Součástí nabídky je platné stavební povolení na dům i studnu, takže je možné začít stavět prakticky ihned, bez zdržení a vyřizování formalit. Projekt není závazný – nový majitel může realizovat i vlastní architektonické řešení.
Velkou předností je také minimální dopravní provoz – příjezdová silnice není průjezdná, vede pouze k několika domům a dále do lesa.
Lokalita nabízí skvělé zázemí pro trvalé bydlení i rekreaci – v blízkosti jsou cyklostezky, turistické trasy a zimní střediska Krkonoš.
S dokončením dálnice D11 bude navíc spojení s Prahou ještě rychlejší a pohodlnější.
Pokud hledáte útulné místo obklopené zelení, které poskytne klid, soukromí a příjemnou atmosféru, ale zároveň chcete mít město na dosah, Na Dvoračkách v Trutnově je přesně to pravé místo.
| Cena: | 3 299 000 Kč |
| Poznámka: | Cena je kompletní včetně provize, poplatků a kompletního právního servisu, včetně poplatků, včetně p |
| Číslo zakázky: | REALITYMIX-25199 |
Podrobné informace
- Poloha objektu: samostatný
- Druh objektu: cihlová
- Stav objektu: novostavba
- Počet podlaží objektu: 3
- Typ domu: patrový
- Zastavěná plocha: 165 m²
- Plocha parcely: 953 m²
- Užitná plocha: 257 m²
- Sklep: 16 m²
- Terasa: 57 m²
- Ostatní: Garáž
- Umístění objektu: klidná část obce
- Doprava: silnice, autobus
- Elektřina: Elektro - 230 V
- Telekomunikace: Telefon
- Energetická náročnost budovy: G - Mimořádně nehospodárná
Právní rádce
-
Detail
V tomto článku shrneme nejdůležitější věci, které byste si měli promyslet, pokud se chystáte prodat svou nemovitost a chcete, abyste s kupujícím nemusel následně řešit vzniklé problémy.
Jako prodávající nesete rizika spojená nejen se samotným obchodem, ale i se stavem nemovitosti v době prodeje a pro minimalizaci rizik, je dobré se zamyslet nad uvedenými oblastmi.
-
Detail
Realitní makléř má své nezastupitelné místo v realitním obchodu. Realitním makléřem nemyslím nevzdělané jelito, které absolvovalo dvoudenní školení a ví, jak se nahraje inzerát na inzertní portál.
Realitním makléřem, který se Vám skutečně vyplatí, je zkušený profesionál, který je schopen Vám dobře poradit jak prodat za co nejvíc a s nejmenším rizikem a hlavně je Vás schopen obratně provést celým realitním obchodem.