Prodej - dům/vila, 111 m²
Tuřice, Mladá Boleslav
12 490 000 KčProdej - dům/vila, 111 m²
Tuřice, Mladá Boleslav
Rodinný dům 4+kk s terasou a garáží (131 m2), pozemek 429 m2, Tuřice.
Jedná se o již zabydlenou dvoupodlažní novostavbu z r. 2019, na konci slepé ulice klidné zástavby rodinných domů.
Nemovitost sestává z rodinného domu o dispozici 4+kk (96 m2) , samostatně stojící garáže s montážní jámou (20 m2), zastřešené terasy (15 m2), přírodního jezírka, zahradního domku a polozapuštěného venkovního bazénu. Bazén i jezírko disponují čistícím a filtračním zařízením. Na první pohled Vás osloví pečlivě udržovaná zahrada kolem domu, citlivě kombinující okrasné a užitkové prvky.
Dům je postaven ze železobetonu s venkovním zateplením. Střešní krytina Bramac, plastová okna. Vytápění domu elektrokotlem a krbovými kamny v obývacím pokoji. Ohřev TUV bojlerem. Výhodou je vlastní vrtaná studna. Dům je napojen na veřejnou kanalizaci. Elektřina 230/400V.
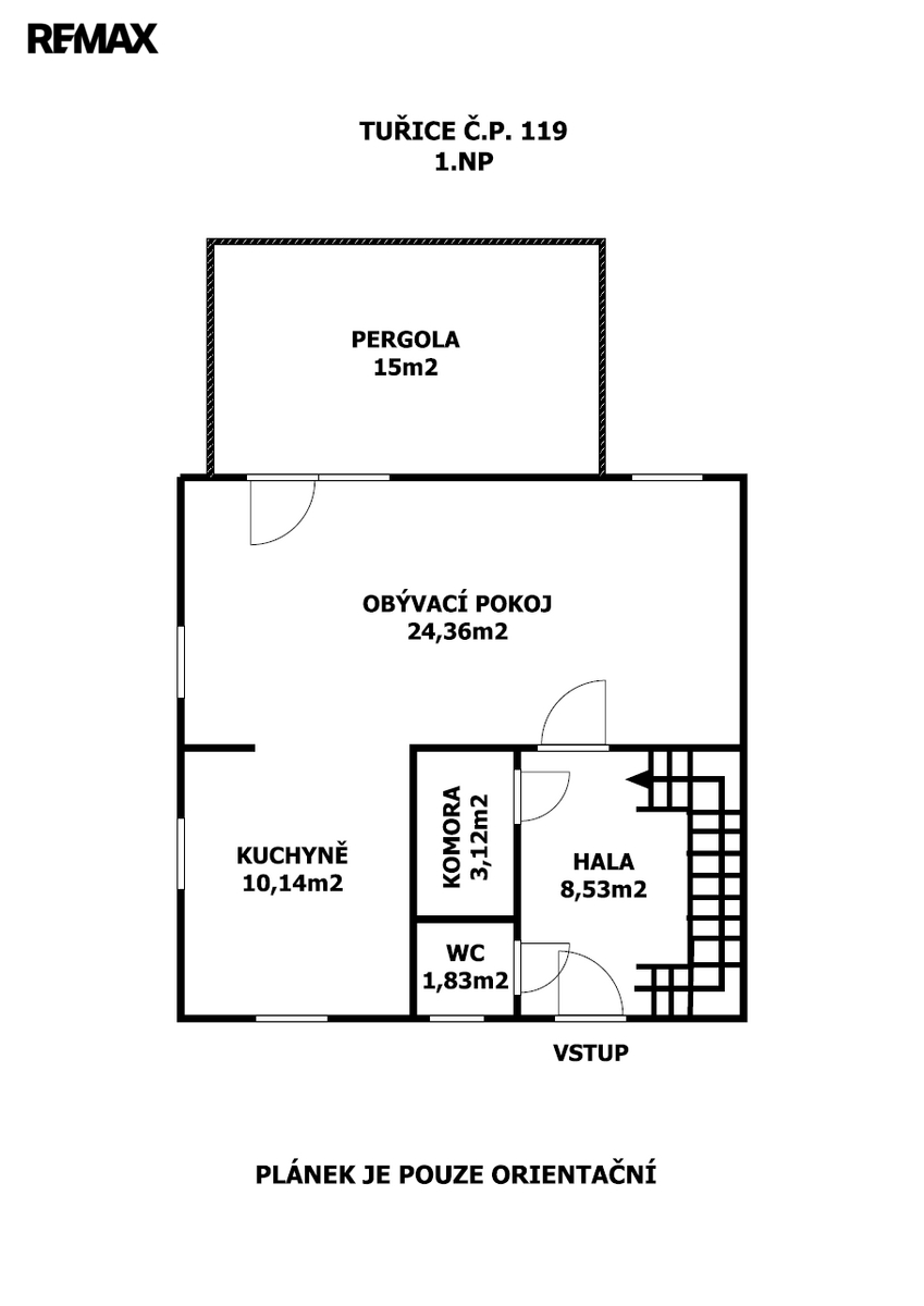
Srdce domu tvoří obývací pokoj v přízemí domu spojený s kuchyní na míru a venkovní zastřešenou terasou. V patře jsou k dispozici tři ložnice a koupelna s vanou. V domě jsou dvě toalety.
Výměry:
1.NP - 48 m2
pergola - 15m2
2.NP - 48 m2
montovaná garáž - 20 m2
Nemovitost je ideální pro rodinné bydlení, díky slepé ulici a klidnému prostředí budou Vaše děti v bezpečí.
Obec Tuřice se nachází v malebném prostředí Středočeského kraje, v okrese Mladá Boleslav, na hranici trojúhelníku Brandýs nad Labem ‒ Benátky nad Jizerou ‒ Lysá nad Labem. Díky blízkosti dálnice D10 je dopravní spojení do Mladé Boleslavi i do Prahy velmi komfortní.
Co v obci najdete:
Obecní úřad, hasičská zbrojnice, malá prodejna smíšeného zboží, hospůdka/restaurace, z-box.
Školy, zdravotnictví a další služby:
Školka a první čtyři ročníky základní školy v obci Předměřice nad Jizerou, jen cca 1 km pěšky/autem. Pro vyšší stupeň základní školy jezdí děti do Benátek nad Jizerou. Zdravotnická péče je zajištěna v Benátkách nad Jizerou.
Okolí a volný čas:
Obec je obklopena přírodou – řeka Jizera nabízí možnosti pro rybaření, vodní turistiku a částečně i koupání. V okolí najdete zajímavé historické objekty jako kostel sv. Jakuba Staršího v Předměřicích, kostel sv. Jana Křtitele ve Skorkově, zámeček Bon Repos v Čihadlech. Dostatek tras pro pěší turistiku a cykloturistiku.
Dopravní dostupnost:
Z Tuřic je snadný přístup na rychlostní komunikaci D10 (Praha – Mladá Boleslav). Autobusové spojení do Benátek nad Jizerou, Mladé Boleslavi i do Prahy.
Koupi nemovitosti lze financovat hypotečním úvěrem, který Vám v případě zájmu vyřídíme na míru.
Pro další informace a sjednání termínu prohlídky volejte. Prodávající si vyhrazuje právo vybrat kupujícího na základě jím zvolených kritérií.
| Cena: | 12 490 000 Kč |
| Datum k nastěhování: | 09.10.2025 |
| Číslo zakázky: | REALITYMIX-424728 |
Podrobné informace
- Poloha objektu: samostatný
- Druh objektu: panelová
- Stav objektu: novostavba
- Počet podlaží objektu: 2
- Typ domu: patrový
- Zastavěná plocha: 57 m²
- Plocha parcely: 429 m²
- Užitná plocha: 111 m²
- Doprava: dálnice, silnice, MHD, autobus
- Komunikace: asfaltová
- Elektřina: Elektro - 230 V, Elektro - 400 V
- Telekomunikace: Internet
- Odpad: Kanalizace
- Energetická náročnost budovy: C - Úsporná
- Ukazatel energetické náročnosti budovy: 142 kWh/m²
- Energetický ukazatel podle vyhlášky: č. 264/2020 Sb.
Právní rádce
-
Detail
V tomto článku shrneme nejdůležitější věci, které byste si měli promyslet, pokud se chystáte prodat svou nemovitost a chcete, abyste s kupujícím nemusel následně řešit vzniklé problémy.
Jako prodávající nesete rizika spojená nejen se samotným obchodem, ale i se stavem nemovitosti v době prodeje a pro minimalizaci rizik, je dobré se zamyslet nad uvedenými oblastmi.
-
Detail
Realitní makléř má své nezastupitelné místo v realitním obchodu. Realitním makléřem nemyslím nevzdělané jelito, které absolvovalo dvoudenní školení a ví, jak se nahraje inzerát na inzertní portál.
Realitním makléřem, který se Vám skutečně vyplatí, je zkušený profesionál, který je schopen Vám dobře poradit jak prodat za co nejvíc a s nejmenším rizikem a hlavně je Vás schopen obratně provést celým realitním obchodem.