Prodej - dům/vila, 168 m²
Na Habří, Úholičky, Praha-západ
6 990 000 KčProdej - dům/vila, 168 m²
Na Habří, Úholičky, Praha-západ
Rodinný dům 5+kk v Úholičkách – dům před kompletní rekonstrukcí, klidná ulice, skvělá dostupnost.
Dispozice
• Přízemí: dva neprůchozí pokoje (cca 20 m² každý), vstupní hala se schodištěm, samostatná toaleta, spíž a veranda.
• Snížené přízemí: kuchyně a koupelna
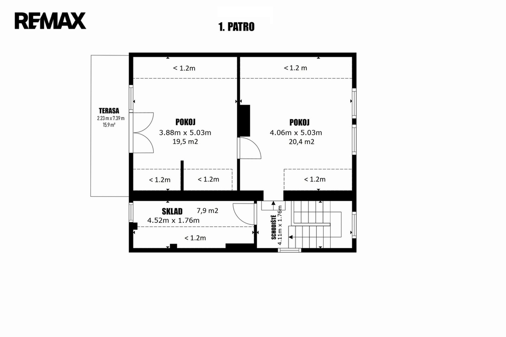
• 1. patro: podkrovní pokoj a další pokoj se vstupem na terasu s výhledem do okolí.
• Sklep: dům je částečně podsklepen.
Technický stav a sítě
• Konstrukce: cihla; okna: dřevěná dvojitá.
• Střecha: pálená taška – vyžaduje opravu.
• Vytápění: historicky kotel na plyn (dříve na uhlí).
• Voda: obecní vodovod (dům je připojen);
• Elektřina: zavedena (3 fáze) (dům je připojen).
• Kanalizace: přípojka na hranici pozemku (dům není připojen).
• Plyn: přípojka na hranici pozemku (dům není připojen).
Na pozemku je dále malá dílna/garáž (2000), velká dílna/technická budova a další hospodářský objekt/kolna (obojí ze 70. let).
Lokalita a doprava:
Úholičky nabízejí klid u přírody, přitom rychlou dostupnost do Prahy. V místě je školka, škola (1. stupeň), úřad, knihovna, obchod, restaurace, dětská hřiště i stezky pro pěší a cyklisty. Roztoky (cca 4 km) zajišťují kompletní občanskou vybavenost včetně lékařů a supermarketů.
• Autobusová zastávka 3 min / 80 m od domu (Roztoky cca 6 min).
• Do Prahy rychlé spojení autem (Bořislavka, Podbaba..)
Rádi Vám zdarma pomůžeme zajistit výhodné financování prostřednictvím hypotečního úvěru.
Pro více informací nebo sjednání prohlídky:
Stanislav Macánek 605 536 942,
Martina Popenková 608 180 867.
K dispozici ihned. Prodávající si vyhrazuje právo vybrat kupujícího na základě jím zvolených kritérií.
| Cena: | 6 990 000 Kč |
| Poznámka: | Za nemovitosti, cena včetně RK a právního servisu. |
| Datum k nastěhování: | 05.02.2026 |
| Číslo zakázky: | REALITYMIX-427048 |
Podrobné informace
- Poloha objektu: samostatný
- Druh objektu: cihlová
- Stav objektu: před rekonstrukcí
- Počet podlaží objektu: 2
- Typ domu: patrový
- Zastavěná plocha: 91 m²
- Plocha parcely: 483 m²
- Zahrada: 392 m²
- Užitná plocha: 168 m²
- Sklep: 22 m²
- Umístění objektu: klidná část obce
- Doprava: vlak, silnice, MHD, autobus
- Komunikace: betonová
- Elektřina: Elektro - 230 V, Elektro - 400 V
- Voda: Voda - dálkový vodovod
- Energetický ukazatel podle vyhlášky: č. 264/2020 Sb.
Právní rádce
-
Detail
V tomto článku shrneme nejdůležitější věci, které byste si měli promyslet, pokud se chystáte prodat svou nemovitost a chcete, abyste s kupujícím nemusel následně řešit vzniklé problémy.
Jako prodávající nesete rizika spojená nejen se samotným obchodem, ale i se stavem nemovitosti v době prodeje a pro minimalizaci rizik, je dobré se zamyslet nad uvedenými oblastmi.
-
Detail
Realitní makléř má své nezastupitelné místo v realitním obchodu. Realitním makléřem nemyslím nevzdělané jelito, které absolvovalo dvoudenní školení a ví, jak se nahraje inzerát na inzertní portál.
Realitním makléřem, který se Vám skutečně vyplatí, je zkušený profesionál, který je schopen Vám dobře poradit jak prodat za co nejvíc a s nejmenším rizikem a hlavně je Vás schopen obratně provést celým realitním obchodem.