Prodej - dům/vila, 306 m²
Dvorec, Vamberk, Rychnov nad Kněžnou
6 921 000 KčProdej - dům/vila, 306 m²
Dvorec, Vamberk, Rychnov nad Kněžnou
Prodej rozestavěného bytového domu s pěti bytovými jednotkami, Vamberk, Dvorec 31
Zásadní výhodou pro investora je platné stavební povolení pro vybudování šesti samostatných jednotek a fakt, že všechny jednotky jsou již zapsané v katastru nemovitostí, což umožňuje jejich případný prodej i jednotlivě. Projekt představuje ideální příležitost pro investora, který chce dokončit jednotky a následně je prodat nebo pronajímat.
Objekt se nachází v historickém centru města a zároveň je velmi dobře napojen na průmyslovou zónu SolniceKvasiny. Blízkost závodu Škoda Auto a jeho subdodavatelů vytváří v regionu poptávku po moderních bytech v rozumné vzdálenosti od práce.
Vamberk dnes představuje strategický bod na mapě východních Čech, který spojuje průmyslový rozvoj s klidem podhůří Orlických hor. Za pouhých 20 minut jízdy autem se ocitnete v předních lyžařských a rekreačních střediscích, jako jsou Říčky nebo Deštné v Orlických horách. Tato kombinace městského komfortu a blízkosti horských hřebenů činí z projektu mimořádně atraktivní místo pro moderní život.
Vamberk slouží jako přirozený dopravní uzel spojující Rychnov nad Kněžnou, Ústí nad Orlicí a krajské město Hradec Králové. Autobusová zastávka se nachází 200 m od domu a železniční stanice cca 700 m od něj.
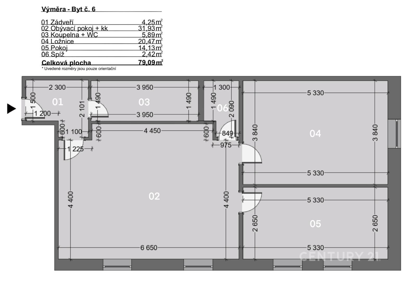
Bytové jednotky mají různé dispozice a velikosti: v přízemí se nachází byt č. 1 o podlahové ploše 51 m² (dispozice 1+1) a byt č. 2 o velikosti 43 m² 2+kk, v druhém podlaží je byt č. 3 (47 m²) 2+kk a byt č. 4 (56 m²) 2+kk, který není předmětem prodeje, a v třetím podlaží jsou byt č. 5 (40 m²) 2+kk a byt č. 6 (82 m²) – 3+kk. K jednotkám náleží sklepní koje o velikosti 2,6–3,2 m² a dále společné prostory domu. Součástí projektu je zřízení krytého parkování pro obyvatele jednotlivých bytů.
Bydlení v této nemovitosti nabídne budoucím vlastníkům nebo nájemníkům největší luxus dnešní doby – vše potřebné doslova na dosah ruky. Dům se nachází v historickém centru města, což zaručuje maximální pohodlí bez nutnosti každodenního startování auta. Rodiny s dětmi ocení, že mateřská, základní škola i dům dětí a mládeže (s řadou zájmových aktivit) jsou vzdáleny jen pár minut bezpečné chůze. Každodenní praktické potřeby lze vyřešit přímo na náměstí nebo v jeho okolí, kde najdete budovu radnice, pekárnu, kavárnu, restauraci, lékárnu, bankomat, řadu lokálních obchůdků i supermarket Penny Market.
Vamberk však nenabízí jen praktičnost, ale i bohaté společenské vyžití. Místní městský klub (koncerty, divadlo, výstavy, tanec), muzeum, restaurace a kavárny oživují tep města a vytvářejí příjemnou atmosféru pro volné večery. Pro aktivnější jedince je k dispozici fitness studio, moderní sportovní areál, sportovní hala, skatepark a v letních měsících oblíbené koupaliště, které doplňuje pestrou mozaiku služeb, jež z této adresy dělají skutečně prestižní místo pro život.
| Cena: | 6 921 000 Kč |
| Datum k nastěhování: | 01.04.2026 |
| Číslo zakázky: | REALITYMIX-977070 |
Podrobné informace
- Poloha objektu: řadový
- Druh objektu: cihlová
- Stav objektu: ve výstavbě (hrubá stavba)
- Počet podlaží objektu: 2
- Typ domu: patrový
- Zastavěná plocha: 168 m²
- Plocha parcely: 336 m²
- Užitná plocha: 306 m²
- Sklep: ano
- Elektřina: Elektro - 230 V
- Voda: Zdroj pro celý objekt, Voda - dálkový vodovod
- Odpad: Kanalizace
- Energetická náročnost budovy: G - Mimořádně nehospodárná
Právní rádce
-
Detail
V tomto článku shrneme nejdůležitější věci, které byste si měli promyslet, pokud se chystáte prodat svou nemovitost a chcete, abyste s kupujícím nemusel následně řešit vzniklé problémy.
Jako prodávající nesete rizika spojená nejen se samotným obchodem, ale i se stavem nemovitosti v době prodeje a pro minimalizaci rizik, je dobré se zamyslet nad uvedenými oblastmi.
-
Detail
Realitní makléř má své nezastupitelné místo v realitním obchodu. Realitním makléřem nemyslím nevzdělané jelito, které absolvovalo dvoudenní školení a ví, jak se nahraje inzerát na inzertní portál.
Realitním makléřem, který se Vám skutečně vyplatí, je zkušený profesionál, který je schopen Vám dobře poradit jak prodat za co nejvíc a s nejmenším rizikem a hlavně je Vás schopen obratně provést celým realitním obchodem.
Mapa
Podobné nemovitosti
Prodej - dům/vila, 206 m²
Komenského, Kostelec nad Orlicí, Rychnov nad Kněžnou
4 990 000 Kč
Prodej - dům/vila, 68 m²
Kvasiny, Rychnov nad Kněžnou
6 130 000 Kč
Prodej - dům/vila, 79 m²
Ještětická, Solnice, Rychnov nad Kněžnou
5 990 000 Kč
Prodej - dům/vila, 95 m²
Ještětická, Solnice, Rychnov nad Kněžnou
6 490 000 Kč