Prodej - dům/vila, 145 m²
Husova, Vejprty, Chomutov
4 800 000 KčProdej - dům/vila, 145 m²
Husova, Vejprty, Chomutov
Prodej zrekonstruovaného domu s prostornou zahradou v Krušných horách, 10 minut od Klínovce
Patrový dům s parkovacími místy a garáží poskytuje ideální místo k bydlení pro celou rodinu. Se zastavěnou plochou 112 m² domu a užitnou plochou 145 m² nabízí dostatek prostoru pro vaše bydlení.
Pozemek je členěn na dvě části s rovinatým i svažitým terénem o rozloze 547 m² a poskytne vám i dětem dostatek místa a zároveň pobyt na čerstvém horském vzduchu.
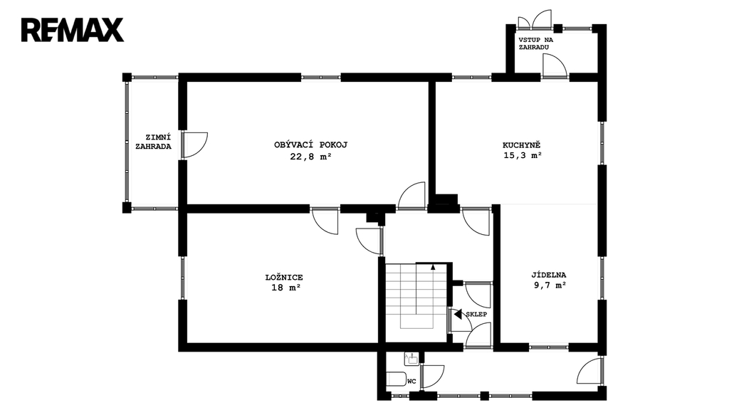
V přízemí domu je vstupní chodba s WC, zádveří se samostatně průchozí kuchyní, obývacím pokojem a ložnicí. Z kuchyně se dostanete do jídelny a na zahradu. Za obývacím pokojem je vstup do menší "zimní zahrady". Celková plocha přízemí činí 92 m².
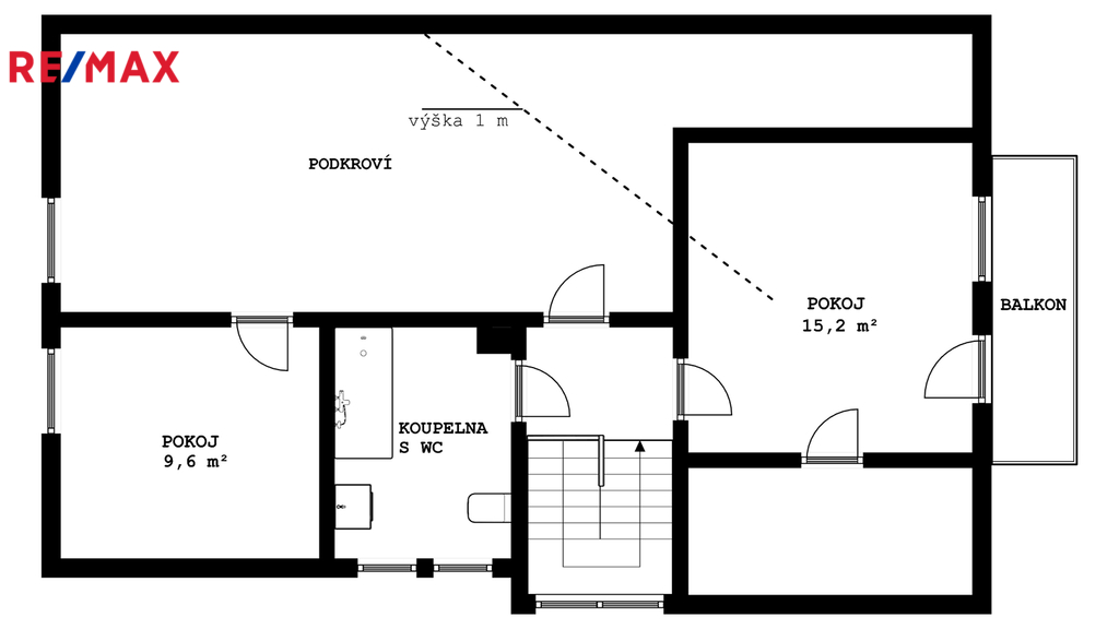
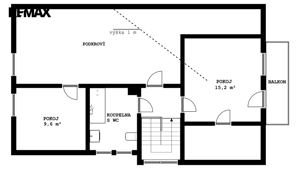
V patře je koupelna, pokoj s balkónem a dvě podkrovní místnosti o užitné ploše 53 m².
Ve sklepě je pračka a bojler, kotel na tuhá paliva, spižírna a komora na uhlí.
V rámci obce máte vše na dosah, ať už se jedná o základní nebo mateřskou školu, poštu, obchody a restaurace. Dopravní dostupnost je na výborné úrovni i v zimě. Ski areál Klínovec je vzdálen pouhých 10 minut autem.
Zateplený dům s novou střešní krytinou a plastovými okny je ve velmi dobrém stavu a bez nutnosti rekonstrukcí máte možnost ihned spokojeně bydlet.
Vytápění zajišťuje kotel na tuhá paliva se zásobníkem, který vám zajistí teplo na 5 dní po doplnění. Dům je také vybaven kamerovým systémem a alarmem.
Pro rodiny hledající bydlení na horách s důrazem na dostatek prostoru je tato nemovitost ideální volbou.
S financováním vám pomůže naše hypoteční specialistka. Doporučuji osobní prohlídku. Prodávající si vyhrazuje právo vybrat kupujícího na základě jím zvolených kritérií.
| Cena: | 4 800 000 Kč |
| Číslo zakázky: | REALITYMIX-405799 |
Podrobné informace
- Poloha objektu: samostatný
- Druh objektu: smíšená
- Stav objektu: velmi dobrý
- Počet podlaží objektu: 2
- Typ domu: patrový
- Zastavěná plocha: 112 m²
- Plocha parcely: 708 m²
- Zahrada: 547 m²
- Užitná plocha: 145 m²
- Umístění objektu: klidná část obce
- Doprava: vlak, silnice, autobus
- Komunikace: asfaltová
- Elektřina: Elektro - 230 V
- Voda: Voda - dálkový vodovod
- Telekomunikace: Internet
- Energetická náročnost budovy: G - Mimořádně nehospodárná
- Energetický ukazatel podle vyhlášky: č. 264/2020 Sb.
Právní rádce
-
Detail
V tomto článku shrneme nejdůležitější věci, které byste si měli promyslet, pokud se chystáte prodat svou nemovitost a chcete, abyste s kupujícím nemusel následně řešit vzniklé problémy.
Jako prodávající nesete rizika spojená nejen se samotným obchodem, ale i se stavem nemovitosti v době prodeje a pro minimalizaci rizik, je dobré se zamyslet nad uvedenými oblastmi.
-
Detail
Realitní makléř má své nezastupitelné místo v realitním obchodu. Realitním makléřem nemyslím nevzdělané jelito, které absolvovalo dvoudenní školení a ví, jak se nahraje inzerát na inzertní portál.
Realitním makléřem, který se Vám skutečně vyplatí, je zkušený profesionál, který je schopen Vám dobře poradit jak prodat za co nejvíc a s nejmenším rizikem a hlavně je Vás schopen obratně provést celým realitním obchodem.