Prodej - dům/vila, 99 m²
Veverské Knínice, Brno-venkov
8 990 000 KčProdej - dům/vila, 99 m²
Veverské Knínice, Brno-venkov
RD na klíč 5+KK - 99 m² na poz.800 m²,Veverské Knínice, Brno - venkov
Pozemek se nachází na kraji obce ve velmi klidné části. Stavební šířka pozemku parc. č. 769/22 je cca 15,5 m a délka cca 51,6 m. Vjezd na pozemek vede z obecní cesty p.č.765. Inženýrské sítě jsou v dosahu několika metrů. Na přípojky není potřeba stavební povolení.
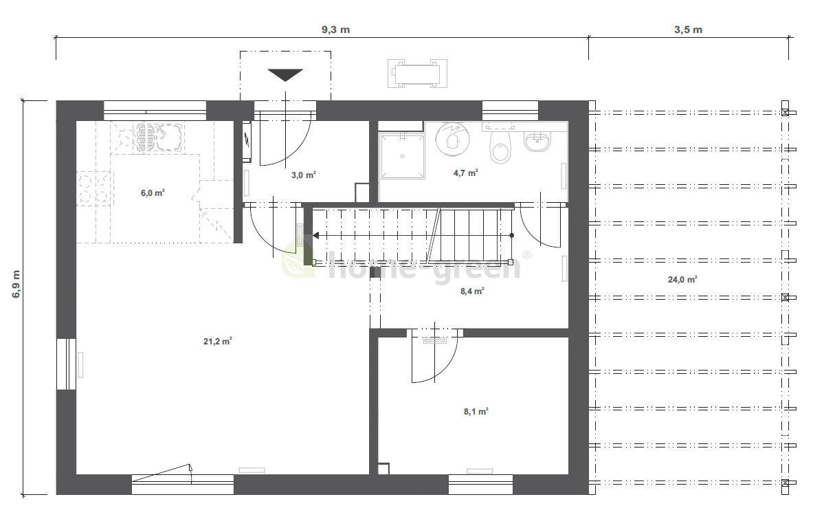
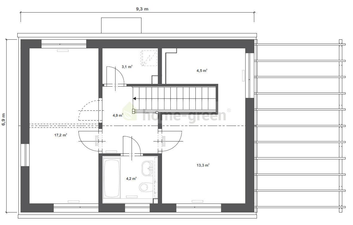
Doporučujeme na tomto pozemku postavit pěkný přízemní KUBIS 99 je revolučním domem na trhu s dřevostavbami. Moderní rodinný dům o dispozicích 4+kk s možností jednoduchého rozšíření na 5+kk. V ceně domu je garážové stání formou nezastřešené pergoly.
Provedení domu - 5 + KK.
Užitná plocha - 99 m2
Zastavěná plocha bez stání - 65 m2
Rozměry domu - 9.3 x 6.9 m
Proč si vybrat dům od RD Rýmařov?
Tepelné čerpadlo je v ceně domu. Čerpadlo vzduch - vzduch v zimě dům vyhřeje, v létě zase ochladí
Fotovoltaická elektrárna je v ceně domu. Systém ON GRID s akumulací do zásobníku TUV: využívá sluneční energii pro ohřev užitkové vody v 200 litrovém zásobníku.
Základová deska je v ceně domu. Ušetříte, a navíc vám odpadne spousta starostí.
Veverské Knínice jsou obec v okrese Brno-venkov v Jihomoravském kraji. Leží na rozhraní Boskovické brázdy a Křižanovské vrchoviny. Krásná příroda v okolí obce poskytuje velké možnosti pro volnočasovou aktivitu v blízkosti Brněnské přehrady a hradu Veveří. Ve Veverských Knínicích můžete navštívit kapličku sv. Ludmily s kamenem z Araratu, případně zrekonstruovanou sokolovnu. Pro výlety do okolí se hodí Podkomorské lesy s památníkem Helenky z Pohádky máje, nebo se můžete vydat na nedalekou vyhlídku Trůn. Mezi další blízké cíle patří Jarošův mlýn ve Veverské Bítýšce , hrad Veveří nebo Auto-motodrom Brno v Ostrovačicích. Obec je součástí dobrovolného svazku obcí Panství hradu veverského. V současné době je v obci 332 domů a žije tu přibližně 954 obyvatel. Obec je vzdálená cca 10 km od města Rosice a cca 20 Km západně od města Brno. Sjezd z dálnice D1 je v blízkosti 3 km u obce Ostrovačice a v centru Brna lze být autem za 15 minut. Vizualizace RD k výstavbě je pouze ilustrativní. Nabídku doporučujeme a se zajištěním financování Vám rádi pomůžeme.
Energetický štítek: B - Úsporná dle vyhlášky č. 264/2020 Sb.
| Cena: | 8 990 000 Kč |
| Číslo zakázky: | REALITYMIX-N00025 |
Podrobné informace
- Poloha objektu: samostatný
- Druh objektu: dřevěná
- Stav objektu: projekt
- Počet podlaží objektu: 2
- Typ domu: patrový
- Zastavěná plocha: 65 m²
- Plocha parcely: 800 m²
- Užitná plocha: 99 m²
- Umístění objektu: okraj obce
- Doprava: dálnice, silnice, autobus
- Elektřina: Elektro - 230 V
- Voda: Voda - dálkový vodovod
- Topení: Ústřední - elektrické
- Odpad: Kanalizace
- Ostatní rozvody: Kabelové rozvody
- Energetická náročnost budovy: B - Velmi úsporná
- Ukazatel energetické náročnosti budovy: 0.16 kWh/m²
- Energetický ukazatel podle vyhlášky: č. 264/2020 Sb.
Právní rádce
-
Detail
V tomto článku shrneme nejdůležitější věci, které byste si měli promyslet, pokud se chystáte prodat svou nemovitost a chcete, abyste s kupujícím nemusel následně řešit vzniklé problémy.
Jako prodávající nesete rizika spojená nejen se samotným obchodem, ale i se stavem nemovitosti v době prodeje a pro minimalizaci rizik, je dobré se zamyslet nad uvedenými oblastmi.
-
Detail
Realitní makléř má své nezastupitelné místo v realitním obchodu. Realitním makléřem nemyslím nevzdělané jelito, které absolvovalo dvoudenní školení a ví, jak se nahraje inzerát na inzertní portál.
Realitním makléřem, který se Vám skutečně vyplatí, je zkušený profesionál, který je schopen Vám dobře poradit jak prodat za co nejvíc a s nejmenším rizikem a hlavně je Vás schopen obratně provést celým realitním obchodem.