Prodej - dům/vila, 220 m²
Třebíč
7 828 000 KčPozemek 2041 m² + dřevostavba 6+kk – Střížov u Vladislavi
Rodinný dům je navržen jako nízkoenergetická dřevostavba z prefabrikovaných rámových stěnových panelů. Jedná se o hrubou stavbu, u které lze individuálně domluvit její dokončení. Dispozice i vzhled domu může stavební firma upravit podle přání klienta. Realizace hrubé stavby je do 4 měsíců
Pozemek se nachází v klidné lokalitě 10 km od Třebíče. Ze Střížova jezdí autobus do Vladislavi i Třebíče, ve Vladislavi (3 km) je vlakové spojení do Třebíče, Brna i Náměště nad Oslavou a kompletní občanská vybavenost: škola, školka, lékař, pošta, knihovna i sportovní zázemí.
Na pozemku je vodovodní a kanalizační přípojka, elektřinu je nutné vyřídit. Přístup na pozemek je z obou stran - z obecní komunikace i z polní cesty.
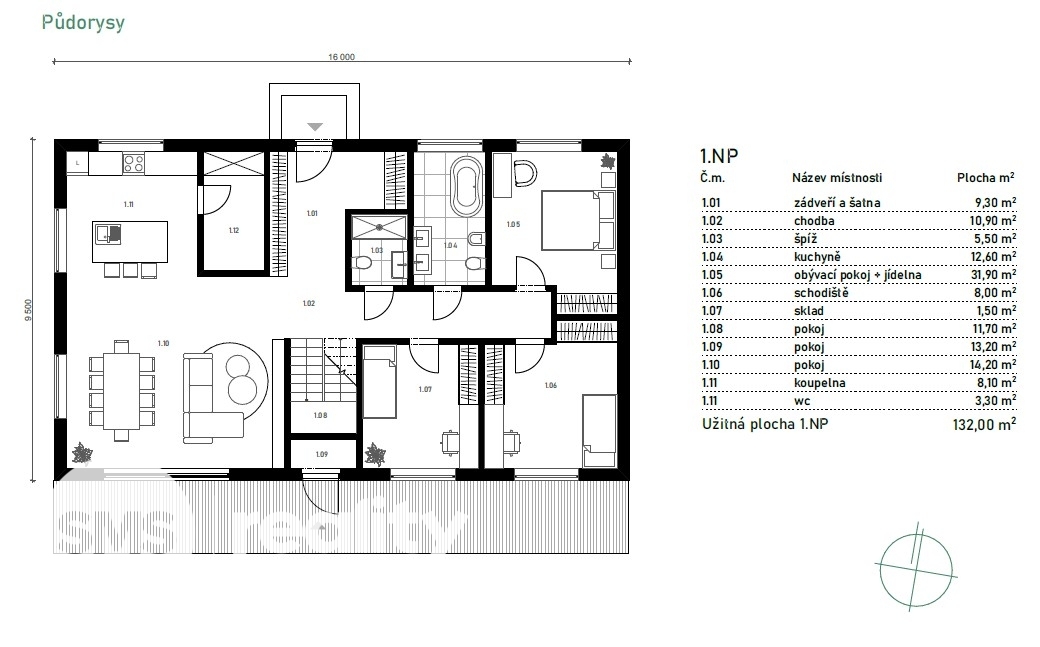
Pro lepší představu přikládám vizualizaci domu, umístění na pozemku a půdorysy obou podlaží.
Pozemek je možné koupit i samostatně.
Pro více informací mne neváhejte kontaktovat.
| Cena: | 7 828 000 Kč |
| Číslo zakázky: | REALITYMIX-1748 |
Podrobné informace
- Poloha objektu: samostatný
- Druh objektu: dřevěná
- Stav objektu: novostavba
- Počet podlaží objektu: 1
- Typ domu: patrový
- Zastavěná plocha: 220 m²
- Plocha parcely: 2041 m²
- Užitná plocha: 220 m²
- Umístění objektu: okraj obce
- Energetický ukazatel podle vyhlášky: č. 264/2020 Sb.
Právní rádce
-
Detail
V tomto článku shrneme nejdůležitější věci, které byste si měli promyslet, pokud se chystáte prodat svou nemovitost a chcete, abyste s kupujícím nemusel následně řešit vzniklé problémy.
Jako prodávající nesete rizika spojená nejen se samotným obchodem, ale i se stavem nemovitosti v době prodeje a pro minimalizaci rizik, je dobré se zamyslet nad uvedenými oblastmi.
-
Detail
Realitní makléř má své nezastupitelné místo v realitním obchodu. Realitním makléřem nemyslím nevzdělané jelito, které absolvovalo dvoudenní školení a ví, jak se nahraje inzerát na inzertní portál.
Realitním makléřem, který se Vám skutečně vyplatí, je zkušený profesionál, který je schopen Vám dobře poradit jak prodat za co nejvíc a s nejmenším rizikem a hlavně je Vás schopen obratně provést celým realitním obchodem.