Prodej - dům/vila, 465 m²
Mlýnská, Volary, Prachatice
5 300 000 KčProdej - dům/vila, 465 m²
Mlýnská, Volary, Prachatice
K prodeji, rodinný dům před rekonstrukcí s pozemkem, Mlýnská č.p. 181, Volary
Prodávaný pozemek s objektem se nachází na LV č. 2103 v kú Volary. Na pozemku parc. č.233/1 o výměře 385 m² se nachází stavba bývalé cihelny.
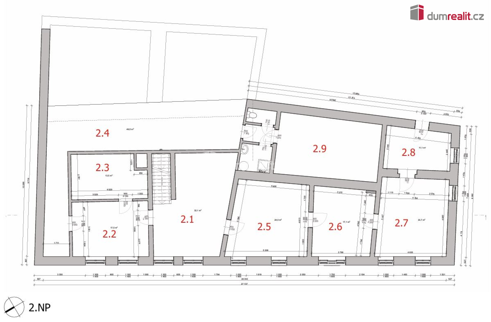
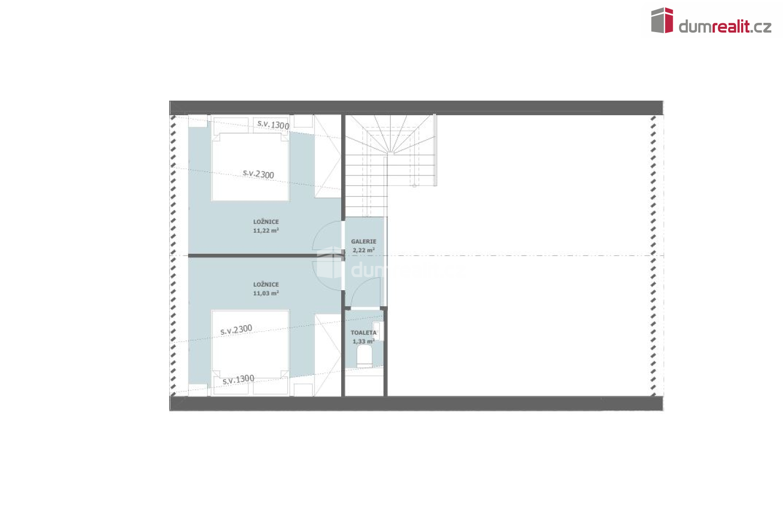
Částečně podsklepený dvoupodlažní objekt ze smíšeného zdiva se skládá ze dvou stavebních celků rozdílného stavu a stáří. Severní část je zchátralá. Jižní navazující polovina stavby je částečně podsklepená a místy udržovaná. Východní obvodovou zeď lemují přízemní přístavby. Součástí objektu je historická studna. Stávající svislé nosné konstrukce jsou tvořeny zdivem z cihel plných pálených (z místní cihelny), v přízemí objektu je možno předpokládat zdivo smíšené s kameny. Stávající stropy v objektu jsou v přízemí tvořeny zčásti klenbou a zčásti dřevěnými trámy. V nadzemních podlažích jsou stropy dřevěné trámové. V objektu se nachází původní schodiště s kamennými nášlapy. Střechy jsou standardní krovové soustavy sedlové s valbovou dostavbou ze severní části v dobrém stavu - bez zatékání. Střešní plášť je tvořený keramickou taškovou krytinou a oplechování střechy je provedeno z pozinkovaného plechu. Příčky jsou z cihel plných pálených.
Objekt je připojen na veřejný vodovod a elektřinu. Kanalizace je řešena jímkou.
K dispozici máme rozhodnutí k odstranění stavby včetně pasportu stavby.
Máme vytvořenou studii na nové zastavění plochy, předáme zájemci při prohlídce domu a jeho okolí.
Zajistíme Vám financování a veškerý právní servis.
Více informací Vám poskytne realitní makléř Tomáš Pelda z realitní kanceláře A TEMPO fungující pod ochranou známkou naše společnost. Ev. číslo: 655222.
| Cena: | 5 300 000 Kč |
| Poznámka: | Cena je včetně provize RK a právního servisu. Více informací Vám poskytne makléř Tomáš Pelda. |
| Číslo zakázky: | REALITYMIX-655836 |
Podrobné informace
- Poloha objektu: samostatný
- Druh objektu: smíšená
- Stav objektu: určený k demolici
- Počet podlaží objektu: 2
- Typ domu: patrový
- Zastavěná plocha: 385 m²
- Plocha parcely: 1713 m²
- Užitná plocha: 465 m²
- Elektřina: Elektro - 400 V
- Voda: Voda - dálkový vodovod
- Topení: Lokální - tuhá paliva
- Energetická náročnost budovy: G - Mimořádně nehospodárná
- Energetický ukazatel podle vyhlášky: č. 78/2013 Sb.
- Popis vybavení: ...
Právní rádce
-
Detail
V tomto článku shrneme nejdůležitější věci, které byste si měli promyslet, pokud se chystáte prodat svou nemovitost a chcete, abyste s kupujícím nemusel následně řešit vzniklé problémy.
Jako prodávající nesete rizika spojená nejen se samotným obchodem, ale i se stavem nemovitosti v době prodeje a pro minimalizaci rizik, je dobré se zamyslet nad uvedenými oblastmi.
-
Detail
Realitní makléř má své nezastupitelné místo v realitním obchodu. Realitním makléřem nemyslím nevzdělané jelito, které absolvovalo dvoudenní školení a ví, jak se nahraje inzerát na inzertní portál.
Realitním makléřem, který se Vám skutečně vyplatí, je zkušený profesionál, který je schopen Vám dobře poradit jak prodat za co nejvíc a s nejmenším rizikem a hlavně je Vás schopen obratně provést celým realitním obchodem.