Prodej - dům/vila, 182 m²
Na Vávrově I, Všestary, Praha-východ
11 100 000 KčProdej - dům/vila, 182 m²
Na Vávrově I, Všestary, Praha-východ
Prodej souboru dvou rodinných domků s velkorysou zahradou a truhlářskou dílnou v malebné lokalitě Vš
Nemovitost může být krásným zázemím pro rodinu, která chce mít například své rodiče nablízku a přitom si zachovat dostatek soukromí.
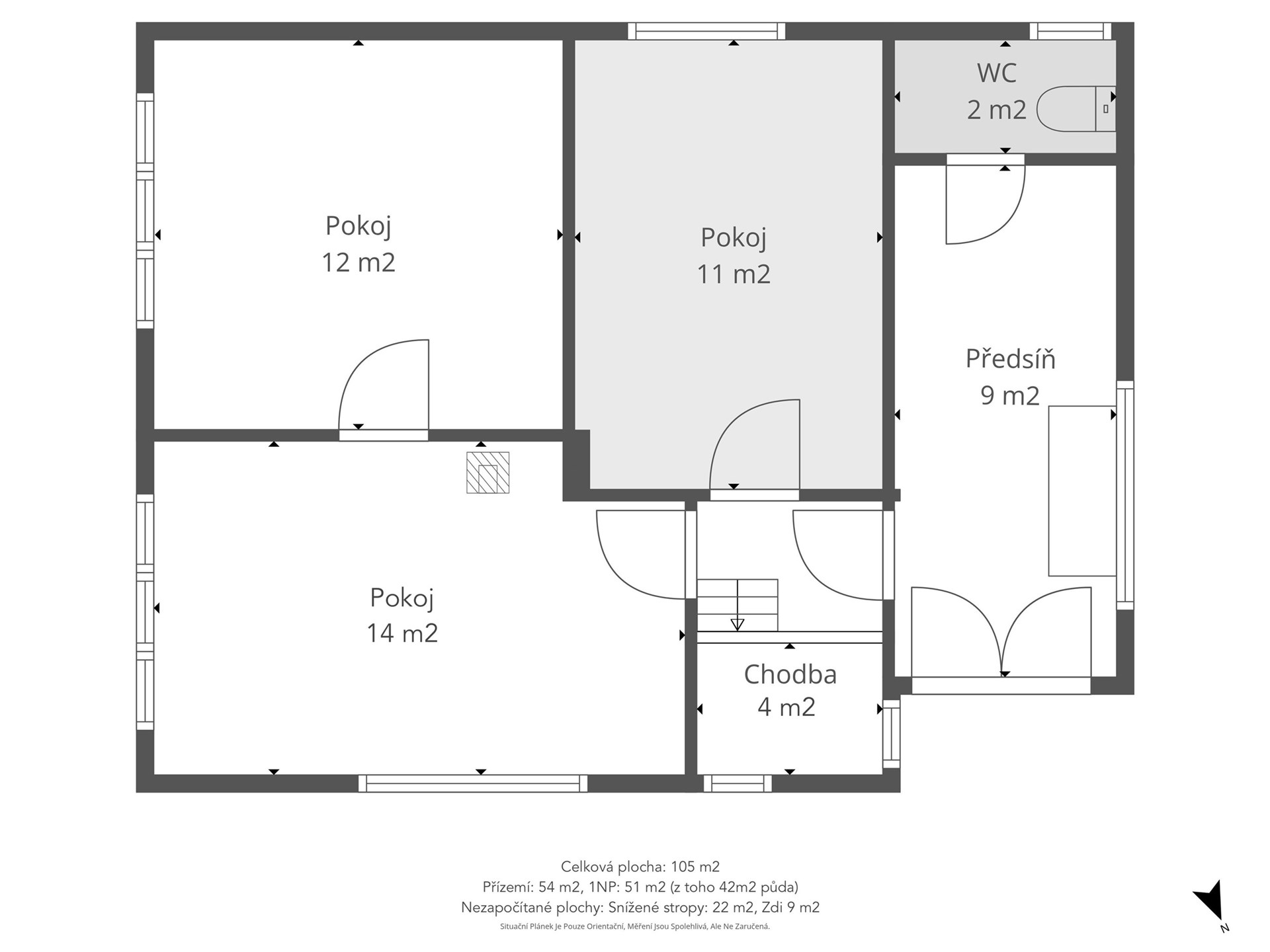
Hlavní dům – útulné a funkční bydlení
Patrový dům o zastavěné ploše 68 m² (ve dvou patrech 3+1) je podsklepený a v udržovaném stavu. Jedná se o starší, ale plně funkční dům s pevnou konstrukcí, který nabízí příjemné bydlení.
Noví majitelé si jej mohou postupně upravovat podle svých představ a vytvořit si zde domov přesně takový, jaký si přejí.
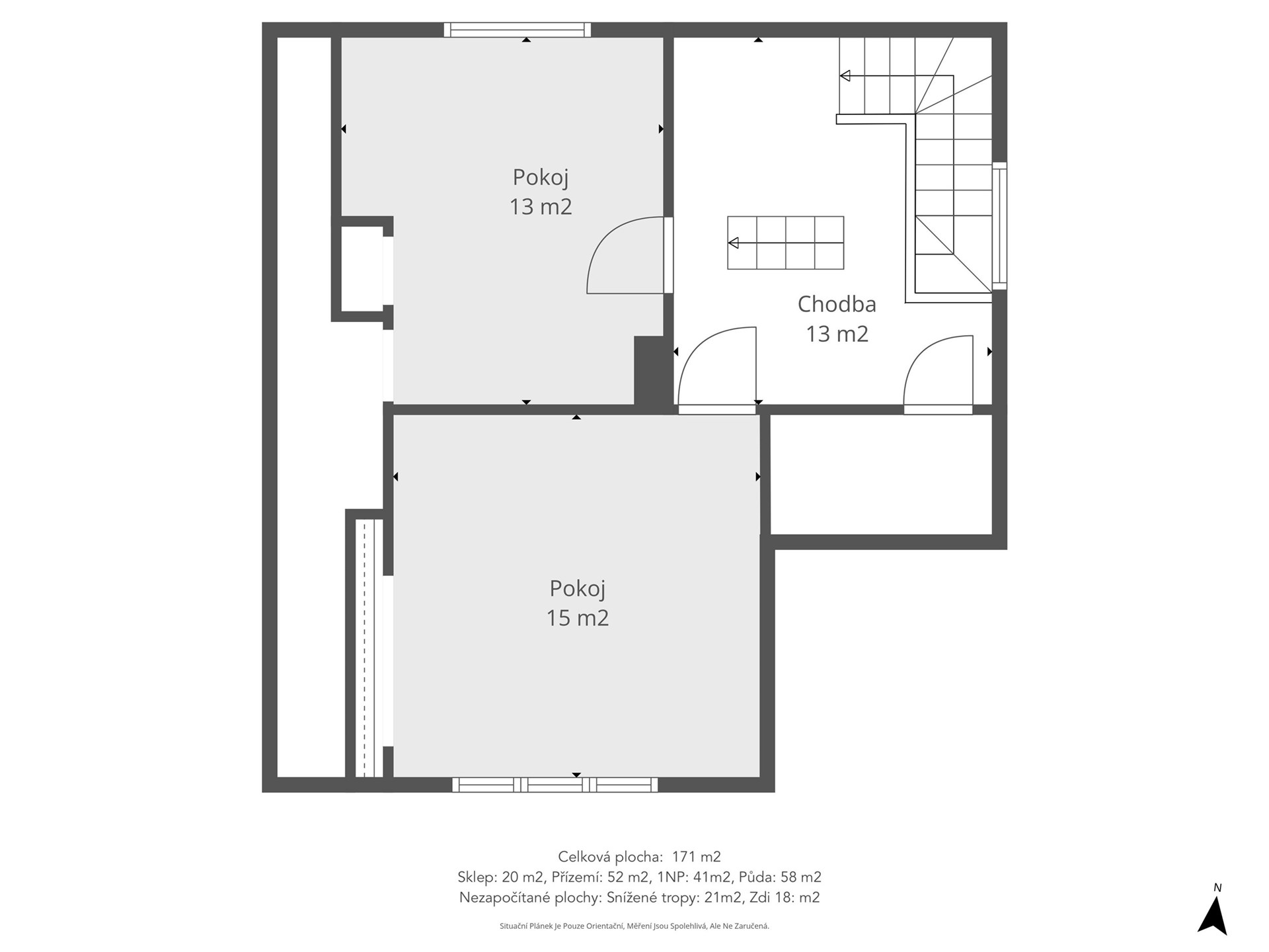
Druhý dům – prostor pro nový začátek
Na pozemku se nachází také menší přízemní dům o zastavěné ploše 61 m² (2+1 s malou místností v podkroví), který je připraven ke kompletní rekonstrukci.
V současnosti je objekt bez zavedených sítí. Právě to ale nabízí velkou příležitost – vytvořit si menší, úsporné a pohodové bydlení podle vlastních představ.
Může tak vzniknout ideální místo pro rodiče, hosty, rekreační využití nebo klidné zázemí pro práci z domova.
Prostorná dílna cca 250 m²
Součástí nemovitosti je také velká patrová truhlářská dílna, která nabízí široké možnosti využití – pro řemeslo, podnikání, kutilství, kreativní tvorbu nebo jako praktické skladové zázemí.
Zahrada a okolní příroda
Udržovaná zahrada poskytuje příjemné místo k odpočinku, pěstování i společným chvílím s rodinou a přáteli. Na garáž navazuje prostorné venkovní posezení, které vybízí k letním večerům a grilování.
Velkou výhodou je také les začínající přímo za plotem, který nabízí krásné procházky, klid a pocit skutečného kontaktu s přírodou.
Ke hranici pozemku je přivedena přípojka plynu.
Vlak cca 5 minut chůze – pohodlné spojení do Praha
Autobus cca 1 minuta
Základní občanská vybavenost v dosahu
Tato nemovitost má své srdce a svým novým majitelům může dopřát to nejdůležitější – klid, blízkost rodiny a možnost vytvořit si bezpečný domov podle vlastních představ.
| Cena: | 11 100 000 Kč |
| Datum k nastěhování: | 01.03.2026 |
| Číslo zakázky: | REALITYMIX-975234 |
Podrobné informace
- Poloha objektu: samostatný
- Druh objektu: cihlová
- Stav objektu: před rekonstrukcí
- Počet podlaží objektu: 2
- Typ domu: patrový
- Zastavěná plocha: 182 m²
- Plocha parcely: 1250 m²
- Zahrada: 1250 m²
- Užitná plocha: 182 m²
- Sklep: ano
- Ostatní: Garáž
- Doprava: vlak, dálnice
- Elektřina: Elektro - 230 V, Elektro - 380 V
- Voda: Zdroj pro celý objekt, Voda - dálkový vodovod
- Odpad: Kanalizace
- Energetická náročnost budovy: G - Mimořádně nehospodárná
- Popis vybavení: .
Právní rádce
-
Detail
V tomto článku shrneme nejdůležitější věci, které byste si měli promyslet, pokud se chystáte prodat svou nemovitost a chcete, abyste s kupujícím nemusel následně řešit vzniklé problémy.
Jako prodávající nesete rizika spojená nejen se samotným obchodem, ale i se stavem nemovitosti v době prodeje a pro minimalizaci rizik, je dobré se zamyslet nad uvedenými oblastmi.
-
Detail
Realitní makléř má své nezastupitelné místo v realitním obchodu. Realitním makléřem nemyslím nevzdělané jelito, které absolvovalo dvoudenní školení a ví, jak se nahraje inzerát na inzertní portál.
Realitním makléřem, který se Vám skutečně vyplatí, je zkušený profesionál, který je schopen Vám dobře poradit jak prodat za co nejvíc a s nejmenším rizikem a hlavně je Vás schopen obratně provést celým realitním obchodem.
Mapa
Podobné nemovitosti
Prodej - dům/vila, 138 m²
Petra Jilemnického, Brandýs nad Labem, Praha-východ
8 900 000 Kč
Prodej - dům/vila, 183 m²
Výletní, Brandýs nad Labem, Praha-východ
11 500 000 Kč
Prodej - dům/vila, 70 m²
Masarykova, Čelákovice, Praha-východ
10 900 000 Kč
Prodej - dům/vila, 110 m²
Svojetická, Louňovice, Praha-východ
8 500 000 Kč