Prodej - dům/vila, 100 m²
Stará Zvonice, Zdice, Beroun
10 690 000 KčProdej - dům/vila, 100 m²
Stará Zvonice, Zdice, Beroun
Prodej rodinného domu 100 m2 Stará Zvonice, Zdice
Hledáte místo, kde se snoubí historie, klid, prostor a nádherný výhled do zeleně?
Pak právě v ulici Stará Zvonice na vás čeká dům s duší, který nabízí obrovský potenciál ať už k rekonstrukci, přestavbě nebo zcela novému životu podle vašich představ.
Na pozemku o celkové výměře 1 709 m (parc. 1323 a 1324) stojí původní rodinný dům o dispozici 3 + kk, částečně podsklepený.
V přízemí se nachází obývací pokoj s kuchyní, ložnice, koupelna, toaleta s úložným prostorem a vstupní chodba.
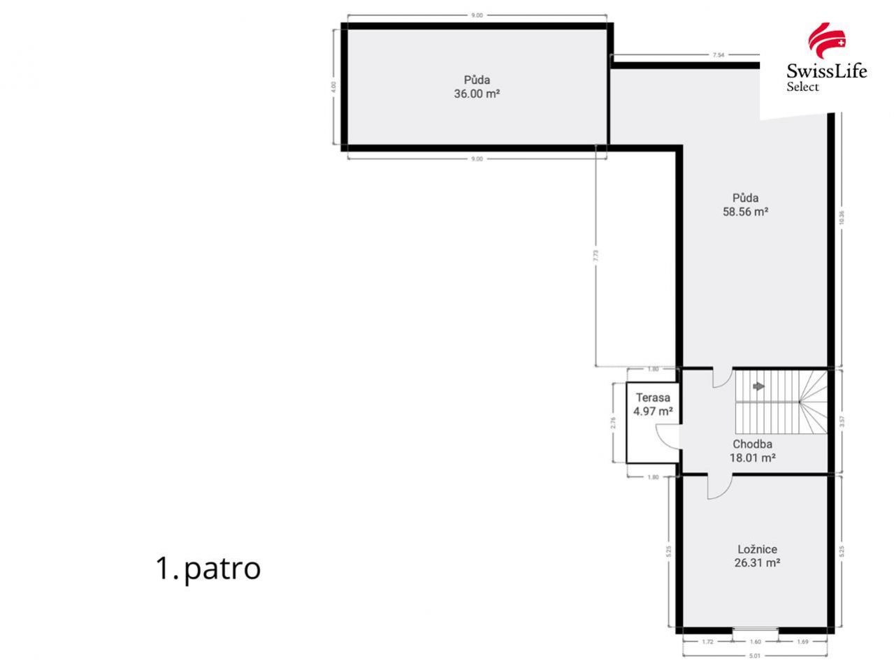
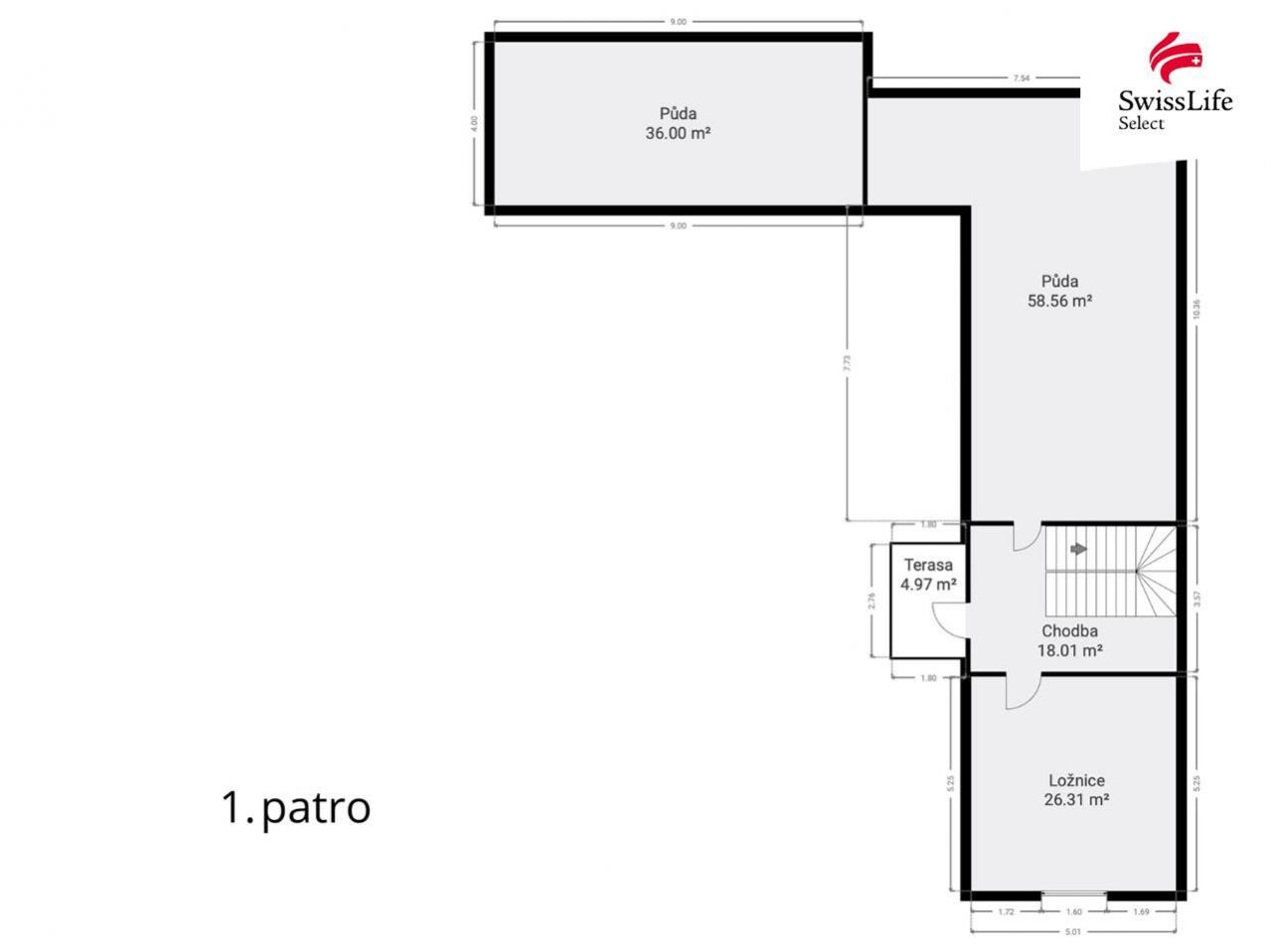
Po schodech nahoru se dostanete do menšího otevřeného prostoru, ideálního třeba pro piano nebo knihovnu, a dále do druhé ložnice.
V patře je dále vchod na rozsáhlou půdu, kde se pohodlně dají vybudovat další jeden, dva pokoje.
Malá část domu je podsklepena (původní sklad uhlí).
Z vnější strany je samostatný vstup do dílny, která může být po propojení využita jako další obytný prostor.
Na dům navazují kůlna (další dílna), sklad a bývalý chlév ideální pro skladování, rekonstrukci nebo rozšíření obytné části.
Součástí pozemku je také samostatně stojící garáž se skladem/dílnou (cca 43 m zastavěné plochy), odkud se otevírá úchvatný výhled na zeleň a panoramata Berounska.
Na zahradě je funkční studna využívaná k zalévání, ovocné stromy, a v dolní části také bývalé včelí úly, které připomínají rodinnou tradici výroby medu.
Zahrada je kaskádovitá, prostorná a plná soukromí, ideální pro relaxaci i pěstování.
Dům má obuvnickou historii kdysi zde rodina provozovala menší výrobu obuvi.
Součástí prodeje je také vypracovaný moderní projekt (k rekonstrukci nebo komerčnímu využití), který je stále možné realizovat.
Ulice Stará Zvonice patří mezi nejklidnější části Zdic, přitom jen pár minut pěšky od náměstí.
V blízkosti se nachází barokní kostel z 18. století, železniční stanice i autobusové spojení.
Do Berouna se dostanete autem za 10 minut, na Prahu Zličín za 25 minut.
V místě je kompletní občanská vybavenost školy, školky, obchody, zdravotní péče i velké koupaliště Zdice.
V okolí najdete oblíbené výletní cíle Koněpruské jeskyně (15 min), hrad Karlštejn (25 min), nebo lesopark Knihov (10 min pěšky).
Dům spadá do programu Oprav dům po babičce (SFŽP) lze tedy čerpat státní dotaci na rekonstrukci až do výše 1,3 milionu Kč a zároveň získat výhodný úvěr na zateplení, výměnu oken, střechy či vytápění.
Pro nové majitele to znamená výraznou úsporu nákladů na rekonstrukci.
Tento dům není o číslech, ale o prostoru, atmosféře a možnostech. Spojuje klid, historii a potenciál, který dnes na Berounsku hledá málokdo.
Je nutné ho vidět osobně fotky ani text nedokážou vystihnout výhled, kouzlo zahrady ani energii tohoto místa.
| Cena: | 10 690 000 Kč |
| Číslo zakázky: | REALITYMIX-24723 |
Podrobné informace
- Poloha objektu: řadový
- Druh objektu: cihlová
- Stav objektu: před rekonstrukcí
- Počet podlaží objektu: 2
- Typ domu: patrový
- Zastavěná plocha: 180 m²
- Plocha parcely: 1709 m²
- Užitná plocha: 100 m²
- Umístění objektu: klidná část obce
- Doprava: vlak, dálnice, silnice, autobus
- Odpad: Kanalizace
- Energetická náročnost budovy: G - Mimořádně nehospodárná
Právní rádce
-
Detail
V tomto článku shrneme nejdůležitější věci, které byste si měli promyslet, pokud se chystáte prodat svou nemovitost a chcete, abyste s kupujícím nemusel následně řešit vzniklé problémy.
Jako prodávající nesete rizika spojená nejen se samotným obchodem, ale i se stavem nemovitosti v době prodeje a pro minimalizaci rizik, je dobré se zamyslet nad uvedenými oblastmi.
-
Detail
Realitní makléř má své nezastupitelné místo v realitním obchodu. Realitním makléřem nemyslím nevzdělané jelito, které absolvovalo dvoudenní školení a ví, jak se nahraje inzerát na inzertní portál.
Realitním makléřem, který se Vám skutečně vyplatí, je zkušený profesionál, který je schopen Vám dobře poradit jak prodat za co nejvíc a s nejmenším rizikem a hlavně je Vás schopen obratně provést celým realitním obchodem.