Prodej - dům/vila, 270 m²
Žeravice, Hodonín
9 530 000 KčProdej - dům/vila, 270 m²
Žeravice, Hodonín
Prodej - dům/vila, 270 m²
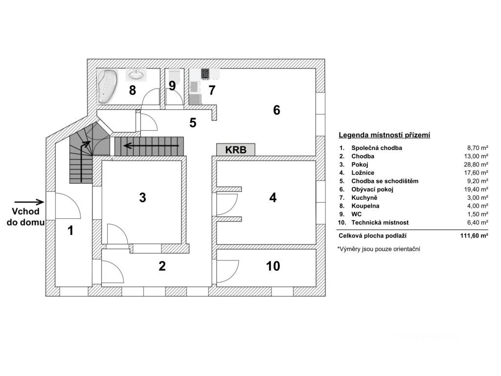
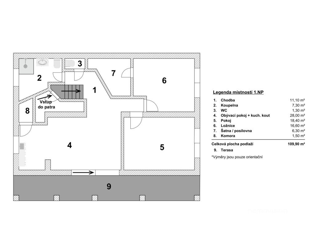
Dům je rozdělen do tří samostatných bytových jednotek, díky čemuž nabízí naprostou flexibilitu využití. V přízemí se nachází dvě bytové jednotky o dispozici 2+1, které poskytují dostatek prostoru a soukromí. V patře je pak nově vybudovaný byt 3+kk, který působí moderně, vzdušně a je připraven stát se plnohodnotným rodinným bydlením.
Nemovitost prošla postupnou rekonstrukcí, přičemž většina zásadních prací je již hotová. K dokončení zbývá pouze minimum úprav, které si nový majitel může přizpůsobit podle vlastního vkusu a potřeb – a dát tak domu osobní rukopis.
Velkou předností domu je udržovaná zahrada, která nabízí příjemné soukromí a prostor pro odpočinek, rodinná setkání i každodenní relax. K domu dále náleží prostorná garáž až pro tři auta, praktická dílna a také sklep ideální pro skladování ovoce a zeleniny.
Základní informace:
užitná plocha domu: 270 m²
plocha pozemku: 1551 m²
počet bytových jednotek: 3
Tento dům je ideální volbou pro ty, kteří hledají klidné bydlení s možností dalšího využití, ať už formou pronájmu, podnikání z domova nebo vícegeneračního soužití. Spojuje v sobě praktičnost, prostor a potenciál, který se jen tak nevidí.
Projděte si nemovitost pomocí 3D scanu.
Pro více informací nebo domluvení osobní prohlídky mě neváhejte kontaktovat.
Ráda vám dům představím osobně a ukážu vám, co všechno může nabídnout.
| Cena: | 9 530 000 Kč |
| Číslo zakázky: | REALITYMIX-169 |
Podrobné informace
- Poloha objektu: samostatný
- Druh objektu: cihlová
- Stav objektu: velmi dobrý
- Počet podlaží objektu: 2
- Typ domu: přízemní
- Zastavěná plocha: 195 m²
- Plocha parcely: 1551 m²
- Užitná plocha: 270 m²
- Umístění objektu: klidná část obce
- Komunikace: asfaltová
- Elektřina: Elektro - 230 V, Elektro - 400 V
- Voda: Voda - dálkový vodovod
- Plyn: Plynovod
- Topení: Ústřední - plynové, Jiné
- Odpad: Kanalizace
Právní rádce
-
Detail
V tomto článku shrneme nejdůležitější věci, které byste si měli promyslet, pokud se chystáte prodat svou nemovitost a chcete, abyste s kupujícím nemusel následně řešit vzniklé problémy.
Jako prodávající nesete rizika spojená nejen se samotným obchodem, ale i se stavem nemovitosti v době prodeje a pro minimalizaci rizik, je dobré se zamyslet nad uvedenými oblastmi.
-
Detail
Realitní makléř má své nezastupitelné místo v realitním obchodu. Realitním makléřem nemyslím nevzdělané jelito, které absolvovalo dvoudenní školení a ví, jak se nahraje inzerát na inzertní portál.
Realitním makléřem, který se Vám skutečně vyplatí, je zkušený profesionál, který je schopen Vám dobře poradit jak prodat za co nejvíc a s nejmenším rizikem a hlavně je Vás schopen obratně provést celým realitním obchodem.