Prodej - dům/vila, 162 m²
Zahradní, Žleby, Kutná Hora
6 500 000 KčProdej - dům/vila, 162 m²
Zahradní, Žleby, Kutná Hora
Prodej rodinného domu 4+2 - 162 m2, pozemek 2031 m2, Žleby u Čáslavi
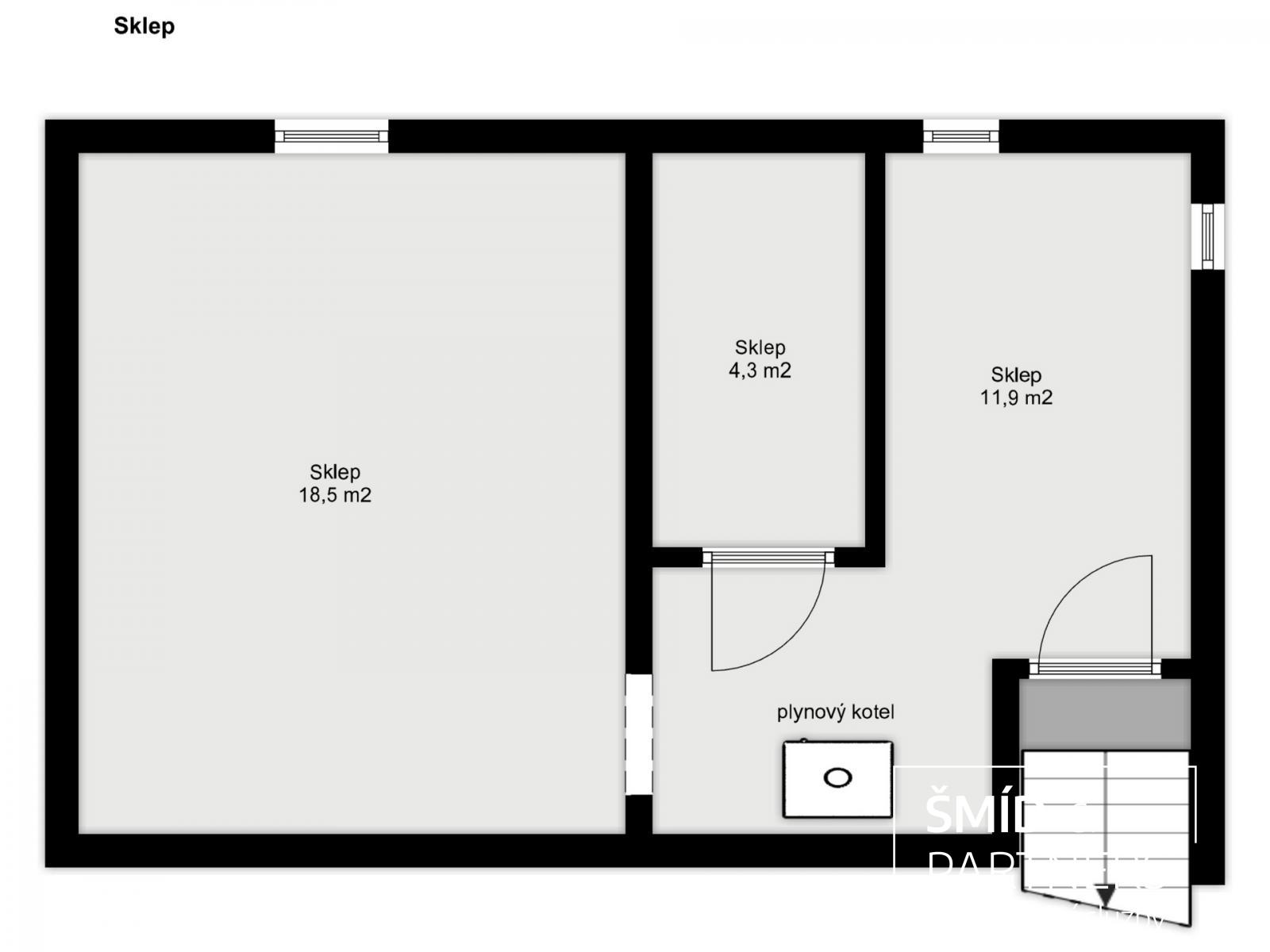
Dvě bytové jednotky v přízemí a v patře, kde každá je s dispozicí 2+1 a umožňuje tak pohodlné bydlení dvou generací. V obou podlažích najdete obývací pokoj, ložnici, kuchyni s jídelním koutem, koupelnu v přízemí, samostatné WC, spíž a prostornou chodbu. Dispozice obou pater jsou velmi podobné a nabízí dostatek prostoru i soukromí. V patře pak bude možné bez problémů dodělat i koupelnu. Ohledně úložného prostoru lze využít půdní prostor, který se nachází nad celým domem. Dům je i částečně podsklepen a máme zde umístěn nový plynový kotel, kterým je dům vytápěn.
Samostatnou součástí je pak garáž a hospodářské přístavky, které využijete jako dílnu, sklad nebo pro podnikání. V rozlehlé zahradě najdete sklep na ovoce, udírnu a příjemné posezení pod dřevěným altánem.
Dům ze 70-tých let byl průběžně udržován a poslední akcí bylo nové ústřední vytápění. Každopádně je v původním stavu,ale nabízí však poctivý základ s klasickým členěním místností. Rozlehlá zahrada se vzrostlými stromy pak vytváří příjemnou atmosféru pro posezení v altánu a případné i osvěžení v bazénu v horkých letních dnech.
Lokalita Žleby u Čáslavi je ideální pro ty, kdo chtějí být v blízkosti města, ale zároveň si užívat klid venkova. V obci je základní občanská vybavenost, mateřská škola, základní škola a do Čáslavi se dostanete autem během několika minut.
Pro další informace či sjednání prohlídky mě neváhejte kontaktovat.
| Cena: | 6 500 000 Kč |
| Poznámka: | včetně právních služeb a provize |
| Číslo zakázky: | REALITYMIX-898 |
Podrobné informace
- Poloha objektu: samostatný
- Druh objektu: smíšená
- Stav objektu: dobrý
- Počet podlaží objektu: 2
- Typ domu: patrový
- Zastavěná plocha: 201 m²
- Plocha parcely: 2031 m²
- Užitná plocha: 162 m²
- Umístění objektu: klidná část obce
- Doprava: vlak, silnice, autobus
- Elektřina: Elektro - 230 V, Elektro - 400 V
- Voda: Zdroj pro celý objekt
- Plyn: Individuální, Plynovod
- Topení: Ústřední - plynové
- Odpad: Kanalizace
- Energetická náročnost budovy: G - Mimořádně nehospodárná
Právní rádce
-
Detail
V tomto článku shrneme nejdůležitější věci, které byste si měli promyslet, pokud se chystáte prodat svou nemovitost a chcete, abyste s kupujícím nemusel následně řešit vzniklé problémy.
Jako prodávající nesete rizika spojená nejen se samotným obchodem, ale i se stavem nemovitosti v době prodeje a pro minimalizaci rizik, je dobré se zamyslet nad uvedenými oblastmi.
-
Detail
Realitní makléř má své nezastupitelné místo v realitním obchodu. Realitním makléřem nemyslím nevzdělané jelito, které absolvovalo dvoudenní školení a ví, jak se nahraje inzerát na inzertní portál.
Realitním makléřem, který se Vám skutečně vyplatí, je zkušený profesionál, který je schopen Vám dobře poradit jak prodat za co nejvíc a s nejmenším rizikem a hlavně je Vás schopen obratně provést celým realitním obchodem.