Prodej - pozemek pro bydlení, 470 m²
Na Hujaru, Babice, Praha-východ
3 099 355 KčProdej - pozemek pro bydlení, 470 m²
Na Hujaru, Babice, Praha-východ
Prodej pozemku pro bydlení, 470 m² - Na Hujaru, Babice
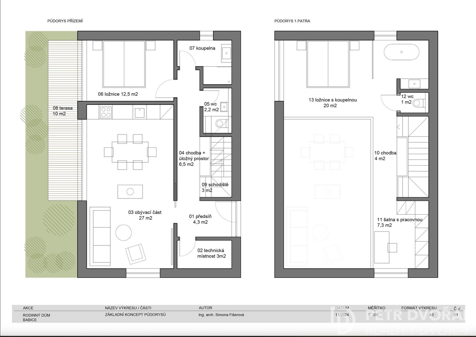
Nabízíme pozemek o velikosti 470 m² v atraktivní lokalitě obce Babice u Říčan. Na pozemku se nachází chata o zastavěné ploše 58 m², která je určena k demolici. Skutečnou hodnotou této nabídky je pozemek s možností výstavby nového celoročně obytného domu o zastavěné ploše až 80 m² a podlahové ploše až 160 m² při dvou podlažích. Jedná se o ideální příležitost pro ty, kteří hledají trvalé bydlení v přírodě s výbornou dostupností do Prahy.
Jedinečné umístění v sousedství školy Open Gate
Pozemek sousedí s otevřeným prostranstvím prestižní školy Open Gate, kde se volně pasou koně, což vytváří klidné a výjimečné prostředí. Lokalita kombinuje blízkost přírody s perfektní dostupností – autem jste v centru Prahy do 30 minut, vlakem z Kolovrat za 20 minut. Do Kolovrat je to 10 minut jízdy autem.
Technické parametry a infrastruktura
Elektřina: 220 V i 380 V (přívod do spodní části)
Voda: Vlastní vrt i kopaná studna
Odpad: Septik o kapacitě 1,5 m³
Oplocený pozemek s vrátky přímo k výběhu koní
Zděný bazén 5 × 4 m (připravený k obnově)
Možnost trvalého pobytu – evidenční číslo
Komfortní zázemí a občanská vybavenost
Obec Babice nabízí obchod s potravinami, kavárnu, hospodu, tenisové kurty, rugbyové hřiště i celoroční plavecký bazén ve škole Open Gate. Jedná se o lokalitu, která nabízí nejen klid a přírodu, ale i pohodlné zázemí pro každodenní život.
Možnosti výstavby dle vašich představ
V galerii naleznete inspiraci pro výstavbu moderního domu s otevřeným loftovým konceptem a pochozí střechou, která může sloužit jako terasa. Alternativou je tradiční řešení se sedlovou střechou a dalším pokojem, které může lépe vyhovovat rodinnému bydlení.
Prohlídky a kontakt
Prohlídky probíhají výhradně v sobotu odpoledne, pouze po předchozí domluvě. Vyhrazeno pro vážné zájemce.
Takové příležitosti se objevují zřídka – pozemek s výjimečnou atmosférou a potenciálem pro moderní celoroční bydlení. Nečekejte, až ho objeví někdo jiný – kontaktujte nás ještě dnes.
| Cena: | 3 099 355 Kč |
| Plocha: | 470 m² |
| Číslo zakázky: | REALITYMIX-00865 |
Podrobné informace
- Celková plocha: 470 m²
- Druh pozemku: pro bydlení
- Charakter okolní zástavby: obytná
Právní rádce
-
Detail
V tomto článku shrneme nejdůležitější věci, které byste si měli promyslet, pokud se chystáte prodat svou nemovitost a chcete, abyste s kupujícím nemusel následně řešit vzniklé problémy.
Jako prodávající nesete rizika spojená nejen se samotným obchodem, ale i se stavem nemovitosti v době prodeje a pro minimalizaci rizik, je dobré se zamyslet nad uvedenými oblastmi.
-
Detail
Realitní makléř má své nezastupitelné místo v realitním obchodu. Realitním makléřem nemyslím nevzdělané jelito, které absolvovalo dvoudenní školení a ví, jak se nahraje inzerát na inzertní portál.
Realitním makléřem, který se Vám skutečně vyplatí, je zkušený profesionál, který je schopen Vám dobře poradit jak prodat za co nejvíc a s nejmenším rizikem a hlavně je Vás schopen obratně provést celým realitním obchodem.