Prodej - pozemek pro bydlení, 1 071 m²
Svitavy
2 166 Kč (za m2)Prodej - pozemek pro bydlení, 1 071 m²
Svitavy
Nabízím ke koupi pozemek se základovou deskou, stavebním povolením a projektem v obci Biskupice
Pozemek tvoří tři samostatné parcely. Součástí prodeje je stavební povolení včetně projektové dokumentace.
Na pozemek vede mostek přes místní potok s hlubším korytem. Dle vyjádření obce byl mostek vybudován při stavbě přilehlé silnice a podle informací z SOA Litomyšl k němu nejsou evidováni žádní vlastníci.
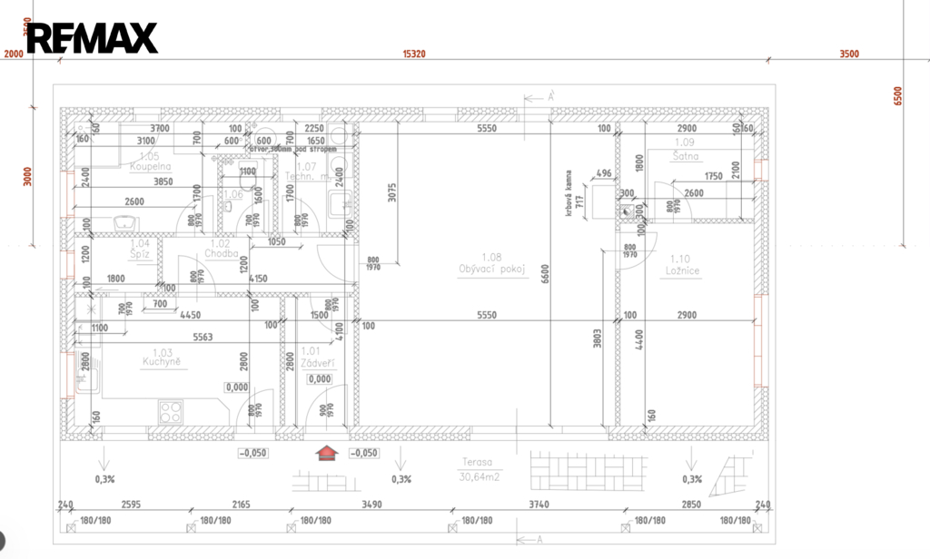
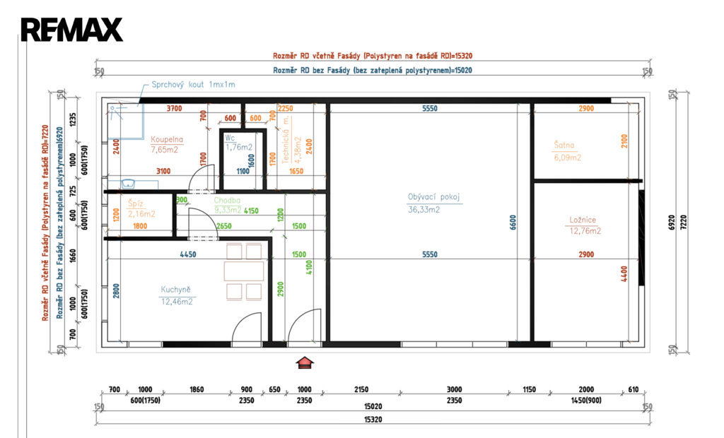
Na jedné z parcel je již vybudována základová deska pro plánovaný záměr rodinného domu - dřevostavbu o zastavěné ploše 93 m².
Dům bude pravidelného půdorysného tvaru obdélníku o rozměrech 15,32 x 9,22 m, zastřešený bude sedlovou střechou s valbami s výškou hřebene 5,00 m od úrovně podlahy domu nad obytnou částí a pultovou střešní konstrukcí nad terasou. Dům bude připojen na elektřinu, vodovod a splaškovou kanalizaci stávajícími přípojkami původního domu č.p. 21, který byl zbourán. Vytápění je řešeno tepelným čerpadlem vzduch/voda a krbovými kamny. Dešťové vody z domu budou svedeny do retenčních nádrží s přepadem do vsaku na pozemku stavebníka.
Opěrná zeď: Nová opěrná zeď z betonových tvárnic ztraceného bednění tl. 300 a 400 mm. Zeď bude délky 19,032 m a maximální výšky 2,5 m od upraveného terénu. Založena bude na betonovém základu.
Zahradní domek: Novostavba dřevěného skladu nářadí a zahradní techniky. Sklad bude pravidelného půdorysného tvaru obdélníku o rozměrech 5 x 5,635 m, zastřešen bude sedlovou střešní konstrukcí s výškou hřebene 3,2 m od úrovně podlahy skladu.
Kryté parkovací stání: Novostavba přístřešku pro kryté stání osobního automobilu. Přístřešek bude přistavěný k sousednímu objektu zahradního domku, bude dřevěné konstrukce půdorysných rozměrů 3,5 x 5,5 mm neopláštěný a zastřešený pultovou střešní konstrukcí maximální výšky cca 2,6 m.
Dispozici a využití jednotlivých místností je možné upravit dle potřeb budoucího majitele. Dům je situován na hranici svahu, čímž se maximálně využívá plocha před domem.
Lokalita:
Obec Biskupice se nachází v okrese Svitavy v Pardubickém kraji, v severozápadní části historické Moravy. Leží přibližně 330 m n. m. v úrodné oblasti zvané Malá Haná, rozprostírající se mezi západní částí Drahanské vrchoviny a východním úpatím Českomoravské vrchoviny.
Biskupice leží 17 km jižně od Moravské Třebové, 20 km severně od Boskovic a 4 km východně od Jevíčka. Vzdálenost do Brna činí 63 km, do Olomouce 52 km a k hranicím s Polskem přibližně 80 km.
První písemná zmínka o obci pochází již z roku 1262, kdy byly Biskupice majetkem olomouckého biskupství.
V obci má historickou tradici palírna ovoce. Již roku 1716 dala vrchnost postavit poblíž zámku panskou palírnu. Na tento fakt každoročně navazuje festival slivovice nazvaný Biskupický kaléšek.
V centru obce se nachází zámek postavený roku 1713 na místě původní tvrze, které je dnes v soukromých rukou. Prodávající si vyhrazuje právo vybrat kupujícího na základě jím zvolených kritérií.
| Cena: | 2 166 Kč / (za m2) |
| Poznámka: | Včetně provize RK a právního servisu |
| Plocha: | 1071 m² |
| Číslo zakázky: | REALITYMIX-426694 |
Podrobné informace
- Celková plocha: 1071 m²
- Druh pozemku: pro bydlení
- Inženýrské sítě: vodovod, kanalizace, elektřina
- Umístění objektu: klidná část obce
- Doprava: silnice, autobus
- Komunikace: asfaltová
- Energetický ukazatel podle vyhlášky: č. 264/2020 Sb.
Právní rádce
-
Detail
V tomto článku shrneme nejdůležitější věci, které byste si měli promyslet, pokud se chystáte prodat svou nemovitost a chcete, abyste s kupujícím nemusel následně řešit vzniklé problémy.
Jako prodávající nesete rizika spojená nejen se samotným obchodem, ale i se stavem nemovitosti v době prodeje a pro minimalizaci rizik, je dobré se zamyslet nad uvedenými oblastmi.
-
Detail
Realitní makléř má své nezastupitelné místo v realitním obchodu. Realitním makléřem nemyslím nevzdělané jelito, které absolvovalo dvoudenní školení a ví, jak se nahraje inzerát na inzertní portál.
Realitním makléřem, který se Vám skutečně vyplatí, je zkušený profesionál, který je schopen Vám dobře poradit jak prodat za co nejvíc a s nejmenším rizikem a hlavně je Vás schopen obratně provést celým realitním obchodem.