Prodej - pozemek pro bydlení, 853 m²
Praha-západ
9 000 000 KčProdej - pozemek pro bydlení, 853 m²
Praha-západ
Březová u Zvole, stavební pozemek 853 m2
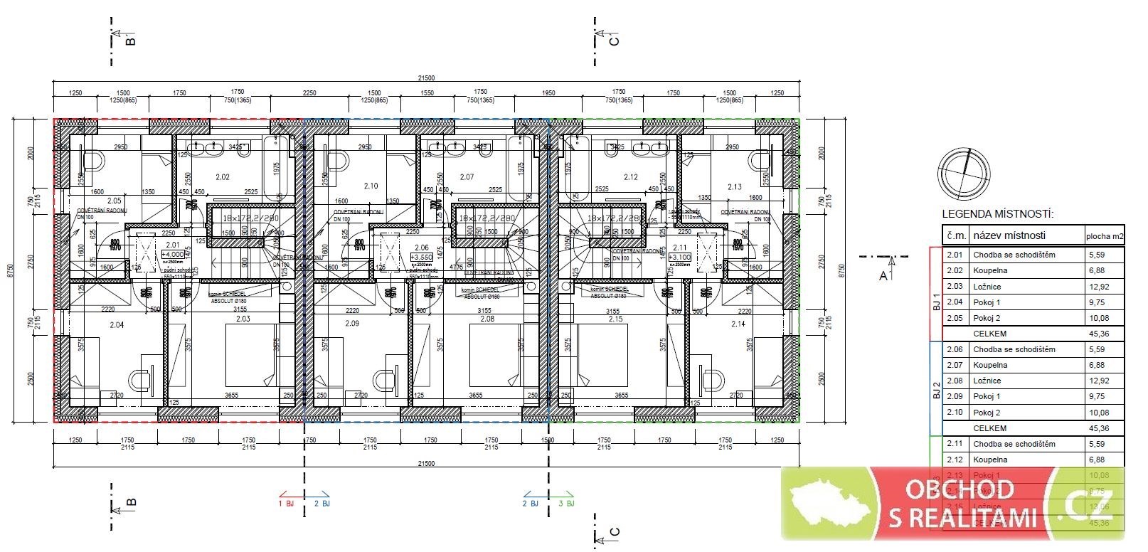
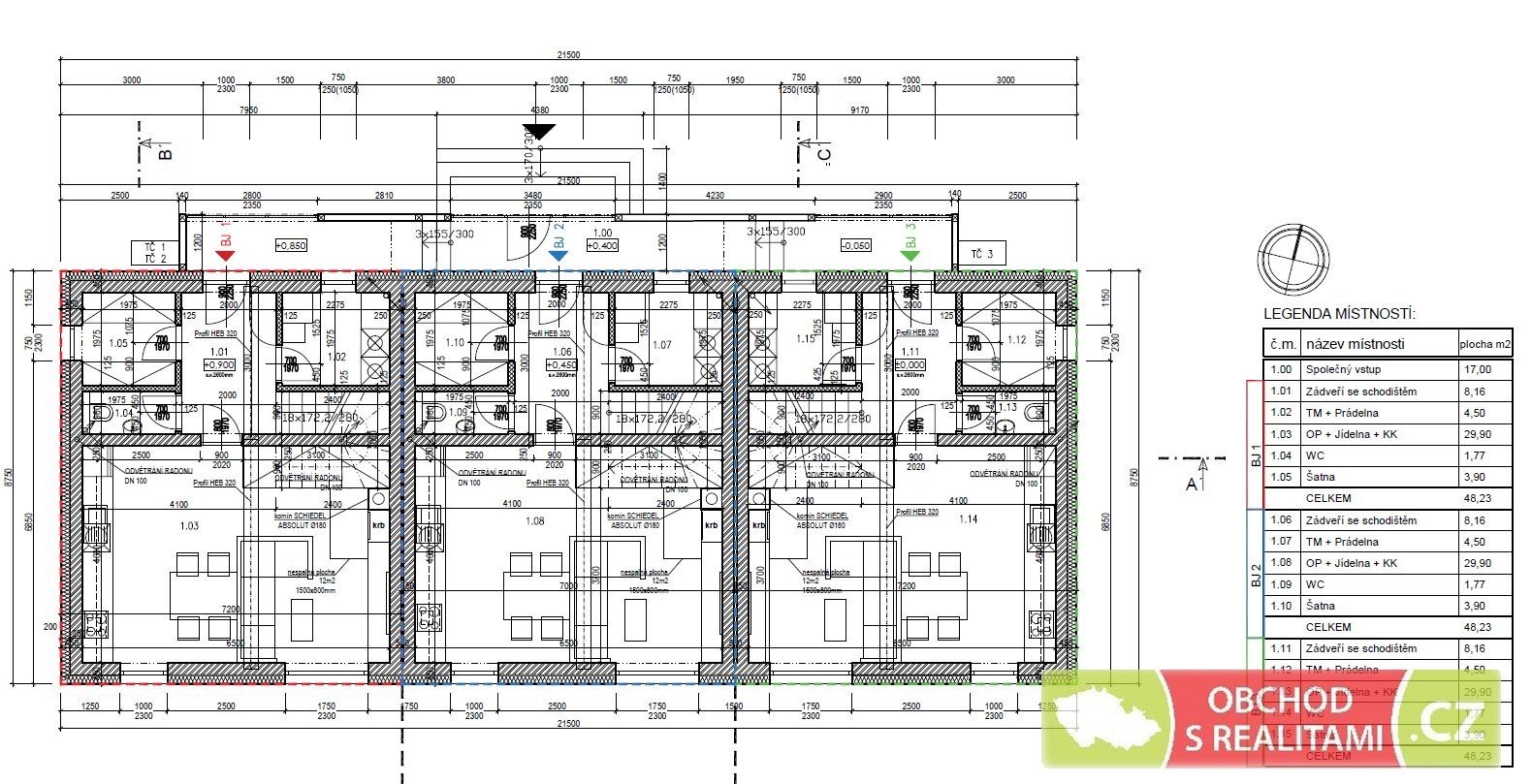
Každá z jednotek má dispozici 4+KK s užitnou plochou 94 m2. V dispozičním uspořádání každého z bytů nechybí technická místnost nebo šatna! Půdorysy s legendou i pohledy přikládáme.
DSP, včetně vyjádření dotčených orgání, k dispozici.
Nejedná se o novou zástavbu na tzv. poli nebo chatovou osadu s malými pozemky a nízkou mírou soukromí.
Právě poloha pozemku je ojedinělou nabídkou v této lokalitě, jedná se o proluku ve stávající zástavbě!
Pozemek má optimální orientaci, když vstup na pozemek je ze severu a zahrada je orientována na jih.
Lokalita je oblíbenou pro nízký provoz aut (v obci Oleško silnice končí, pak už je jen stezka pro pěší nebo jízdní kola dolů k Vltavě, tranzitní doprava je tak v místě vyloučena), pohyb jen místních občanů nebo v sezóně chatařů. V okolí nejsou žádné negativní stavby nebo provozy, jen rodinné bydlení, lesy, pole nebo pastviny pro koně.
Přes náves projíždí autobus, výstupní i nástupní zastávky jsou tak jen desítky metrů od pozemku. Aktuální autobusové spojení je na vlakovou stanici Vrané na Vltavou nebo přes Dolní Břežany na metro trasy C Kačerov (v budoucnu lze očekávat spojení na metro trasy D Písnice).
U pozemku se nachází vodovodní řad, v rámci projektu je povolena přípojka!
U společnosti ČEZ bylo zažádáno o přípojku a uhrazen poplatek ve výši 50% za připojení.
Na vaše případné dotazy rád odpovím telefonicky / emailem nebo se můžeme sejít na místě.
| Cena: | 9 000 000 Kč |
| Plocha: | 853 m² |
| Číslo zakázky: | REALITYMIX-976013 |
Podrobné informace
- Celková plocha: 853 m²
- Druh pozemku: pro bydlení
- Inženýrské sítě: vodovod, elektřina
Právní rádce
-
Detail
V tomto článku shrneme nejdůležitější věci, které byste si měli promyslet, pokud se chystáte prodat svou nemovitost a chcete, abyste s kupujícím nemusel následně řešit vzniklé problémy.
Jako prodávající nesete rizika spojená nejen se samotným obchodem, ale i se stavem nemovitosti v době prodeje a pro minimalizaci rizik, je dobré se zamyslet nad uvedenými oblastmi.
-
Detail
Realitní makléř má své nezastupitelné místo v realitním obchodu. Realitním makléřem nemyslím nevzdělané jelito, které absolvovalo dvoudenní školení a ví, jak se nahraje inzerát na inzertní portál.
Realitním makléřem, který se Vám skutečně vyplatí, je zkušený profesionál, který je schopen Vám dobře poradit jak prodat za co nejvíc a s nejmenším rizikem a hlavně je Vás schopen obratně provést celým realitním obchodem.