Prodej - pozemek pro bydlení, 827 m²
Pardubice
5 900 000 KčProdej - pozemek pro bydlení, 827 m²
Pardubice
Prodej stavebního pozemku 827 m2 včetně stavebního povolení a projektu v obci Býšť
Aktuálně je k pozemku vydáno stavební povolení pro výstavbu rodinného domu na který je zpracovaný projekt. Povolení i projekt jsou zahrnuty v ceně prodeje .
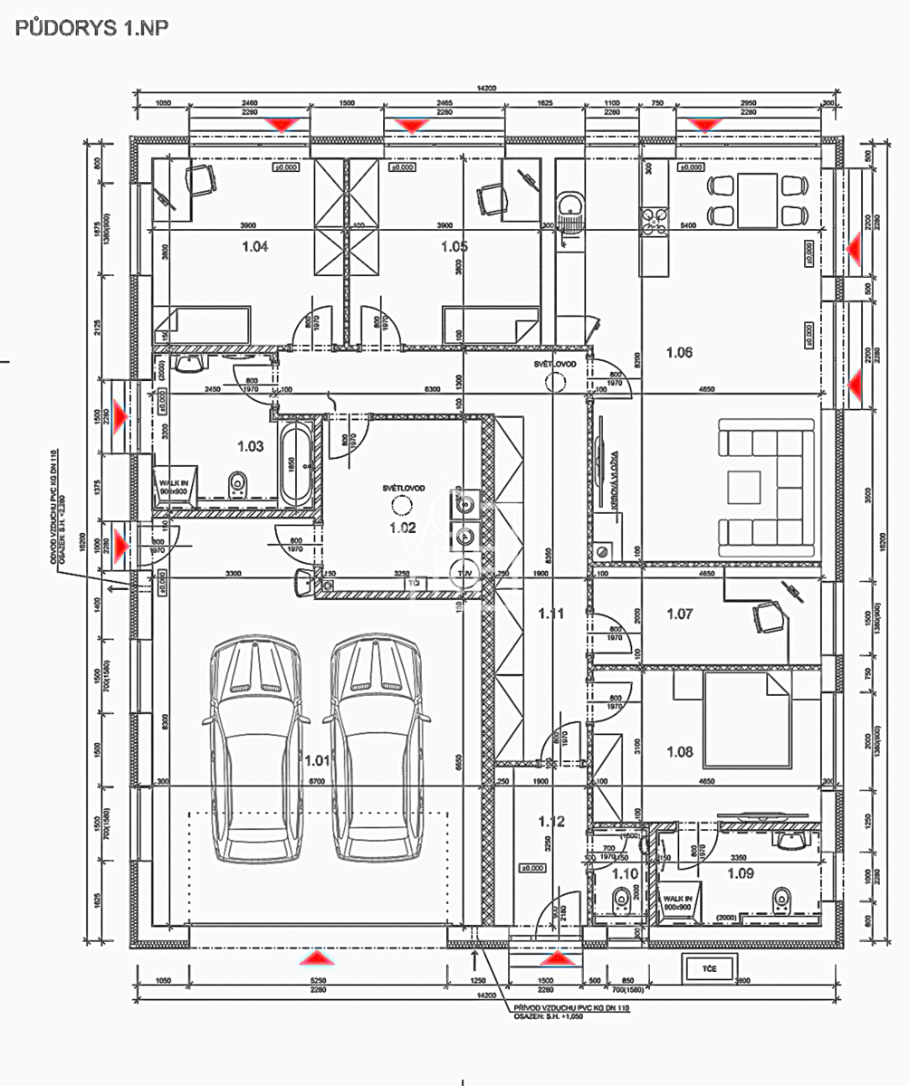
•Projekt RD typu Bungalov
Užitná plocha je navrhnuta na celkových 200 m2, včetně garáže o rozloze 50 m2.
•Dispozice RD: centrální chodba, ložnice s koupelnou a WC, pracovna, prostorný obývací pokoj s krbem spojený s kuchyní, dva dětské pokoje, koupelna s vanou, sprchovým koutem a WC, technická místnost a již zmíněná garáž.
Výhoda tedy je, že můžete okamžitě začít s výstavbou a ušetříte si tak spoustu času a nervů s povolením a úřady.
Projektová dokumentace včetně stavebního povolení jsou zahrnuty v kupní ceně.
-Celková plocha pozemku je 827 m².
-Pozemek je napojen na elektřinu, plynovod, vodovod a kanalizaci.
Pozemek je situován v klidné lokalitě s jižní expozicí.
V blízkosti se nachází veškerá občanská vybavenost, včetně obchodů, škol a zdravotnických zařízení. Jde o ideální lokalitu s dostupností 10 - 20 minut do měst jako jsou například Hradec Králové, nebo Pardubice.
V případě zájmu o prohlídku mě neváhejte kontaktovat.
| Cena: | 5 900 000 Kč |
| Plocha: | 827 m² |
| Číslo zakázky: | REALITYMIX-0138 |
Podrobné informace
- Celková plocha: 827 m²
- Druh pozemku: pro bydlení
- Inženýrské sítě: vodovod, kanalizace, elektřina
- Umístění objektu: klidná část obce
- Doprava: vlak, dálnice, silnice, autobus
- Komunikace: asfaltová
- Energetický ukazatel podle vyhlášky: č. 264/2020 Sb.
Právní rádce
-
Detail
V tomto článku shrneme nejdůležitější věci, které byste si měli promyslet, pokud se chystáte prodat svou nemovitost a chcete, abyste s kupujícím nemusel následně řešit vzniklé problémy.
Jako prodávající nesete rizika spojená nejen se samotným obchodem, ale i se stavem nemovitosti v době prodeje a pro minimalizaci rizik, je dobré se zamyslet nad uvedenými oblastmi.
-
Detail
Realitní makléř má své nezastupitelné místo v realitním obchodu. Realitním makléřem nemyslím nevzdělané jelito, které absolvovalo dvoudenní školení a ví, jak se nahraje inzerát na inzertní portál.
Realitním makléřem, který se Vám skutečně vyplatí, je zkušený profesionál, který je schopen Vám dobře poradit jak prodat za co nejvíc a s nejmenším rizikem a hlavně je Vás schopen obratně provést celým realitním obchodem.
Mapa
Podobné nemovitosti
Prodej - pozemek pro bydlení, 796 m²
Kasárenská, Pardubice
4 250 000 Kč
Prodej - pozemek pro bydlení, 800 m²
Na Okrajích, Spojil, Pardubice
6 290 000 Kč
Prodej - pozemek pro bydlení, 950 m²
Dubany, Pardubice
5 590 000 Kč
Prodej - pozemek pro komerční výstavbu, 946 m²
Palackého, Dašice, Pardubice
3 599 000 Kč