Prodej - pozemek pro bydlení, 6 002 m²
Blansko
3 990 000 KčProdej - pozemek pro bydlení, 6 002 m²
Blansko
prodej stavebního pozemku v Deštné, místní část Rumberk: celkem 6.002 m2
Dispozice, poloha
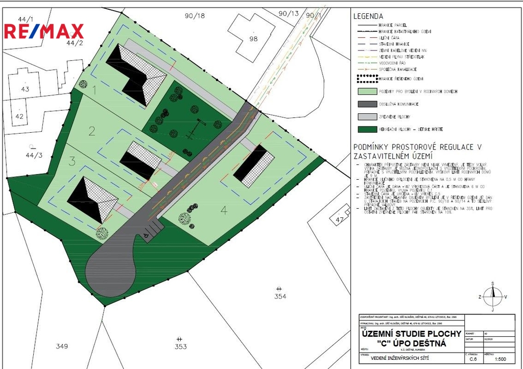
Celková plocha nabízeného souboru 2 pozemků je 6.002 m2, nyní jsou pozemky definované jako trvalý travní porost a jedná se o mírně svažité udržované travnaté plochy, které jsou volně přístupné z veřejné komunikace. Nabízené pozemky jsou v souladu s územním plánem obce součástí tzv. Plochy "C" (funkční vymezení Br), na kterou byla vypracována samostatná studie a na základě které zde územní plán umožňuje individuální bydlení v rodinných domcích se zahradami. Předpokládají se zde až 4 rodinné domy s výměrou cca 1 000 m2 na pozemcích s označením 1, 2, 3, 4. Na pozemku č.1 již započala stavba domu. Lokalita „C“ je v jihovýchodní části obce Deštná na mírném jihovýchodním svahu, který se dále láme do údolí, kudy protéká potok Zavadilka. Ze západní strany navazuje na plochu rekreační. Dále ji obklopují plochy zeleně na jihu a plochy obytné na severu. Jihovýchodní hranice pozemku je nově vytyčená.
Rozsah regulace zástavby a napojení na IS
Charakter přípustné zástavby není nijak vymezený. Výška zástavby je možná jednopodlažní s využitelným podkrovím, případně s využitelným podsklepením. Výškový limit rodinných domů je 9 m. Navržený vodovod v řešené lokalitě navazuje na stávající rozvod.
Odkanalizování jednotlivých RD bude řešeno individuálními systémy likvidace odpadních vod domovními čistírnami se zaústěním do společné kanalizace, případně do vsaku.
Vedení VN je vedeno v zemi, souběžně s místní komunikací. Toto vedení bude prodlouženo dle výkresové části. Připojení nových odběrů plynu je navrženo rozšířením stávající sítě navázáním na stávající soustavu v úrovni STL. Rozvod STL, VN a VO bude v řešeném území umístěn výhradně v plochách veřejných prostranství.
Inž. sítě / technologie
Veškeré sítě - veřejný vodovod, plyn, elektřina a dešťová kanalizace se nacházejí na hranici pozemku v příjezdové komunikaci.
Lokalita
V obci je ZŠ (1.st.), MŠ, obchod, restaurace, sokolovna. Veřejná doprava je zajištěna v rámci IDS (bus), Letovice 5 km, Brno 53 km. V okolí jsou hluboké lesy, zurčící potoky, cyklostezky. Pro svoji pěknou polohu a přírodní scenérie je zdejší kraj velmi vyhledávaný. Dominantou je místní kostel sv. Petra a Pavla. Fungují zde spolky dobrovolných hasičů, myslivců a včelařů.
Možné využití
Nemovitosti nabízejí využití pro bydlení v rodinných domech. Více info u makléře.
Přijeďte se podívat. Prodávající si vyhrazuje právo vybrat kupujícího na základě jím zvolených kritérií.
| Cena: | 3 990 000 Kč |
| Poznámka: | včetně odměny zprostředkovatele, cena je k jednání |
| Plocha: | 6002 m² |
| Číslo zakázky: | REALITYMIX-316531 |
Podrobné informace
- Celková plocha: 6002 m²
- Druh pozemku: pro bydlení
- Umístění objektu: klidná část obce
- Energetický ukazatel podle vyhlášky: č. 264/2020 Sb.
Právní rádce
-
Detail
V tomto článku shrneme nejdůležitější věci, které byste si měli promyslet, pokud se chystáte prodat svou nemovitost a chcete, abyste s kupujícím nemusel následně řešit vzniklé problémy.
Jako prodávající nesete rizika spojená nejen se samotným obchodem, ale i se stavem nemovitosti v době prodeje a pro minimalizaci rizik, je dobré se zamyslet nad uvedenými oblastmi.
-
Detail
Realitní makléř má své nezastupitelné místo v realitním obchodu. Realitním makléřem nemyslím nevzdělané jelito, které absolvovalo dvoudenní školení a ví, jak se nahraje inzerát na inzertní portál.
Realitním makléřem, který se Vám skutečně vyplatí, je zkušený profesionál, který je schopen Vám dobře poradit jak prodat za co nejvíc a s nejmenším rizikem a hlavně je Vás schopen obratně provést celým realitním obchodem.