Prodej - dům/vila, 92 m²
Frymburk, Český Krumlov
6 400 000 KčProdej - dům/vila, 92 m²
Frymburk, Český Krumlov
Řadový, rodinný dům Frymburk
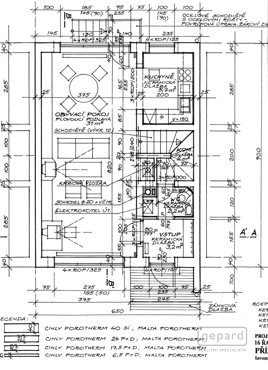
1/ Přízemí: zádveří, WC, obývací pokoj s jídelnou, kuchyně.
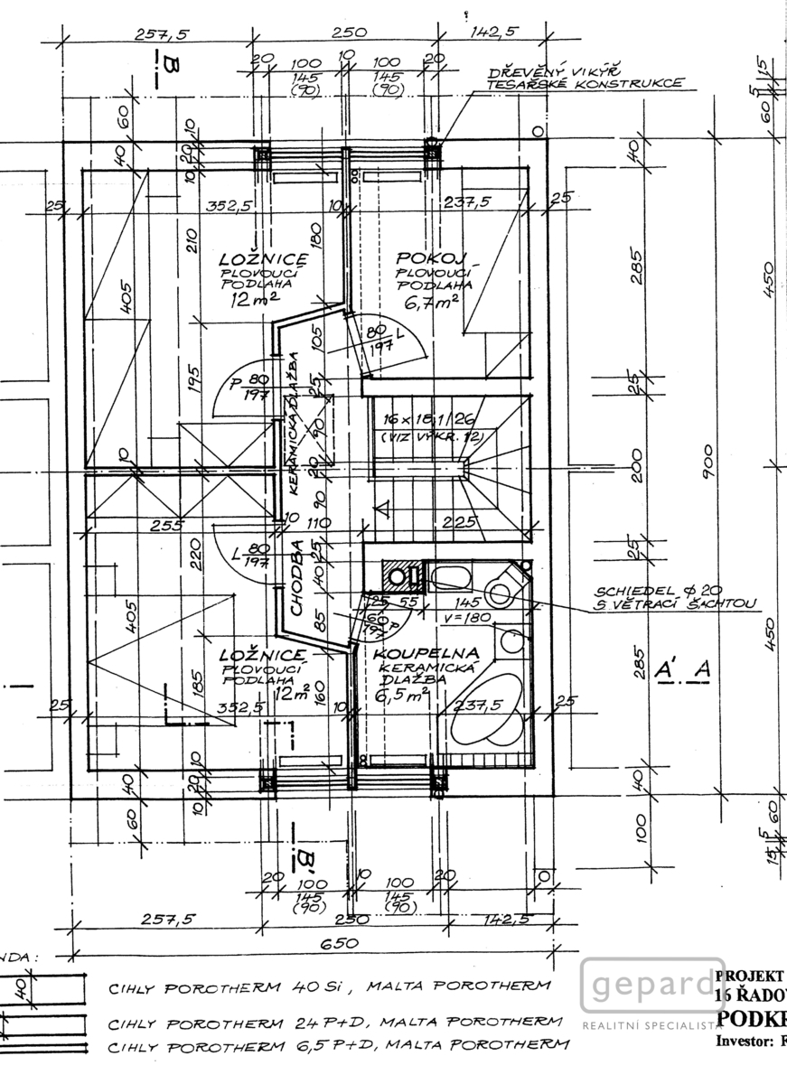
2/ Patro (obytné podkroví): chodba, 3x pokoj, koupelna+WC.
Zahrada: před domem a vzadu za domem.
Plochy:
- zastavěná plocha RD: 59 m2
- podlahová plocha: 92 m2
- obestavěný prostor: 430 m3
- celkem pozemky: 158 m2
Dále: moderní kuchyně komplet vybavená, plovoucí podlahy+dlažby, topení radiátory, regulace termostat, topení elektrokotel, ohřev TUV el.akum. zásobník, krbová kamna obývák, vest. skříně, obvodové zdi POROTRHERM 40 Si, dveře masiv+obložky, schodiště ve dřevě, přízemí 1x WC, patro 1x koupelna s WC a vana, krytina KM BETA, střešní okna, okna izolační plast, stínící žaluzie, závěsy sítě-voda, elektřina, kanalizace, strop nad podkrovím a krov je zateplen minerální vatou 16 cm, parkování na pozemku i v klidné ulici před domem.
IHNED K PŘEVZETÍ.
Městys Frymburk – veškeré občanská vybavenost, TOP rekreační a vyhledávaná oblast přímo u Lipenského jezera, nezátopová oblast, pohodlné spojení Český Krumlov, České Budějovice, atd..
Dobrý stav – můžeme doporučit – neváhejte, sezona se blíží a Lipno je Lipno …..
HYPO pomůžeme zajistit.
Velmi vhodné k celoroční rekreaci.
PROHLÍDKY domu naplánované na pátek dne 20.03.2026 v době od 14.00 – 17.00 hod., případně po individuální dohodě.
| Cena: | 6 400 000 Kč |
| Poznámka: | Cena je včetně provize RK |
| Datum k nastěhování: | 25.03.2026 |
| Číslo zakázky: | REALITYMIX-12063 |
Podrobné informace
- Poloha objektu: řadový
- Druh objektu: cihlová
- Stav objektu: velmi dobrý
- Počet podlaží objektu: 2
- Typ domu: patrový
- Zastavěná plocha: 59 m²
- Plocha parcely: 158 m²
- Užitná plocha: 92 m²
- Umístění objektu: klidná část obce
- Doprava: vlak, silnice, autobus
- Komunikace: asfaltová
- Elektřina: Elektro - 230 V, Elektro - 400 V
- Voda: Voda - dálkový vodovod
- Odpad: Kanalizace
- Energetická náročnost budovy: G - Mimořádně nehospodárná
- Energetický ukazatel podle vyhlášky: č. 264/2020 Sb.
Právní rádce
-
Detail
V tomto článku shrneme nejdůležitější věci, které byste si měli promyslet, pokud se chystáte prodat svou nemovitost a chcete, abyste s kupujícím nemusel následně řešit vzniklé problémy.
Jako prodávající nesete rizika spojená nejen se samotným obchodem, ale i se stavem nemovitosti v době prodeje a pro minimalizaci rizik, je dobré se zamyslet nad uvedenými oblastmi.
-
Detail
Realitní makléř má své nezastupitelné místo v realitním obchodu. Realitním makléřem nemyslím nevzdělané jelito, které absolvovalo dvoudenní školení a ví, jak se nahraje inzerát na inzertní portál.
Realitním makléřem, který se Vám skutečně vyplatí, je zkušený profesionál, který je schopen Vám dobře poradit jak prodat za co nejvíc a s nejmenším rizikem a hlavně je Vás schopen obratně provést celým realitním obchodem.