Prodej - dům/vila, 190 m²
Brozánky, Mělník
15 490 000 KčProdej - dům/vila, 190 m²
Brozánky, Mělník
K prodeji hrubá stavba dvojdomku, 2x 5+kk, pozemek 1224m2, Brozánky u Mělníka.
Nyní se nabízíme k prodeji celou stavbu ve fázi hrubé stavby, včetně oken a ve stavu dle fota v galerii.
Rodinný dům je nyní ve výstavbě s plánovaným termínem dokončení podzim 2026.
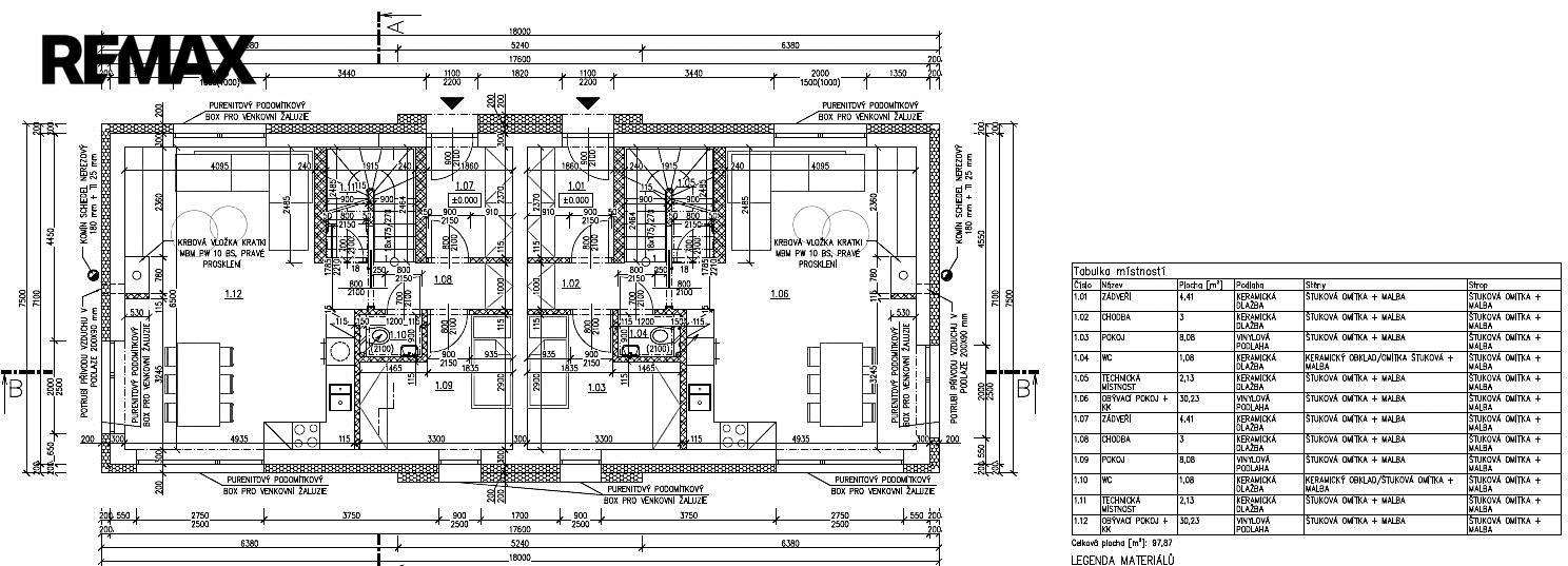
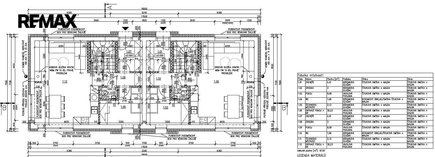
Dvojdomek - každý část v dispozici 5+kk + šatna o užitné ploše 95m2 + pozemek / zahrada o výměře cca 612m2.
Pozemek je mírně svažitý, osázený vzrostlými ovocnými stromy. Ve spodní části je ukončen Hořínským potokem, který navazuje na řeku Labe – místo s jedinečnou atmosférou a možností přímého vstupu k vodě.
Rodinný dům není v záplavové oblasti.
Dispozice:
5+kk + šatna o užitné ploše 95m2 + pozemek / zahrada o výměře cca 612m2
1NP se nachází zádveří s chodbou, ze které je vchod do prostorného slunného obývacího pokoje s navazující jídelnou a kuchyní se vstupem francouzskými dveřmi na terasu a zahradu s krásným výhledem do zeleně Hořínského parku a na Mělnický zámek. Dále je na patře k dispozici samostatný pokoj, koupelna se sprchou, WC a technická místnost.
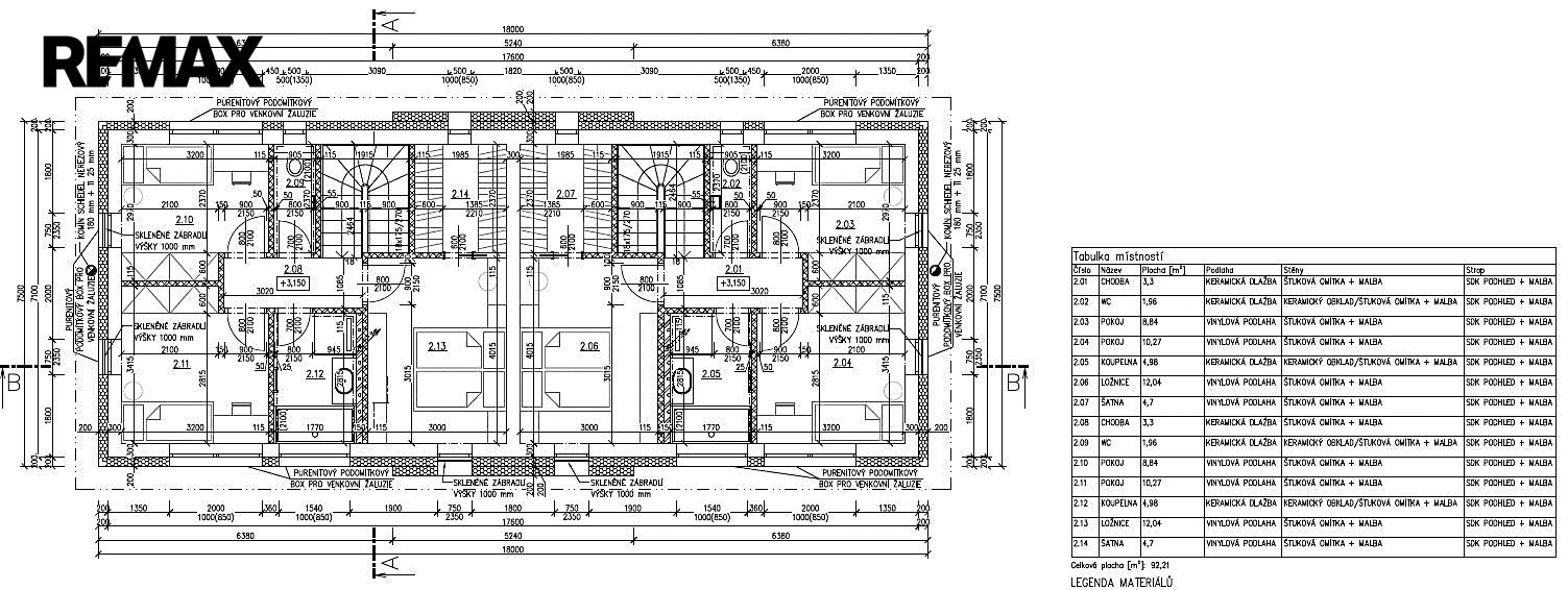
Schodištěm se dostáváme do 2NP, kde je hala, tři samostatné, slunné pokoje, šatna, koupelna s vanou, sprchou a toaletou.
Nad stropem je prostorná půda, která může sloužit jako praktický úložný prostor.
Stavba po dokončení: nízkoenergetické, zděné, zateplen 15cm, kvalitní laminátové podlahy a dlažba, schody obložené dřevem.
Podlahové vytápění ve všech místnostech a ohřev teplé vody zajišťován v kombinovaném režimu tepelné čerpadlo, které disponuje rovněž funkcí klimatizace. Příprava na bezpečností venkovní žaluzie.
Na vyžádání možnost instalace krbové vložky pro přípravu krbových kamen.
Parkovací stání pro dvě auta bude zajištěno na pozemku a opatřeno pojezdovými vraty na elektrický pohon. Pozemek bude oplocen.
Veškerá povolení a stavební dokumentace je na vyžádání k dispozici. Možnost si zvolit zařizovací předměty jako je podlahová krytina, interiérové dveře apod.
Financování je postupné dle výstavby (standardní postupy). Možnosti financování hypotékou, zajišťujeme případné zařízení a schválení.
Ve fotodokumentaci jsou ilustrativní vizualizace budoucí stavby.
Brozánky jsou vesnice a je částí obce Hořín. Nachází se jeden kilometr města Mělník. Vesnicí protéká Hořínský potok, který je součástí Hořínského parku a je ideálním místem pro bydlení, aktivní odpočinek a relaxaci.
Občanská vybavenost (škola, školka, lékaři, obchod ve vedlejší obci Hořín (1km) nebo vše ve městě Mělník (1km).
Rozsáhlé možnosti turistiky, cykloturistiky a dalších sportovních aktivit.
Spojení do Mělníka a Praha BUS nebo vlakem. Autem do centra 35minut.
Tento dům nabízí moderní komfort, pozemek s atmos Prodávající si vyhrazuje právo vybrat kupujícího na základě jím zvolených kritérií.
| Cena: | 15 490 000 Kč |
| Poznámka: | cena včetně provize, právního a finančního servis |
| Datum k nastěhování: | 10.09.2025 |
| Číslo zakázky: | REALITYMIX-434435 |
Podrobné informace
- Poloha objektu: řadový
- Druh objektu: cihlová
- Stav objektu: ve výstavbě (hrubá stavba)
- Počet podlaží objektu: 2
- Typ domu: patrový
- Zastavěná plocha: 190 m²
- Plocha parcely: 1224 m²
- Užitná plocha: 190 m²
- Umístění objektu: klidná část obce
- Doprava: vlak, dálnice, silnice, MHD, autobus
- Komunikace: asfaltová
- Elektřina: Elektro - 230 V, Elektro - 400 V
- Voda: Voda - dálkový vodovod
- Telekomunikace: Internet
- Odpad: Kanalizace
- Ostatní rozvody: Kabelové rozvody
- Energetická náročnost budovy: B - Velmi úsporná
- Energetický ukazatel podle vyhlášky: č. 264/2020 Sb.
Právní rádce
-
Detail
V tomto článku shrneme nejdůležitější věci, které byste si měli promyslet, pokud se chystáte prodat svou nemovitost a chcete, abyste s kupujícím nemusel následně řešit vzniklé problémy.
Jako prodávající nesete rizika spojená nejen se samotným obchodem, ale i se stavem nemovitosti v době prodeje a pro minimalizaci rizik, je dobré se zamyslet nad uvedenými oblastmi.
-
Detail
Realitní makléř má své nezastupitelné místo v realitním obchodu. Realitním makléřem nemyslím nevzdělané jelito, které absolvovalo dvoudenní školení a ví, jak se nahraje inzerát na inzertní portál.
Realitním makléřem, který se Vám skutečně vyplatí, je zkušený profesionál, který je schopen Vám dobře poradit jak prodat za co nejvíc a s nejmenším rizikem a hlavně je Vás schopen obratně provést celým realitním obchodem.