Prodej - pozemek pro bydlení, 2 633 m²
Jeníkovice, Hradec Králové
5 790 000 KčProdej - pozemek pro bydlení, 2 633 m²
Jeníkovice, Hradec Králové
Prodej pozemku v Jeníkovicích
Pozemek se nachází kousek od centra obce, přímo u komunikace protínající obec. Je mírně svažitý, veškeré sítě jsou k dispozici u hranice pozemku s místní komunikací.
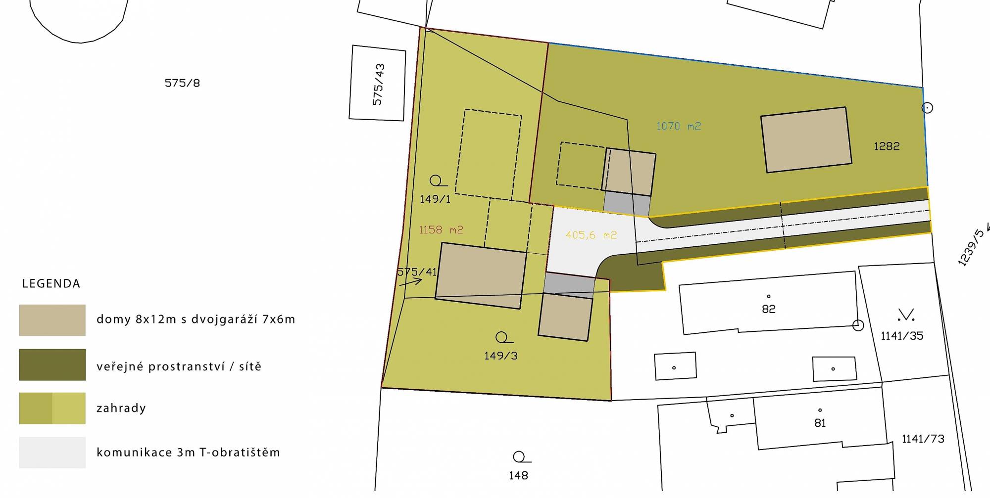
Pozemek je dle územního plánu určen k zastavění stavbou rodinného domu s maximálně dvěma nadzemními podlažími + podkroví. Vzhledem k jeho celkové ploše se nabízí i rozdělení na dvě stavební parcely, jehož možné řešení vám také nabízíme.
Obec Jeníkovice u Třebechovic pod Orebem je klidná vesnice s přibližně 520 obyvateli, která nabízí základní občanskou vybavenost včetně mateřské školy, pošty, obchodu s potravinami, knihovny a hostince. V obci fungují aktivní spolky a k dispozici je sportovní hřiště i kulturní zázemí. Dopravní spojení zajišťuje autobusová linka do Třebechovic a Hradce Králové, odkud je dostupná širší infrastruktura včetně základních a středních škol. Jeníkovice jsou ideálním místem pro rodinné bydlení v dosahu města, ale s venkovským klidem.
Více informací vám rádi sdělíme v realitní kanceláři.
| Cena: | 5 790 000 Kč |
| Plocha: | 2633 m² |
| Číslo zakázky: | REALITYMIX-342 |
Podrobné informace
- Celková plocha: 2633 m²
- Druh pozemku: pro bydlení
- Umístění objektu: centrum obce
- Doprava: silnice, autobus
- Občanská vybavenost: Školka, Pošta
Právní rádce
-
Detail
V tomto článku shrneme nejdůležitější věci, které byste si měli promyslet, pokud se chystáte prodat svou nemovitost a chcete, abyste s kupujícím nemusel následně řešit vzniklé problémy.
Jako prodávající nesete rizika spojená nejen se samotným obchodem, ale i se stavem nemovitosti v době prodeje a pro minimalizaci rizik, je dobré se zamyslet nad uvedenými oblastmi.
-
Detail
Realitní makléř má své nezastupitelné místo v realitním obchodu. Realitním makléřem nemyslím nevzdělané jelito, které absolvovalo dvoudenní školení a ví, jak se nahraje inzerát na inzertní portál.
Realitním makléřem, který se Vám skutečně vyplatí, je zkušený profesionál, který je schopen Vám dobře poradit jak prodat za co nejvíc a s nejmenším rizikem a hlavně je Vás schopen obratně provést celým realitním obchodem.