Prodej - pozemek, zemědělská půda, 39 246 m²
Zeměchy, Kralupy nad Vltavou, Mělník
4 195 000 KčProdej - pozemek, zemědělská půda, 39 246 m²
Zeměchy, Kralupy nad Vltavou, Mělník
Prodej podílu 1/2 pole 39 246 m², Kralupy nad Vltavou - Zeměchy
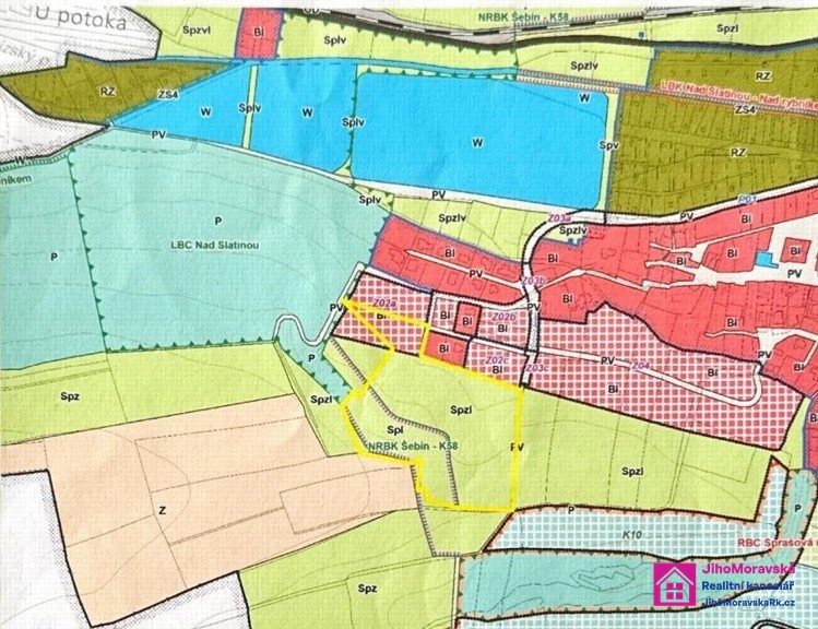
Jedná se o pozemky s parcelními čísly: 172/1 výměra 36.601 m2. druh pozemku – orná půda 172/2 výměra 924 m2. druh pozemku – ostatní plocha 172/3 výměra 1519 m2. druh pozemku – orná půda172/7 výměra 63 m2. druh pozemku – ostatní plocha172/10 výměra 119 m2. druh pozemku – ostatní plocha172/15 výměra 20 m2. druh pozemku – orná půdaVše zapsáno na LV č. 287, katastrální úúzemí Zeměchy u Kralup nad Vltavou.
Zaujala Vás tato nabídka? Máte zájem o prohlídku? Vám vyhovující termín prohlídky (den a čas) s kontakty na Vás (tel. číslo a e-mail) zasílejte na e-mail realitního makléře, formou odpovědi na tuto inzerci. Realitní makléř Vás následně bude telefonicky kontaktovat.
| Cena: | 4 195 000 Kč |
| Poznámka: | včetně poplatků, včetně provize, včetně právního servisu, cena k jednání |
| Plocha: | 39246 m² |
| Číslo zakázky: | REALITYMIX-00129 |
Podrobné informace
- Celková plocha: 39246 m²
- Druh pozemku: zemědělská
- Umístění objektu: centrum obce
Právní rádce
-
Detail
V tomto článku shrneme nejdůležitější věci, které byste si měli promyslet, pokud se chystáte prodat svou nemovitost a chcete, abyste s kupujícím nemusel následně řešit vzniklé problémy.
Jako prodávající nesete rizika spojená nejen se samotným obchodem, ale i se stavem nemovitosti v době prodeje a pro minimalizaci rizik, je dobré se zamyslet nad uvedenými oblastmi.
-
Detail
Realitní makléř má své nezastupitelné místo v realitním obchodu. Realitním makléřem nemyslím nevzdělané jelito, které absolvovalo dvoudenní školení a ví, jak se nahraje inzerát na inzertní portál.
Realitním makléřem, který se Vám skutečně vyplatí, je zkušený profesionál, který je schopen Vám dobře poradit jak prodat za co nejvíc a s nejmenším rizikem a hlavně je Vás schopen obratně provést celým realitním obchodem.