Prodej - dům/vila, 116 m²
Soběchleby, Teplice
13 800 000 KčProdej - dům/vila, 116 m²
Soběchleby, Teplice
Prodej novostavby rodinného domu se zahradou, 2684 m2, Krupka – Soběchleby, okres Teplice
Novostavba rodinného domu (dokončeno v listopadu 2023), bydlení v jednom podlaží, propojení interiéru se zastřešenou terasou, na niž navazuje rovinatý pozemek zahrady, řízení chodu domu prostřednictvím aplikace „chytrá domácnost“, blízkost dálnice D8, to jsou hlavní přednosti, které činí z tohoto domu s pozemkem zahrady ideální bydlení.
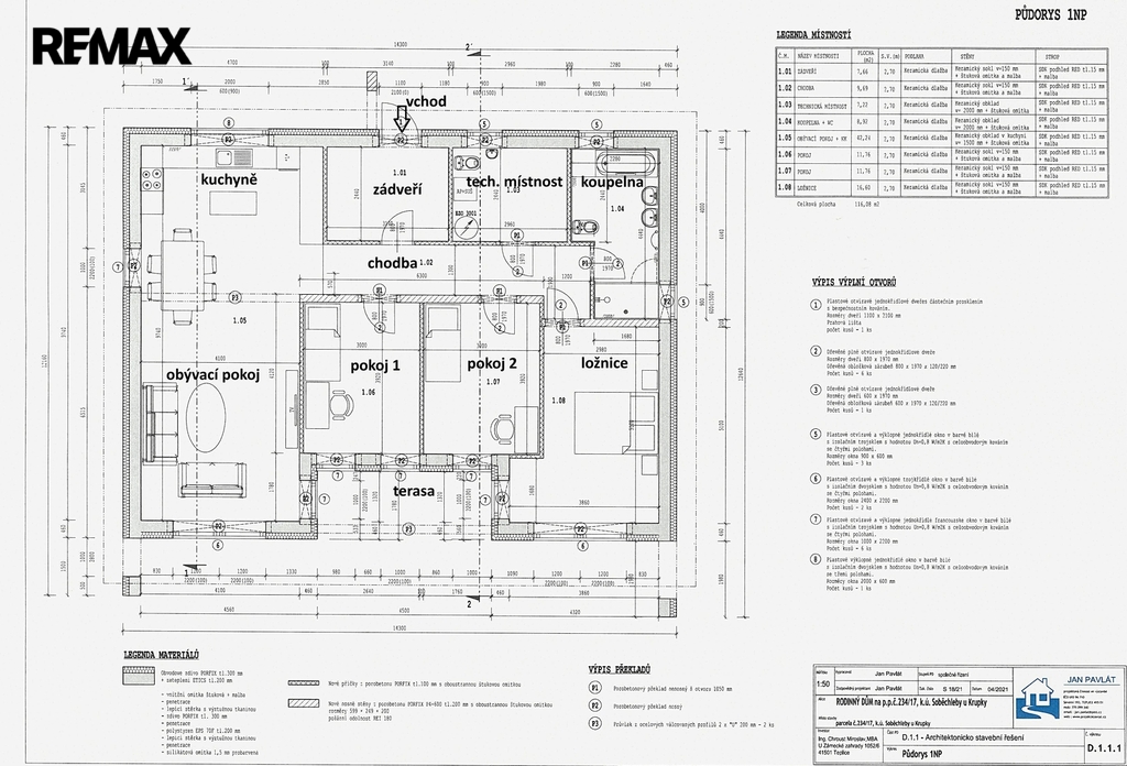
Interiér domu má dispozici 4+kk, propojením kuchyně s obývacím pokojem byl vytvořen velkorysý prostor o výměře 42 m2. Celková plocha domu je 118 m2, užitná plocha 116 m2 zahrnuje i 2x toaletu (1x s umyvadlem v technické místnosti), 1 x koupelnu s vanou i sprchovým koutem.
Dům je napojen na třífázovou elektřinu, voda je k dispozici z veřejného vodovodního řadu, odpadní vody jsou přečerpávány do veřejné kanalizace. Vytápěn je tepelným čerpadlem voda – vzduch, ohřev vody je zajištěn v kombinaci elektřina a tepelné čerpadlo, akumulační nádrž na vodu má objem 2x160 litrů, vytápění je ve všech prostorách podlahové. Energetický štítek B = velmi úsporná budova.
Okna jsou plastová s izolačními dvojskly, francouzská okna ve všech obytných místnostech se vstupem na společnou osvětlenou terasu. Podlahy jsou vinylové, v koupelně je položena dlažba.
Bydlení a soukromí zpříjemní řada „vychytávek“. Patří sem například externí žaluzie ve všech oknech ovládané přes aplikaci „chytrá domácnost“. Kuchyně je vybavena kvalitními spotřebiči Siemens nejvyšší řady, žulovou pracovní deskou, jídelní stůl s deskou z masivního dřeva. Příjemnou atmosféru vytváří LED podsvícení pracovních prostor a chodby. V obytných prostorách jsou na míru vyhotovené vestavěné skříně.
Prodávající dům přenechají novému vlastníku včetně vybavení nábytkem, spotřebiči, zahradního traktůrku, plechového zahradního domku o výměře 4,6m2, projektu na výstavbu samostatně stojící dvojgaráže.
Měsíční náklady na provoz domu: elektřina 4 200,- Kč měsíčně, spotřeba vody podle počtu bydlících osob, aktuálně se pohybuje v rozmezí 2 – 2 500,- Kč měsíčně.
Zahrada je rovinatá, v dolní části byla založena na základě projektu vytvořeného zahradním architektem, od domu je oddělena terasou s opěrnou zdí. Dešťová voda je svedena do retenční nádrže o objemu 8 m3 s rozvody po zahradě (4 přípojné body). Na zahradu navazuje louka se stavební uzávěrou, i do budoucna je tak zajištěno soukromí na pozemku zahrady.
V případě zájmu o bližší informace či prohlídku kontaktujte makléře nabídky. Prodávající si vyhrazuje právo vybrat kupujícího na základě jím zvolených kritérií.
| Cena: | 13 800 000 Kč |
| Poznámka: | včetně provize, právního servisu a poradenství ohledně fianncování koupě |
| Číslo zakázky: | REALITYMIX-433991 |
Podrobné informace
- Poloha objektu: samostatný
- Druh objektu: cihlová
- Stav objektu: novostavba
- Počet podlaží objektu: 1
- Typ domu: přízemní
- Zastavěná plocha: 210 m²
- Plocha parcely: 2864 m²
- Zahrada: 2654 m²
- Užitná plocha: 116 m²
- Umístění objektu: okraj obce
- Doprava: dálnice, silnice, MHD
- Komunikace: asfaltová
- Elektřina: Elektro - 230 V, Elektro - 400 V
- Voda: Voda - dálkový vodovod
- Telekomunikace: Internet
- Odpad: Kanalizace
- Energetická náročnost budovy: B - Velmi úsporná
- Ukazatel energetické náročnosti budovy: 125 kWh/m²
- Energetický ukazatel podle vyhlášky: č. 78/2013 Sb.
Právní rádce
-
Detail
V tomto článku shrneme nejdůležitější věci, které byste si měli promyslet, pokud se chystáte prodat svou nemovitost a chcete, abyste s kupujícím nemusel následně řešit vzniklé problémy.
Jako prodávající nesete rizika spojená nejen se samotným obchodem, ale i se stavem nemovitosti v době prodeje a pro minimalizaci rizik, je dobré se zamyslet nad uvedenými oblastmi.
-
Detail
Realitní makléř má své nezastupitelné místo v realitním obchodu. Realitním makléřem nemyslím nevzdělané jelito, které absolvovalo dvoudenní školení a ví, jak se nahraje inzerát na inzertní portál.
Realitním makléřem, který se Vám skutečně vyplatí, je zkušený profesionál, který je schopen Vám dobře poradit jak prodat za co nejvíc a s nejmenším rizikem a hlavně je Vás schopen obratně provést celým realitním obchodem.